






















































- 3 bd
- 2.5 ba
- 1,985 sqft
1216 Marlo Way, Acworth, GA 30102
- Townhouse
- $201.46/sqft
- $250/monthly HOA
- 0.02-acre lot
New Homes for Sale Near 1216 Marlo Way, Acworth, GA 30102
About this Home
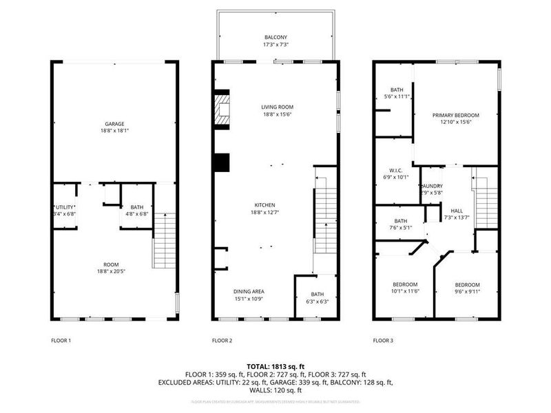
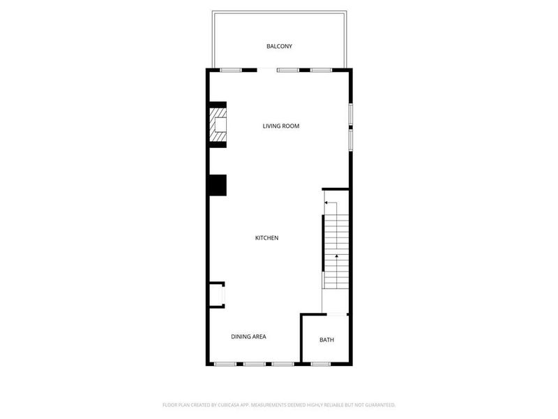
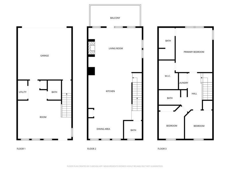
Welcome to 1216 Marlo Way — a like-new, end-unit lakefront townhome offering modern style, comfort, and unbeatable convenience. This three-level, three-bedroom home features an open-concept main floor with 9’ ceilings, luxury flooring, and a stunning oversized quartz island perfect for cooking, entertaining, or gathering with friends. The kitchen includes stainless steel appliances, a gas range, pantry, and coffee bar, all flowing seamlessly into the dining and living areas with peaceful lake views.
Upstairs, the spacious primary suite includes a double-sink vanity and walk-in shower, along with two additional bedrooms, a full bath, and a convenient laundry room. The terrace level adds a flexible bonus room—ideal for an office, media room, or guest space—plus an extra half bath and garage access.
Located on a quiet street steps from the lake, this home offers access to exceptional community amenities including pools, pickleball courts, walking trails, playgrounds, and upcoming new features like a clubhouse, lake access, and more. All just minutes from downtown Acworth, Woodstock, and Kennesaw, with quick access to I-575 and I-75.
Move-in ready, beautifully maintained, and perfectly located—1216 Marlo Way is the home you’ve been waiting for.
Keller Williams Rlty Consultants, MLS 7668001
May also be listed on the Stanley Martin Homes website
Information last verified by Jome: Today at 7:40 PM (April 16, 2026)
Home details
- Property status:
- Sold
- Lot size (acres):
- 0.02
- Size:
- 1,985 sqft
- Stories:
- 3+
- Beds:
- 3
- Baths:
- 2
- Half baths:
- 2
- Garage spaces:
- 2
- Fence:
- No Fence
Construction details
- Builder Name:
- Stanley Martin Homes
- Completion Date:
- May, 2024
- Year Built:
- 2024
- Roof:
- Composition Roofing
Home features & finishes
- Construction Materials:
- Vinyl SidingBrick
- Cooling:
- Ceiling Fan(s)Central Air
- Flooring:
- Vinyl FlooringCarpet Flooring
- Foundation Details:
- Slab
- Garage/Parking:
- Door OpenerAssigned parkingGarageAttached Garage
- Home amenities:
- InternetGreen Construction
- Interior Features:
- Ceiling-HighWalk-In ClosetCrown MoldingPantryDouble Vanity
- Kitchen:
- DishwasherMicrowave OvenRefrigeratorElectric CooktopKitchen IslandElectric Oven
- Laundry facilities:
- Laundry Facilities On Upper LevelDryerWasherUtility/Laundry Room
- Lighting:
- Exterior Lighting
- Property amenities:
- BalconyDeckLandscapingCabinetsElectric FireplaceFireplacePorch
- Rooms:
- AtticBonus RoomKitchenFamily RoomLiving RoomOpen Concept FloorplanPrimary Bedroom Upstairs
- Security system:
- Smoke DetectorCarbon Monoxide Detector
Utility information
- Heating:
- Zoned Heating, Water Heater, Central Heating, Forced Air Heating
- Sewer:
- Public Sewer
- Utilities:
- Electricity Available, Natural Gas Available, Phone Available, Cable Available, Sewer Available, Water Available, High Speed Internet Access
- Water source:
- Public

Community details
Waverly at Buice Lake
by Stanley Martin Homes, Acworth, GA
- 1 home
- 1,985 - 2,200 sqft
View Waverly at Buice Lake details
Community amenities
- Playground
- Club House
- Tennis Courts
- Community Pool
- Park Nearby
- Sidewalks Available
- Waterfront View
- Walking, Jogging, Hike Or Bike Trails
- Pickleball Court
- Shopping Nearby
More homes in Waverly at Buice Lake
- Home at address 801 Cameron Trl, Acworth, GA 30102

$385,000
Move-in ready- 3 bd
- 3.5 ba
- 2,200 sqft
801 Cameron Trl, Acworth, GA 30102
About the builder - Stanley Martin Homes
Neighborhood
Home address
Schools in Cherokee County School District
GreatSchools’ Summary Rating calculation is based on 4 of the school’s themed ratings, including test scores, student/academic progress, college readiness, and equity. This information should only be used as a reference. Jome is not affiliated with GreatSchools and does not endorse or guarantee this information. Please reach out to schools directly to verify all information and enrollment eligibility. Data provided by GreatSchools.org © 2025
Places of interest
Getting around
Air quality
Noise level
A Soundscore™ rating is a number between 50 (very loud) and 100 (very quiet) that tells you how loud a location is due to environmental noise.
Financials
Nearby communities in Acworth
Homes in Acworth by Stanley Martin Homes
Recently added communities in this area
Other Builders in Acworth, GA
Nearby sold homes
New homes in nearby cities
More New Homes in Acworth, GA
Keller Williams Rlty Consultants, MLS 7668001
Some IDX listings have been excluded from this IDX display. Listings identified with the FMLS IDX logo come from FMLS and are held by brokerage firms other than the owner of this website. The listing brokerage is identified in any listing details. Information is deemed reliable but is not guaranteed. If you believe any FMLS listing contains material that infringes your copyrighted work please click here to review our DMCA policy and learn how to submit a takedown request. © 2025 First Multiple Listing Service, Inc.
Read moreLast checked Apr 16, 1:40 pm
- Jome
- New homes search
- Georgia
- Atlanta Metropolitan Area
- Cherokee County
- Acworth
- Waverly at Buice Lake
- 1216 Marlo Way, Acworth, GA 30102
































































