









Book your tour. Save an average of $18,473. We'll handle the rest.
We collect exclusive builder offers, book your tours, and support you from start to housewarming.
- Confirmed tours
- Get matched & compare top deals
- Expert help, no pressure
- No added fees
Estimated value based on Jome data, T&C apply


















- 4 bd
- 2 ba
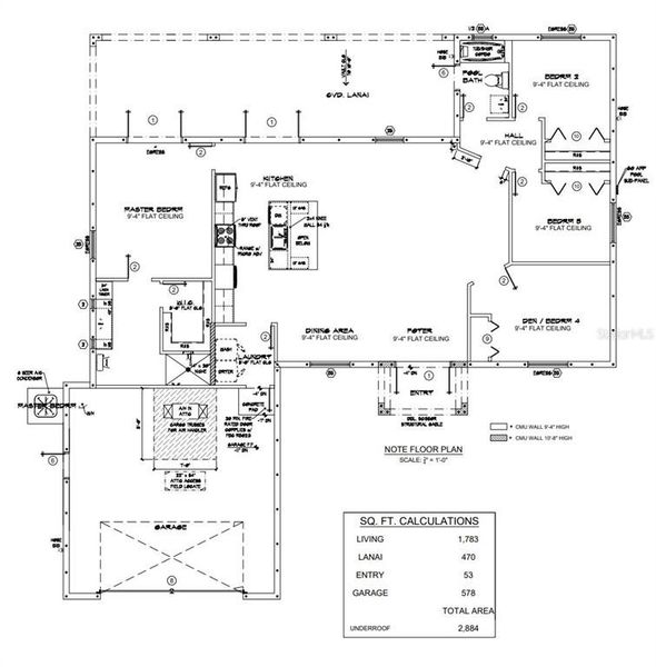
- 1,783 sqft
4796 Sw Bragdon Ave, Arcadia, FL 34266
Why tour with Jome?
- No pressure toursTour at your own pace with no sales pressure
- Expert guidanceGet insights from our home buying experts
- Exclusive accessSee homes and deals not available elsewhere
Jome is featured in
- Single-Family
- Ready by May 2026
- $308.47/sqft
- West facing
Home description
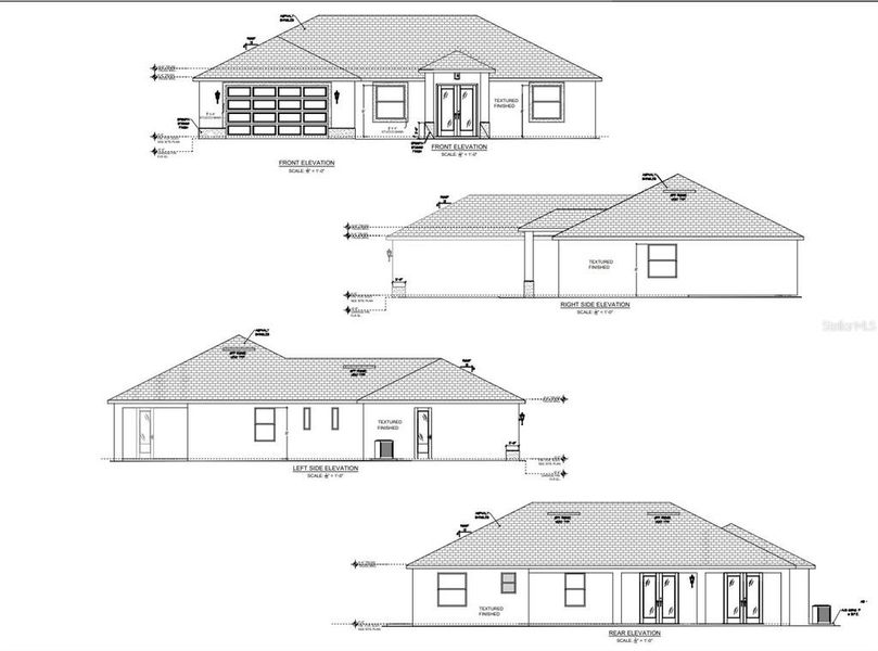
Welcome to your dream country retreat! This stunning new construction home features 4 spacious bedrooms, 2 beautifully designed bathrooms, and 9-ft ceilings throughout, perfectly situated on 2.5 acres of gorgeous, wooded land on the outskirts of Arcadia. Surrounded by mature trees, this property offers the ideal blend of privacy and peaceful living.
This home is currently under construction and is projected to be completed by the end of May—giving you the opportunity to secure your future home before it’s finished!
Step inside to discover an open and airy floor plan with high ceilings that create a bright and inviting atmosphere. Built with quality and efficiency in mind, this home includes hurricane-impact windows and doors, foam insulation, and durable porcelain tile flooring throughout the entire home.
The kitchen will be a true centerpiece, featuring a stylish two-tone design once completed, offering both function and modern appeal. Enjoy seamless indoor-outdoor living with beautiful French doors that lead to a large back lanai—perfect for relaxing, entertaining, or taking in the serene natural surroundings.
This home also boasts a very spacious 2-car garage, providing plenty of room for vehicles, storage, or a workshop area.
With plenty of space to spread out, this property offers endless possibilities, whether you’re looking to create your own private oasis, bring animals, or simply enjoy the tranquility of country living while still being just a short drive to town.
Don’t miss the opportunity to make this beautiful new construction home yours—schedule your private showing today!
RMZ REALTY INC., MLS A4690987
Information last verified by Jome: Today at 10:09 AM (April 23, 2026)
Book your tour. Save an average of $18,473. We'll handle the rest.
We collect exclusive builder offers, book your tours, and support you from start to housewarming.
- Confirmed tours
- Get matched & compare top deals
- Expert help, no pressure
- No added fees
Estimated value based on Jome data, T&C apply
Home details
- Property status:
- Under construction
- Lot size (acres):
- 2.50
- Size:
- 1,783 sqft
- Stories:
- 1
- Beds:
- 4
- Baths:
- 2
- Garage spaces:
- 2
- Facing direction:
- West
Construction details
- Completion Date:
- May, 2026
- Year Built:
- 2026
- Roof:
- Shingle Roofing
Home features & finishes
- Construction Materials:
- StuccoBlock
- Cooling:
- Ceiling Fan(s)Central Air
- Flooring:
- Tile Flooring
- Foundation Details:
- Slab
- Garage/Parking:
- GarageAttached Garage
- Home amenities:
- Green Construction
- Interior Features:
- Ceiling-HighWalk-In ClosetFrench Doors
- Kitchen:
- DishwasherMicrowave OvenRefrigeratorKitchen Range
- Laundry facilities:
- Utility/Laundry Room
- Lighting:
- Exterior LightingLighting
- Rooms:
- Primary Bedroom On MainDining RoomLiving RoomOpen Concept FloorplanPrimary Bedroom Downstairs

Get a consultation with our New Homes Expert
- See how your home builds wealth
- Plan your home-buying roadmap
- Discover hidden gems
Utility information
- Heating:
- Thermostat, Central Heating
- Utilities:
- Electricity Available, HVAC
Neighborhood
Home address
Schools in DeSoto County School District
GreatSchools’ Summary Rating calculation is based on 4 of the school’s themed ratings, including test scores, student/academic progress, college readiness, and equity. This information should only be used as a reference. Jome is not affiliated with GreatSchools and does not endorse or guarantee this information. Please reach out to schools directly to verify all information and enrollment eligibility. Data provided by GreatSchools.org © 2025
Places of interest
Getting around
Air quality
Natural hazards risk
Provided by FEMA

Considering this home?
Our expert will guide your tour, in-person or virtual
Need more information?
Text or call (888) 545-5198
Financials
Estimated monthly payment
Let us help you find your dream home
How many bedrooms are you looking for?
Similar homes nearby
Recently added communities in this area
Nearby communities in Arcadia
New homes in nearby cities
More New Homes in Arcadia, FL
RMZ REALTY INC., MLS A4690987
Based on information submitted to the MLS GRID as of 10/21/2024 2:31 PM CDT. All data is obtained from various sources and may not have been verified by broker or MLS GRID. Supplied Open House Information is subject to change without notice. All information should be independently reviewed and verified for accuracy. Properties may or may not be listed by the office/agent presenting the information. Some IDX listings have been excluded from this website. Properties displayed may be listed or sold by various participants in the MLS. IDX information is provided exclusively for personal, non-commercial use, and may not be used for any purpose other than to identify prospective properties consumers may be interested in purchasing. Information is deemed reliable but not guaranteed. Use of the MLS GRID Data may be subject to an end user license agreement prescribed by the Member Participant’s applicable MLS if any and as amended from time to time. The Digital Millennium Copyright Act of 1998, 17 U.S.C. § 512 (the “DMCA”) provides recourse for copyright owners who believe that material appearing on the Internet infringes their rights under U.S. copyright law. If you believe in good faith that any content or material made available in connection with our website or services infringes your copyright, you (or your agent) may send us a notice requesting that the content or material be removed, or access to it blocked. Notices must be sent in writing by email to DMCAnotice@MLSGrid.com. The DMCA requires that your notice of alleged copyright infringement include the following information: (1) description of the copyrighted work that is the subject of claimed infringement; (2) description of the alleged infringing content and information sufficient to permit us to locate the content; (3) contact information for you, including your address, telephone number and email address; (4) a statement by you that you have a good faith belief that the content in the manner complained of is not authorized by the copyright owner, or its agent, or by the operation of any law; (5) a statement by you, signed under penalty of perjury, that the information in the notification is accurate and that you have the authority to enforce the copyrights that are claimed to be infringed; and (6) a physical or electronic signature of the copyright owner or a person authorized to act on the copyright owner’s behalf. Failure to include all of the above information may result in the delay of the processing of your complaint. Listing Information presented by local MLS brokerage: NewHomesMate LLC, DBA Jome (888) 545-5198
Read moreLast checked Apr 23, 9:10 am
- Jome
- New homes search
- Florida
- Desoto County
- Arcadia
- 4796 Sw Bragdon Ave, Arcadia, FL 34266

























