








Book your tour. Save an average of $18,473. We'll handle the rest.
We collect exclusive builder offers, book your tours, and support you from start to housewarming.
- Confirmed tours
- Get matched & compare top deals
- Expert help, no pressure
- No added fees
Estimated value based on Jome data, T&C apply







































- 2 bd
- 2.5 ba
- 1,187 sqft
2882 Skyline Lp, Kissimmee, FL 34758
Why tour with Jome?
- No pressure toursTour at your own pace with no sales pressure
- Expert guidanceGet insights from our home buying experts
- Exclusive accessSee homes and deals not available elsewhere
Jome is featured in
- Townhouse
- Quick move-in
- $197.98/sqft
- $224/monthly HOA
Home description
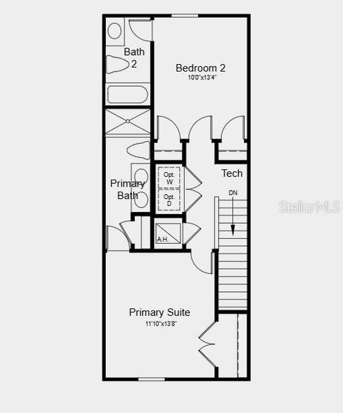
What's Special: Popular Plan | Deep Backyard | Close to Amenities. New Construction - Ready Now! Built by America's Most Trusted Home Builder. Welcome to the Ivy at 2882 Skyline Loop in Townhomes at Westview! This new townhome offers a thoughtfully designed layout that supports easy, comfortable living from the moment you arrive. The foyer leads to a front kitchen featuring quartz countertops, a generous storage pantry, and a conveniently located powder room, with tile flooring flowing throughout the main level. You move seamlessly into the dining area and great room, where the open layout creates an inviting space to relax or entertain. Just off the great room, the outdoor lanai extends your living space outdoors. Upstairs, the primary suite provides a peaceful retreat with an en-suite bath and spacious closet, while a secondary bedroom with its own en-suite bath and two closets, plus a laundry closet and dedicated tech space, completes this well-planned floor plan. Tucked away in desirable Kissimmee, The Townhomes at Westview blend natural beauty and urban convenience. Surrounded by forested uplands and wetlands, you’ll enjoy a tranquil setting just 20 miles from Orlando. Part of the Westview master plan, these lock-and-leave townhomes feature modern, thoughtful designs and come move-in ready with appliances and blinds. Additional Highlights Include: GE refrigerator, washer and dryer, extended flooring, and whole house blinds. Photos are for representative purposes only. MLS#O6397022
TAYLOR MORRISON REALTY OF FLORIDA INC, MLS O6397022
May also be listed on the Taylor Morrison website
Information last verified by Jome: Today at 3:10 AM (April 9, 2026)
Home highlights
Nature preserve in Kissimmee with boardwalks, paddling trails, and historic sites near family-friendly neighborhoods.
Book your tour. Save an average of $18,473. We'll handle the rest.
We collect exclusive builder offers, book your tours, and support you from start to housewarming.
- Confirmed tours
- Get matched & compare top deals
- Expert help, no pressure
- No added fees
Estimated value based on Jome data, T&C apply
Home details
- Property status:
- Move-in ready
- Collection:
- The Townhomes at Westview
- Size:
- 1,187 sqft
- Stories:
- 2
- Beds:
- 2
- Baths:
- 2
- Half baths:
- 1
- Facing direction:
- South
Construction details
- Builder Name:
- Taylor Morrison
- Year Built:
- 2026
- Roof:
- Shingle Roofing
Home features & finishes
- Construction Materials:
- StuccoBlockCement
- Cooling:
- Central Air
- Flooring:
- Carpet FlooringTile Flooring
- Foundation Details:
- Slab
- Garage/Parking:
- Assigned parking
- Home amenities:
- Internet
- Interior Features:
- Ceiling-HighWindow TreatmentsWalk-In ClosetFoyerPantryStorage
- Kitchen:
- DishwasherMicrowave OvenRefrigeratorDisposalKitchen Range
- Laundry facilities:
- Laundry Facilities On Upper LevelDryerWasherUtility/Laundry Room
- Pets:
- Pets AllowedPets Allowed with Weight Restrictions
- Property amenities:
- IrrigationPatioPorch
- Rooms:
- KitchenGuest RoomDining RoomFamily RoomOpen Concept FloorplanPrimary Bedroom Upstairs
- Security system:
- Smoke Detector

Get a consultation with our New Homes Expert
- See how your home builds wealth
- Plan your home-buying roadmap
- Discover hidden gems
Utility information
- Heating:
- Water Heater, Central Heating
- Sewer:
- Public Sewer
- Utilities:
- Electricity Available, Internet-Fiber, Sewer Available
- Water source:
- Public

Community details
Westview Community Group Page
by Taylor Morrison, Kissimmee, FL
- 17 homes
- 22 plans
- 1,180 - 4,591 sqft
View Westview Community Group Page details
Community amenities
- Dog Park
- Playground
- Community Pool
- Park Nearby
- Wheelchair Adapted
- Sidewalks Available
More homes in Westview Community Group Page
- Home at address 2004 Viewfinder St, Kissimmee, FL 34758

Home
SavingsThe Townhomes at Westview
$229,990
- 2 bd
- 2 ba
- 1,255 sqft
2004 Viewfinder St, Kissimmee, FL 34758
- Home at address 2878 Skyline Lp, Kissimmee, FL 34758

Ivy
SavingsThe Townhomes at Westview
$235,000
- 2 bd
- 2.5 ba
- 1,187 sqft
2878 Skyline Lp, Kissimmee, FL 34758
- Home at address 2898 Skyline Lp, Kissimmee, FL 34758

Ivy
SavingsThe Townhomes at Westview
$235,000
- 2 bd
- 2.5 ba
- 1,187 sqft
2898 Skyline Lp, Kissimmee, FL 34758
- Home at address 2886 Skyline Lp, Kissimmee, FL 34758

Ivy
SavingsThe Townhomes at Westview
$235,000
- 2 bd
- 2.5 ba
- 1,187 sqft
2886 Skyline Lp, Kissimmee, FL 34758
- Home at address 2890 Skyline Lp, Kissimmee, FL 34758

Ivy
SavingsThe Townhomes at Westview
$235,000
- 2 bd
- 2.5 ba
- 1,187 sqft
2890 Skyline Lp, Kissimmee, FL 34758
- Home at address 2874 Skyline Lp, Kissimmee, FL 34758

Hazel
SavingsThe Townhomes at Westview
$249,000
- 2 bd
- 2.5 ba
- 1,180 sqft
2874 Skyline Lp, Kissimmee, FL 34758
Floor plans in Westview Community Group Page
About the builder - Taylor Morrison

- 314communities on Jome
- 1,423homes on Jome
Neighborhood
Home address
Schools in Polk County School District
- Grades PK-11Privatenew jerusalem academy4.2 mi4925 old pleasant hill rdna
GreatSchools’ Summary Rating calculation is based on 4 of the school’s themed ratings, including test scores, student/academic progress, college readiness, and equity. This information should only be used as a reference. Jome is not affiliated with GreatSchools and does not endorse or guarantee this information. Please reach out to schools directly to verify all information and enrollment eligibility. Data provided by GreatSchools.org © 2025
Places of interest
Getting around
Air quality
Noise level
A Soundscore™ rating is a number between 50 (very loud) and 100 (very quiet) that tells you how loud a location is due to environmental noise.

Considering this home?
Our expert will guide your tour, in-person or virtual
Need more information?
Text or call (888) 545-5198
Financials
Estimated monthly payment
Let us help you find your dream home
How many bedrooms are you looking for?
Similar homes nearby
Recently added communities in this area
Nearby communities in Kissimmee
New homes in nearby cities
More New Homes in Kissimmee, FL
TAYLOR MORRISON REALTY OF FLORIDA INC, MLS O6397022
Based on information submitted to the MLS GRID as of 10/21/2024 2:31 PM CDT. All data is obtained from various sources and may not have been verified by broker or MLS GRID. Supplied Open House Information is subject to change without notice. All information should be independently reviewed and verified for accuracy. Properties may or may not be listed by the office/agent presenting the information. Some IDX listings have been excluded from this website. Properties displayed may be listed or sold by various participants in the MLS. IDX information is provided exclusively for personal, non-commercial use, and may not be used for any purpose other than to identify prospective properties consumers may be interested in purchasing. Information is deemed reliable but not guaranteed. Use of the MLS GRID Data may be subject to an end user license agreement prescribed by the Member Participant’s applicable MLS if any and as amended from time to time. The Digital Millennium Copyright Act of 1998, 17 U.S.C. § 512 (the “DMCA”) provides recourse for copyright owners who believe that material appearing on the Internet infringes their rights under U.S. copyright law. If you believe in good faith that any content or material made available in connection with our website or services infringes your copyright, you (or your agent) may send us a notice requesting that the content or material be removed, or access to it blocked. Notices must be sent in writing by email to DMCAnotice@MLSGrid.com. The DMCA requires that your notice of alleged copyright infringement include the following information: (1) description of the copyrighted work that is the subject of claimed infringement; (2) description of the alleged infringing content and information sufficient to permit us to locate the content; (3) contact information for you, including your address, telephone number and email address; (4) a statement by you that you have a good faith belief that the content in the manner complained of is not authorized by the copyright owner, or its agent, or by the operation of any law; (5) a statement by you, signed under penalty of perjury, that the information in the notification is accurate and that you have the authority to enforce the copyrights that are claimed to be infringed; and (6) a physical or electronic signature of the copyright owner or a person authorized to act on the copyright owner’s behalf. Failure to include all of the above information may result in the delay of the processing of your complaint. Listing Information presented by local MLS brokerage: NewHomesMate LLC, DBA Jome (888) 545-5198
Read moreLast checked Apr 9, 3:10 am
- Jome
- New homes search
- Florida
- Greater Orlando Area
- Polk County
- Kissimmee
- Westview Community Group Page
- The Townhomes at Westview
- 2882 Skyline Lp, Kissimmee, FL 34758
































