









Book your tour. Save an average of $18,473. We'll handle the rest.
We collect exclusive builder offers, book your tours, and support you from start to housewarming.
- Confirmed tours
- Get matched & compare top deals
- Expert help, no pressure
- No added fees
Estimated value based on Jome data, T&C apply












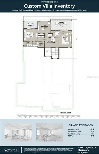
- 5 bd
- 5.5 ba
- 4,548 sqft
16912 Villalagos De Avila, Lutz, FL 33548
Why tour with Jome?
- No pressure toursTour at your own pace with no sales pressure
- Expert guidanceGet insights from our home buying experts
- Exclusive accessSee homes and deals not available elsewhere
Jome is featured in
- Single-Family
- Ready by April 2027
- $659.63/sqft
- North facing
Home description
Private Collection Custom Spanish-Mission Style Luxury Villa by AR Homes (Arthur Rutenberg) on the Golf Course in Avila - Wake up to sweeping golf course and water views as you build your custom dream home in Avila, one of Tampa Bay’s most sought-after guard-gated communities.
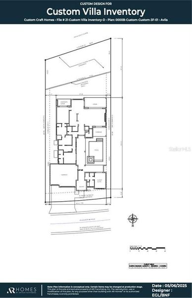
Perfectly positioned along the 2nd tee box, this custom-designed villa offers a rare blend of privacy, scenery, and timeless design.
At the heart of the home, a private interior courtyard creates a true resort-like setting, featuring a pool, spa, and outdoor kitchen designed for year-round Florida living.
Inside, a well-designed layout includes a luxurious owner’s retreat, private guest suite/casita, expansive great room, and second-floor bonus space, offering flexibility for family and guests.
This home is part of AR Homes’ Private Collection, representing their highest level of design, finishes, and craftsmanship—featuring a chef’s kitchen with Wolf and Sub-Zero appliances, a dedicated wine storage feature, and a curated selection of high-end materials throughout.
Permit has been approved, allowing a faster path to construction. There is still time for a buyer to personalize selections and tailor the home to their individual style.
This is a unique opportunity to own a custom home on the golf course in Avila—combining location, design, and personalization in a way that is rarely available.
Contact the listing agent for full specifications, design options, and timeline details.
CHARLES RUTENBERG REALTY INC, MLS TB8492892
Information last verified by Jome: Today at 9:25 PM (April 1, 2026)
Home highlights
Historic theme park with thrill rides and wildlife, unique for its neighborhood-adjacent layout.
Book your tour. Save an average of $18,473. We'll handle the rest.
We collect exclusive builder offers, book your tours, and support you from start to housewarming.
- Confirmed tours
- Get matched & compare top deals
- Expert help, no pressure
- No added fees
Estimated value based on Jome data, T&C apply
Home details
- Property status:
- Under construction
- Lot size (acres):
- 0.30
- Size:
- 4,548 sqft
- Stories:
- 2
- Beds:
- 5
- Baths:
- 5
- Half baths:
- 1
- Garage spaces:
- 3
- Facing direction:
- North
Construction details
- Completion Date:
- April, 2027
- Year Built:
- 2026
- Roof:
- Tile Roofing
Home features & finishes
- Construction Materials:
- Block
- Cooling:
- Central Air
- Flooring:
- Hardwood Flooring
- Foundation Details:
- Slab
- Garage/Parking:
- GarageAttached Garage
- Interior Features:
- Ceiling-High
- Kitchen:
- Wine RefrigeratorDishwasherRefrigeratorDisposalKitchen Range
- Laundry facilities:
- Utility/Laundry Room
- Pets:
- Pets Allowed
- Property amenities:
- BalconyPoolCourtyardElectric FireplaceIrrigationFireplace

Get a consultation with our New Homes Expert
- See how your home builds wealth
- Plan your home-buying roadmap
- Discover hidden gems
Utility information
- Heating:
- Electric Heating
- Utilities:
- Electricity Available
Community amenities
- Gated Community
- Security Guard/Safety Office
Neighborhood
Home address
- City:
- Lutz
- County:
- Hillsborough
- Zip Code:
- 33548
Schools in Hillsborough County School District
GreatSchools’ Summary Rating calculation is based on 4 of the school’s themed ratings, including test scores, student/academic progress, college readiness, and equity. This information should only be used as a reference. Jome is not affiliated with GreatSchools and does not endorse or guarantee this information. Please reach out to schools directly to verify all information and enrollment eligibility. Data provided by GreatSchools.org © 2025
Places of interest
Getting around
Air quality
Natural hazards risk
Provided by FEMA

Considering this home?
Our expert will guide your tour, in-person or virtual
Need more information?
Text or call (888) 545-5198
Financials
Estimated monthly payment
Let us help you find your dream home
How many bedrooms are you looking for?
Similar homes nearby
Recently added communities in this area
Nearby communities in Lutz
New homes in nearby cities
More New Homes in Lutz, FL
CHARLES RUTENBERG REALTY INC, MLS TB8492892
Based on information submitted to the MLS GRID as of 10/21/2024 2:31 PM CDT. All data is obtained from various sources and may not have been verified by broker or MLS GRID. Supplied Open House Information is subject to change without notice. All information should be independently reviewed and verified for accuracy. Properties may or may not be listed by the office/agent presenting the information. Some IDX listings have been excluded from this website. Properties displayed may be listed or sold by various participants in the MLS. IDX information is provided exclusively for personal, non-commercial use, and may not be used for any purpose other than to identify prospective properties consumers may be interested in purchasing. Information is deemed reliable but not guaranteed. Use of the MLS GRID Data may be subject to an end user license agreement prescribed by the Member Participant’s applicable MLS if any and as amended from time to time. The Digital Millennium Copyright Act of 1998, 17 U.S.C. § 512 (the “DMCA”) provides recourse for copyright owners who believe that material appearing on the Internet infringes their rights under U.S. copyright law. If you believe in good faith that any content or material made available in connection with our website or services infringes your copyright, you (or your agent) may send us a notice requesting that the content or material be removed, or access to it blocked. Notices must be sent in writing by email to DMCAnotice@MLSGrid.com. The DMCA requires that your notice of alleged copyright infringement include the following information: (1) description of the copyrighted work that is the subject of claimed infringement; (2) description of the alleged infringing content and information sufficient to permit us to locate the content; (3) contact information for you, including your address, telephone number and email address; (4) a statement by you that you have a good faith belief that the content in the manner complained of is not authorized by the copyright owner, or its agent, or by the operation of any law; (5) a statement by you, signed under penalty of perjury, that the information in the notification is accurate and that you have the authority to enforce the copyrights that are claimed to be infringed; and (6) a physical or electronic signature of the copyright owner or a person authorized to act on the copyright owner’s behalf. Failure to include all of the above information may result in the delay of the processing of your complaint. Listing Information presented by local MLS brokerage: NewHomesMate LLC, DBA Jome (888) 545-5198
Read moreLast checked Apr 1, 9:10 pm
- Jome
- New homes search
- Florida
- Tampa Bay Area
- Hillsborough County
- Lutz
- 16912 Villalagos De Avila, Lutz, FL 33548


























