








Book your tour. Save an average of $18,473. We'll handle the rest.
We collect exclusive builder offers, book your tours, and support you from start to housewarming.
- Confirmed tours
- Get matched & compare top deals
- Expert help, no pressure
- No added fees
Estimated value based on Jome data, T&C apply
























- 3 bd
- 2 ba
- 1,760 sqft
133 Seabrook Village Ave, Ponte Vedra, FL 32081
Why tour with Jome?
- No pressure toursTour at your own pace with no sales pressure
- Expert guidanceGet insights from our home buying experts
- Exclusive accessSee homes and deals not available elsewhere
Jome is featured in
- Single-Family
- Quick move-in
- $336.36/sqft
- $840/annual HOA
Home description
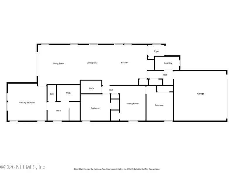
Priced to sell! Under 600k in Seabrook Village Phase 1. This beautiful home is under one year old and comes with custom window treatments, a fully fenced yard, an outdoor shower and a chefs kitchen with farmhouse sink! You are close to Seabrook amenities such as a pool, playground and dog park! Also, you can easily access the BRAND NEW k-8 academy. Construction is complete all around you as Phase 1 is almost fully closed out. The house has 3 bedrooms, 2 baths, and a flex space which can be used as an office or play den. Hurry and get moved in just in time to enjoy all the summer time amenities of Nocatee!
HOUWZER, INC., MLS 2137514
Information last verified by Jome: Today at 1:23 AM (May 17, 2026)
Book your tour. Save an average of $18,473. We'll handle the rest.
We collect exclusive builder offers, book your tours, and support you from start to housewarming.
- Confirmed tours
- Get matched & compare top deals
- Expert help, no pressure
- No added fees
Estimated value based on Jome data, T&C apply
Home details
- Property status:
- Move-in ready
- Lot size (acres):
- 0.12
- Size:
- 1,760 sqft
- Stories:
- 1
- Beds:
- 3
- Baths:
- 2
- Garage spaces:
- 2
Construction details
- Year Built:
- 2025
Home features & finishes
- Cooling:
- Central Air
- Flooring:
- Carpet FlooringTile Flooring
- Garage/Parking:
- GarageAttached Garage
- Interior Features:
- Walk-In Closet
- Kitchen:
- DishwasherMicrowave OvenRefrigeratorGas CooktopGas OvenKitchen Range
- Laundry facilities:
- DryerWasher
- Rooms:
- Primary Bedroom On MainPrimary Bedroom Downstairs

Get a consultation with our New Homes Expert
- See how your home builds wealth
- Plan your home-buying roadmap
- Discover hidden gems
Utility information
- Heating:
- Central Heating
- Sewer:
- Public Sewer
- Utilities:
- Cable Available
- Water source:
- Public
Neighborhood
Home address
- City:
- Ponte Vedra
- County:
- St. Johns
- Zip Code:
- 32081
Schools in St. Johns County School District
GreatSchools’ Summary Rating calculation is based on 4 of the school’s themed ratings, including test scores, student/academic progress, college readiness, and equity. This information should only be used as a reference. Jome is not affiliated with GreatSchools and does not endorse or guarantee this information. Please reach out to schools directly to verify all information and enrollment eligibility. Data provided by GreatSchools.org © 2025
Places of interest
Getting around
Natural hazards risk
Provided by FEMA

Considering this home?
Our expert will guide your tour, in-person or virtual
Need more information?
Text or call (888) 545-5198
Financials
Estimated monthly payment
Let us help you find your dream home
How many bedrooms are you looking for?
Similar homes nearby
Recently added communities in this area
Nearby communities in Ponte Vedra
New homes in nearby cities
More New Homes in Ponte Vedra, FL
HOUWZER, INC., MLS 2137514
IDX information is provided exclusively for personal, non-commercial use, and may not be used for any purpose other than to identify prospective properties consumers may be interested in purchasing. Data is deemed reliable but is not guaranteed accurate by NEFMLS. © 2025 Northeast Florida Multiple Listing Service, Inc. All rights reserved.
Read moreLast checked May 16, 11:00 pm
- Jome
- New homes search
- Florida
- Jacksonville Metropolitan Area
- St. Johns County
- Ponte Vedra
- 133 Seabrook Village Ave, Ponte Vedra, FL 32081


























