









Book your tour. Save an average of $18,473. We'll handle the rest.
We collect exclusive builder offers, book your tours, and support you from start to housewarming.
- Confirmed tours
- Get matched & compare top deals
- Expert help, no pressure
- No added fees
Estimated value based on Jome data, T&C apply









- 3 bd
- 3 ba
- 1,927 sqft
408 Cherry Elm Dr, St. Augustine, FL 32092
Why tour with Jome?
- No pressure toursTour at your own pace with no sales pressure
- Expert guidanceGet insights from our home buying experts
- Exclusive accessSee homes and deals not available elsewhere
Jome is featured in
- Townhouse
- Under construction
- $186.81/sqft
- $402/quarterly HOA
Home description
What's Special: Loft | Covered Lanai | White Cabinets | North Facing Lot. New Construction - May Completion! Built by America's Most Trusted Home Builder.
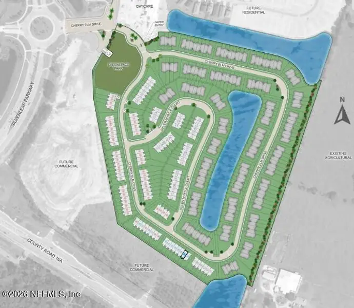
Welcome to the Bellflower at 408 Cherry Elm Drive in Cherry Elm! This well-designed townhome offers approximately 1,927 square feet of living space with three bedrooms, two-and-a-half baths, and a two-car garage. Step inside from the front porch to an open great room that flows into the kitchen with a large island, creating an ideal space for entertaining and everyday meals. The first floor also includes a convenient half bath, garage access, and an outdoor covered lanai. Upstairs, a versatile loft, two secondary bedrooms with a full bath, and a spacious primary suite with a walk-in closet and double vanity bath provide comfortable living. An upstairs laundry area and ample storage throughout add to the home's thoughtful design. Located in St. Johns County, this community offers access to top-rated schools and low-maintenance, master-planned living with lawn care and exterior upkeep included. Enjoy pools, pickleball, tennis, walking trails, and a planned 1.6-acre amenity area. Nearby Trout Creek offers river access and parks. You'll also have quick connectivity to I-95, CR-16, CR-210, and I-295, with future roadway expansions planned. Additional Highlights Include: covered lanai, tankless water heater, whole house window blinds. MLS#2137022
TAYLOR MORRISON REALTY OF FLA, MLS 2137022
Information last verified by Jome: Today at 1:30 AM (April 1, 2026)
Home highlights
Iconic golf course in Ponte Vedra Beach, home to The Players Championship and renowned island green on hole 17.
Book your tour. Save an average of $18,473. We'll handle the rest.
We collect exclusive builder offers, book your tours, and support you from start to housewarming.
- Confirmed tours
- Get matched & compare top deals
- Expert help, no pressure
- No added fees
Estimated value based on Jome data, T&C apply
Home details
- Property status:
- Under construction
- Size:
- 1,927 sqft
- Stories:
- 2
- Beds:
- 3
- Baths:
- 3
- Half baths:
- 1
- Garage spaces:
- 2
- Fence:
- Vinyl Fence
- Facing direction:
- North
Construction details
- Year Built:
- 2026
- Roof:
- Shingle Roofing
Home features & finishes
- Construction Materials:
- ConcreteFrame
- Cooling:
- Central Air
- Flooring:
- Carpet Flooring
- Garage/Parking:
- Door OpenerGarageAttached Garage
- Interior Features:
- Walk-In ClosetFoyerPantry
- Kitchen:
- DishwasherMicrowave OvenRefrigeratorDisposalKitchen Island
- Laundry facilities:
- DryerWasher
- Lighting:
- Security Lights
- Property amenities:
- Patio
- Security system:
- Security SystemSmoke DetectorCarbon Monoxide Detector
Room details
Master Bedroom
Dining Room
Bedroom 2

Get a consultation with our New Homes Expert
- See how your home builds wealth
- Plan your home-buying roadmap
- Discover hidden gems
Utility information
- Heating:
- Central Heating
- Utilities:
- Electricity Available, Natural Gas Available, Sewer Available, Water Available
Community amenities
- Gated Community
Neighborhood
Home address
- City:
- St. Augustine
- County:
- St. Johns
- Zip Code:
- 32092
Schools in St. Johns County School District
GreatSchools’ Summary Rating calculation is based on 4 of the school’s themed ratings, including test scores, student/academic progress, college readiness, and equity. This information should only be used as a reference. Jome is not affiliated with GreatSchools and does not endorse or guarantee this information. Please reach out to schools directly to verify all information and enrollment eligibility. Data provided by GreatSchools.org © 2025
Places of interest
Getting around
Natural hazards risk
Provided by FEMA

Considering this home?
Our expert will guide your tour, in-person or virtual
Need more information?
Text or call (888) 545-5198
Financials
Estimated monthly payment
Let us help you find your dream home
How many bedrooms are you looking for?
Similar homes nearby
Recently added communities in this area
Nearby communities in St. Augustine
New homes in nearby cities
More New Homes in St. Augustine, FL
TAYLOR MORRISON REALTY OF FLA, MLS 2137022
IDX information is provided exclusively for personal, non-commercial use, and may not be used for any purpose other than to identify prospective properties consumers may be interested in purchasing. Data is deemed reliable but is not guaranteed accurate by NEFMLS. © 2025 Northeast Florida Multiple Listing Service, Inc. All rights reserved.
Read moreLast checked Apr 1, 5:00 am
- Jome
- New homes search
- Florida
- Jacksonville Metropolitan Area
- St. Johns County
- St. Augustine
- 408 Cherry Elm Dr, St. Augustine, FL 32092





















