











































- 4 bd
- 2.5 ba
- 2,259 sqft
259 Needle Thrush Cir, Crawfordville, FL 32327
- Single-Family
- $174.81/sqft
- 49 days on Jome
New Homes for Sale Near 259 Needle Thrush Cir, Crawfordville, FL 32327
About this Home
About this home
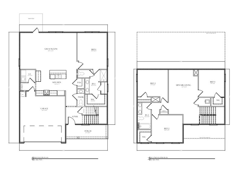
Welcome to 259 Needle Thrush Circle in Misting Springs, our new home community in Crawfordville, FL. The Belfort is a 4-bedroom, 2.5-bathroom two-story home with over 2200 Sq. Ft. and a two-car garage.
The Belfort floorplan is perfect for any stage of life featuring a first floor primary bedroom suite and laundry room. As you enter, the open concept kitchen and great room welcome all in. This is the perfect space for entertaining and daily living. The primary suite on the first floor is your private retreat. The primary bathroom features double vanity, private water closet, large shower, and an oversized closet.
When you go upstairs, you are greeted by a versatile loft on the second floor which is surrounded by the three additional bedrooms. Each bedroom is roomy and feature a spacious closet. The second full bath has a double vanity and shower/tub combo. This floor plan can be the perfect home for your family.
Beyond the interior features and details, every home is equipped with Smart Home Technology. This thoughtful integration of technology ensures that your new home is perfectly designed to meet the demands of modern life. Enjoy quality materials and workmanship throughout, with superior attention to detail, in addition to a one-year builder’s warranty.
May also be listed on the D.R. Horton website
Information last verified by Jome: Sunday at 5:54 AM (April 19, 2026)
Home details
- Property status:
- Sold
- Size:
- 2,259 sqft
- Stories:
- 2
- Beds:
- 4
- Baths:
- 2.5
- Garage spaces:
- 2
Construction details
- Builder Name:
- D.R. Horton
Home features & finishes
- Garage/Parking:
- GarageAttached Garage
- Interior Features:
- Walk-In ClosetFoyer
- Laundry facilities:
- Utility/Laundry Room
- Property amenities:
- Porch
- Rooms:
- KitchenDining RoomFamily RoomPrimary Bedroom Upstairs

Community details
Misting Springs
by D.R. Horton, Crawfordville, FL
- 14 homes
- 8 plans
- 1,498 - 2,550 sqft
View Misting Springs details
More homes in Misting Springs
- Home at address 263 Needle Thrush Cir, Crawfordville, FL 32327

$314,900
Move-in ready- 4 bd
- 2 ba
- 1,799 sqft
263 Needle Thrush Cir, Crawfordville, FL 32327
- Home at address 251 Needle Thrush Cir, Crawfordville, FL 32327

$347,900
Move-in ready- 4 bd
- 2 ba
- 1,799 sqft
251 Needle Thrush Cir, Crawfordville, FL 32327
- Home at address 247 Needle Thrush Cir, Crawfordville, FL 32327

$347,900
Move-in ready- 4 bd
- 2 ba
- 1,799 sqft
247 Needle Thrush Cir, Crawfordville, FL 32327
- Home at address 267 Needle Thrush Cir, Crawfordville, FL 32327

$364,900
Move-in ready- 4 bd
- 2.5 ba
- 2,416 sqft
267 Needle Thrush Cir, Crawfordville, FL 32327
- Home at address 255 Needle Thrush Cir, Crawfordville, FL 32327

$416,900
Move-in ready- 5 bd
- 3 ba
- 2,550 sqft
255 Needle Thrush Cir, Crawfordville, FL 32327
Floor plans in Misting Springs
About the builder - D.R. Horton

- 1,147communities on Jome
- 11,228homes on Jome
Neighborhood
Home address
- City:
- Crawfordville
- County:
- Wakulla
- Zip Code:
- 32327
Schools in Wakulla County School District
- Grades PK-PKPublicteen parent pk child care program0.6 mi69 arran rdna
GreatSchools’ Summary Rating calculation is based on 4 of the school’s themed ratings, including test scores, student/academic progress, college readiness, and equity. This information should only be used as a reference. Jome is not affiliated with GreatSchools and does not endorse or guarantee this information. Please reach out to schools directly to verify all information and enrollment eligibility. Data provided by GreatSchools.org © 2025
Places of interest
Getting around
Air quality
Financials
Nearby communities in Crawfordville
Homes in Crawfordville by D.R. Horton
Recently added communities in this area
Other Builders in Crawfordville, FL
Nearby sold homes
New homes in nearby cities
More New Homes in Crawfordville, FL
- Jome
- New homes search
- Florida
- Wakulla County
- Crawfordville
- Misting Springs
- 259 Needle Thrush Cir, Crawfordville, FL 32327







































