













Book your tour. Save an average of $18,473. We'll handle the rest.
We collect exclusive builder offers, book your tours, and support you from start to housewarming.
- Confirmed tours
- Get matched & compare top deals
- Expert help, no pressure
- No added fees
Estimated value based on Jome data, T&C apply
Why tour with Jome?
- No pressure toursTour at your own pace with no sales pressure
- Expert guidanceGet insights from our home buying experts
- Exclusive accessSee homes and deals not available elsewhere
Jome is featured in
- Townhouse
- Ready by April 2026
- $165.31/sqft
- $144/monthly HOA
Home description
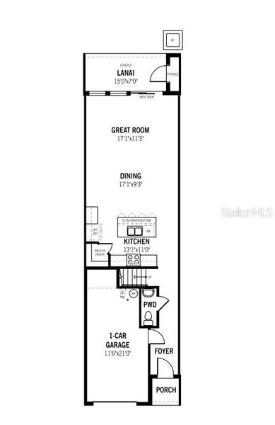
Welcome to the Lakewood, a thoughtfully designed 1,691 square foot townhome that offers the perfect blend of comfort, style, and functionality. Featuring three bedrooms, two full bathrooms, a convenient powder room, and a one-car garage, this home is ideal for modern living.
Step inside to an inviting open-concept main floor that seamlessly integrates the kitchen, dining, and great room areas—perfect for entertaining or everyday life. The L-shaped kitchen is a chef’s delight, boasting quartz countertops, a walk-in pantry, and a generous island with a flush breakfast bar that comfortably seats four. Just beyond the great room, glass sliders lead to a covered lanai, creating a bright and airy extension of the living space. The lanai also includes a handy storage closet, ideal for stashing seasonal items or outdoor gear. The powder room is conveniently located just off the foyer for guests.
Upstairs, the landing area provides access to the laundry space and a linen closet for added practicality. The two secondary bedrooms are positioned on one side of the home and share a spacious full bathroom. One of these bedrooms even includes a cozy seating area, making it perfect for guests or a private retreat.
The owner’s suite offers a luxurious escape with a dual-sink raised vanity, glass-enclosed shower, private water closet, and a large walk-in closet that provides ample storage.
Designed with energy efficiency in mind, the Lakewood includes a hybrid hot water heater and is rated with a HERS (Home Energy Rating System) score, ensuring lower utility costs and environmental impact. Thoughtful exterior touches such as paver driveways, walkways, and lanais add curb appeal and long-lasting durability.
The Lakewood combines smart design and elegant finishes to offer a lifestyle of comfort and convenience—welcome home.
Photos, renderings and plans are for illustrative purposes only and should never be relied upon and may vary from the actual home. Pricing, dimensions and features can change at any time without notice or obligation. The photos are from a furnished model home and not the home offered for sale.
MATTAMY REAL ESTATE SERVICES, MLS TB8487105
May also be listed on the Mattamy Homes website
Information last verified by Jome: Today at 3:10 AM (March 17, 2026)
Home highlights
MacDill AFB offers secure housing, top-rated schools, and abundant amenities in vibrant South Tampa.
Book your tour. Save an average of $18,473. We'll handle the rest.
We collect exclusive builder offers, book your tours, and support you from start to housewarming.
- Confirmed tours
- Get matched & compare top deals
- Expert help, no pressure
- No added fees
Estimated value based on Jome data, T&C apply
Home details
- Property status:
- Under construction
- Lot size (acres):
- 0.04
- Size:
- 1,691 sqft
- Stories:
- 2
- Beds:
- 3
- Baths:
- 2
- Half baths:
- 1
- Garage spaces:
- 1
- Facing direction:
- East
Construction details
- Builder Name:
- Mattamy Homes
- Completion Date:
- April, 2026
- Year Built:
- 2025
- Roof:
- Shingle Roofing
Home features & finishes
- Construction Materials:
- StuccoWood FrameBlock
- Cooling:
- Central Air
- Flooring:
- Carpet FlooringTile Flooring
- Foundation Details:
- Slab
- Garage/Parking:
- Door OpenerGarageAttached Garage
- Home amenities:
- Green Construction
- Interior Features:
- Walk-In ClosetSliding Doors
- Kitchen:
- DishwasherMicrowave OvenRefrigeratorKitchen Range
- Laundry facilities:
- Laundry Facilities On Upper LevelDryerWasher
- Lighting:
- LightingStreet Lights
- Pets:
- Pets Allowed
- Property amenities:
- SidewalkIrrigationPorch
- Rooms:
- KitchenOpen Concept FloorplanPrimary Bedroom Upstairs

Get a consultation with our New Homes Expert
- See how your home builds wealth
- Plan your home-buying roadmap
- Discover hidden gems
Utility information
- Heating:
- Electric Heating, Heat Pump, Thermostat, Water Heater
- Utilities:
- Electricity Available, Underground Utilities, Cable Available, Water Available

Community details
Crosswind Ranch
by Mattamy Homes, Parrish, FL
- 37 homes
- 24 plans
- 1,601 - 3,790 sqft
View Crosswind Ranch details
Community amenities
- Dog Park
- Playground
- Gated Community
- Community Pool
- Sidewalks Available
More homes in Crosswind Ranch
- Home at address 9139 Aurelia Ave, Parrish, FL 34219

Lakewood
Savings$269,990
- 3 bd
- 2.5 ba
- 1,691 sqft
9139 Aurelia Ave, Parrish, FL 34219
- Home at address 8823 Ginko Run, Parrish, FL 34219

Lakewood
Savings$276,539
- 3 bd
- 2.5 ba
- 1,691 sqft
8823 Ginko Run, Parrish, FL 34219
- Home at address 8854 Ginko Run, Parrish, FL 34219

Seastone
Savings$299,490
- 3 bd
- 2.5 ba
- 1,828 sqft
8854 Ginko Run, Parrish, FL 34219
- Home at address 9175 Aurelia Ave, Parrish, FL 34219

Lakewood
Savings$308,574
- 3 bd
- 2.5 ba
- 1,704 sqft
9175 Aurelia Ave, Parrish, FL 34219
- Home at address 9179 Aurelia Ave, Parrish, FL 34219

Lakewood
Savings$309,306
- 3 bd
- 2.5 ba
- 1,704 sqft
9179 Aurelia Ave, Parrish, FL 34219
- Home at address 9135 Aurelia Ave, Parrish, FL 34219

Seastone
Savings$313,490
- 3 bd
- 2.5 ba
- 1,828 sqft
9135 Aurelia Ave, Parrish, FL 34219
Floor plans in Crosswind Ranch
About the builder - Mattamy Homes

- 120communities on Jome
- 1,294homes on Jome
Neighborhood
Home address
Schools in Manatee County School District
GreatSchools’ Summary Rating calculation is based on 4 of the school’s themed ratings, including test scores, student/academic progress, college readiness, and equity. This information should only be used as a reference. Jome is not affiliated with GreatSchools and does not endorse or guarantee this information. Please reach out to schools directly to verify all information and enrollment eligibility. Data provided by GreatSchools.org © 2025
Places of interest
Getting around
Air quality

Considering this home?
Our expert will guide your tour, in-person or virtual
Need more information?
Text or call (888) 545-5198
Financials
Estimated monthly payment
Let us help you find your dream home
How many bedrooms are you looking for?
Similar homes nearby
Recently added communities in this area
Nearby communities in Parrish
New homes in nearby cities
More New Homes in Parrish, FL
MATTAMY REAL ESTATE SERVICES, MLS TB8487105
Based on information submitted to the MLS GRID as of 10/21/2024 2:31 PM CDT. All data is obtained from various sources and may not have been verified by broker or MLS GRID. Supplied Open House Information is subject to change without notice. All information should be independently reviewed and verified for accuracy. Properties may or may not be listed by the office/agent presenting the information. Some IDX listings have been excluded from this website. Properties displayed may be listed or sold by various participants in the MLS. IDX information is provided exclusively for personal, non-commercial use, and may not be used for any purpose other than to identify prospective properties consumers may be interested in purchasing. Information is deemed reliable but not guaranteed. Use of the MLS GRID Data may be subject to an end user license agreement prescribed by the Member Participant’s applicable MLS if any and as amended from time to time. The Digital Millennium Copyright Act of 1998, 17 U.S.C. § 512 (the “DMCA”) provides recourse for copyright owners who believe that material appearing on the Internet infringes their rights under U.S. copyright law. If you believe in good faith that any content or material made available in connection with our website or services infringes your copyright, you (or your agent) may send us a notice requesting that the content or material be removed, or access to it blocked. Notices must be sent in writing by email to DMCAnotice@MLSGrid.com. The DMCA requires that your notice of alleged copyright infringement include the following information: (1) description of the copyrighted work that is the subject of claimed infringement; (2) description of the alleged infringing content and information sufficient to permit us to locate the content; (3) contact information for you, including your address, telephone number and email address; (4) a statement by you that you have a good faith belief that the content in the manner complained of is not authorized by the copyright owner, or its agent, or by the operation of any law; (5) a statement by you, signed under penalty of perjury, that the information in the notification is accurate and that you have the authority to enforce the copyrights that are claimed to be infringed; and (6) a physical or electronic signature of the copyright owner or a person authorized to act on the copyright owner’s behalf. Failure to include all of the above information may result in the delay of the processing of your complaint. Listing Information presented by local MLS brokerage: NewHomesMate LLC, DBA Jome (888) 545-5198
Read moreLast checked Mar 17, 3:10 am
- Jome
- New homes search
- Florida
- Tampa Bay Area
- Manatee County
- Parrish
- Crosswind Ranch
- 8823 Ginko Run, Parrish, FL 34219






























