



Book your tour. Save an average of $18,473. We'll handle the rest.
We collect exclusive builder offers, book your tours, and support you from start to housewarming.
- Confirmed tours
- Get matched & compare top deals
- Expert help, no pressure
- No added fees
Estimated value based on Jome data, T&C apply
Why tour with Jome?
- No pressure toursTour at your own pace with no sales pressure
- Expert guidanceGet insights from our home buying experts
- Exclusive accessSee homes and deals not available elsewhere
Jome is featured in
- Single-Family
- $159.86/sqft
- $51.2/monthly HOA
- West facing
Home description
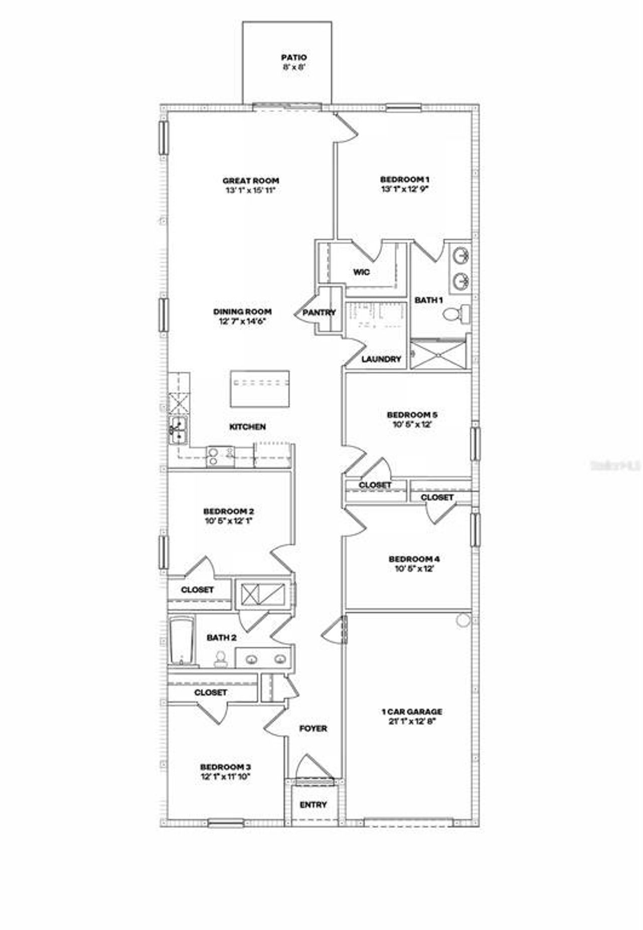
The Aflord floorplan is a thoughtfully designed single-story home featuring 5 bedrooms, 2 full bathrooms, and over 1,700 square feet of open-concept living space. This plan features a bright and airy layout that blends functionality with modern style. At the heart of the home, the kitchen impresses with sleek quartz countertops, a center island, and stainless-steel appliances, creating a stylish and functional space for cooking and entertaining. The adjoining dining and living areas open up to the outdoor patio. The Owner's Suite features a private ensuite bathroom, with a double vanity sink and large walk-in closet. The 4 additional bedrooms share the spacious second bathroom, also with a double vanity sink and quartz countertops. The dedicated laundry room is conveniently situated near the bedrooms and kitchen. The Alford is complete with a state-of-the-art smart home system that keeps you connected to your home at all times. Pictures, photographs, colors, features, and sizes are for illustration purposes only and will vary from the homes as built. Home and community information including pricing, included features, terms, availability and amenities are subjext to change and prior sale at any time without notice or obligation. CRC057592.
DR HORTON REALTY OF WEST CENTRAL FLORIDA, MLS OM720679
May also be listed on the D.R. Horton website
Information last verified by Jome: Yesterday at 10:02 AM (May 2, 2026)
Home highlights
Gateway to Ocala’s top biking trails with access to wooded paths, pump tracks, and adventure in the Florida wilderness.
Book your tour. Save an average of $18,473. We'll handle the rest.
We collect exclusive builder offers, book your tours, and support you from start to housewarming.
- Confirmed tours
- Get matched & compare top deals
- Expert help, no pressure
- No added fees
Estimated value based on Jome data, T&C apply
Home details
- Property status:
- Pending/Under contract
- Lot size (acres):
- 0.10
- Size:
- 1,739 sqft
- Stories:
- 1
- Beds:
- 5
- Baths:
- 2
- Garage spaces:
- 1
- Facing direction:
- West
Construction details
- Builder Name:
- D.R. Horton
- Completion Date:
- March, 2026
- Year Built:
- 2026
- Roof:
- Shingle Roofing
Home features & finishes
- Construction Materials:
- Block
- Cooling:
- Central Air
- Flooring:
- Vinyl FlooringCarpet Flooring
- Foundation Details:
- Slab
- Garage/Parking:
- GarageAttached Garage
- Interior Features:
- Walk-In ClosetFoyerPantry
- Kitchen:
- DishwasherMicrowave OvenStainless Steel AppliancesKitchen IslandKitchen Range
- Laundry facilities:
- Utility/Laundry Room
- Pets:
- Pets Allowed
- Property amenities:
- IrrigationPatioSmart Home System
- Rooms:
- Great RoomPrimary Bedroom On MainKitchenDining RoomOpen Concept FloorplanPrimary Bedroom Downstairs

Get a consultation with our New Homes Expert
- See how your home builds wealth
- Plan your home-buying roadmap
- Discover hidden gems
Utility information
- Heating:
- Electric Heating, Heat Pump
- Sewer:
- Public Sewer
- Utilities:
- Other
- Water source:
- Public

Community details
Derby Creek
by D.R. Horton, Ocala, FL
- 8 homes
- 3 plans
- 1,223 - 1,739 sqft
View Derby Creek details
More homes in Derby Creek
- Home at address 7749 Sw 46Th Ct, Ocala, FL 34476

Alford
$278,965
- 5 bd
- 2 ba
- 1,739 sqft
7749 Sw 46Th Ct, Ocala, FL 34476
Floor plans in Derby Creek
About the builder - D.R. Horton

- 1,154communities on Jome
- 11,355homes on Jome
Neighborhood
Home address
Schools in Marion County School District
GreatSchools’ Summary Rating calculation is based on 4 of the school’s themed ratings, including test scores, student/academic progress, college readiness, and equity. This information should only be used as a reference. Jome is not affiliated with GreatSchools and does not endorse or guarantee this information. Please reach out to schools directly to verify all information and enrollment eligibility. Data provided by GreatSchools.org © 2025
Places of interest
Getting around
Air quality

Considering this home?
Our expert will guide your tour, in-person or virtual
Need more information?
Text or call (888) 545-5198
Financials
Estimated monthly payment
Let us help you find your dream home
How many bedrooms are you looking for?
Similar homes nearby
Recently added communities in this area
Nearby communities in Ocala
New homes in nearby cities
More New Homes in Ocala, FL
DR HORTON REALTY OF WEST CENTRAL FLORIDA, MLS OM720679
Based on information submitted to the MLS GRID as of 10/21/2024 2:31 PM CDT. All data is obtained from various sources and may not have been verified by broker or MLS GRID. Supplied Open House Information is subject to change without notice. All information should be independently reviewed and verified for accuracy. Properties may or may not be listed by the office/agent presenting the information. Some IDX listings have been excluded from this website. Properties displayed may be listed or sold by various participants in the MLS. IDX information is provided exclusively for personal, non-commercial use, and may not be used for any purpose other than to identify prospective properties consumers may be interested in purchasing. Information is deemed reliable but not guaranteed. Use of the MLS GRID Data may be subject to an end user license agreement prescribed by the Member Participant’s applicable MLS if any and as amended from time to time. The Digital Millennium Copyright Act of 1998, 17 U.S.C. § 512 (the “DMCA”) provides recourse for copyright owners who believe that material appearing on the Internet infringes their rights under U.S. copyright law. If you believe in good faith that any content or material made available in connection with our website or services infringes your copyright, you (or your agent) may send us a notice requesting that the content or material be removed, or access to it blocked. Notices must be sent in writing by email to DMCAnotice@MLSGrid.com. The DMCA requires that your notice of alleged copyright infringement include the following information: (1) description of the copyrighted work that is the subject of claimed infringement; (2) description of the alleged infringing content and information sufficient to permit us to locate the content; (3) contact information for you, including your address, telephone number and email address; (4) a statement by you that you have a good faith belief that the content in the manner complained of is not authorized by the copyright owner, or its agent, or by the operation of any law; (5) a statement by you, signed under penalty of perjury, that the information in the notification is accurate and that you have the authority to enforce the copyrights that are claimed to be infringed; and (6) a physical or electronic signature of the copyright owner or a person authorized to act on the copyright owner’s behalf. Failure to include all of the above information may result in the delay of the processing of your complaint. Listing Information presented by local MLS brokerage: NewHomesMate LLC, DBA Jome (888) 545-5198
Read moreLast checked May 3, 3:10 am
- Jome
- New homes search
- Florida
- Gainesville-Ocala Area
- Marion County
- Ocala
- Derby Creek
- 7713 Sw 46Th Ct, Ocala, FL 34476



























