



Book your tour. Save an average of $18,473. We'll handle the rest.
We collect exclusive builder offers, book your tours, and support you from start to housewarming.
- Confirmed tours
- Get matched & compare top deals
- Expert help, no pressure
- No added fees
Estimated value based on Jome data, T&C apply


- 5 bd
- 5 ba
- 4,723 sqft
11 Main St, Windermere, FL 34786
Why tour with Jome?
- No pressure toursTour at your own pace with no sales pressure
- Expert guidanceGet insights from our home buying experts
- Exclusive accessSee homes and deals not available elsewhere
Jome is featured in
- Single-Family
- Ready by July 2026
- $1418.59/sqft
- West facing
Home description
Brand New Construction in the Heart of Downtown Windermere – Currently Under Construction!
Walking distance to downtown events, the farmers market, food trucks, and the local brewery. Historic Windermere is golf cart friendly and known for its outdoor lifestyle with parks, recreation areas, tennis courts, public docks, and swimming areas.
Bring your boat! This waterfront homesite sits on Fischer Canal with access to the 13 lakes of the spring-fed Butler Chain of Lakes. A new seawall and dock provide space for your boat and jet ski — and no HOA fees!
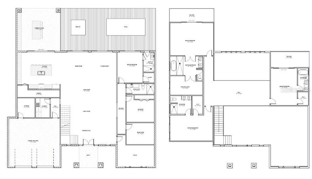
This custom home is currently under construction with an expected completion date of late Summer 2026. The thoughtfully designed two-story residence will offer approximately 4,700 square feet, featuring expansive open living spaces, soaring ceilings, and a modern architectural design. The floor plan includes a spacious great room, designer kitchen, and seamless indoor-outdoor living opening to the lanai and pool area overlooking the canal.
The layout features a luxurious first-floor primary suite, additional bedrooms and loft space upstairs, private balcony areas, and a two-car garage, creating a perfect blend of comfort, style, and waterfront living in one of Central Florida’s most sought-after lakefront communities.
GOLDEN GROUP REALTY LLC, MLS O6387596
Information last verified by Jome: Yesterday at 9:44 AM (April 20, 2026)
Book your tour. Save an average of $18,473. We'll handle the rest.
We collect exclusive builder offers, book your tours, and support you from start to housewarming.
- Confirmed tours
- Get matched & compare top deals
- Expert help, no pressure
- No added fees
Estimated value based on Jome data, T&C apply
Home details
- Property status:
- Under construction
- Lot size (acres):
- 0.41
- Size:
- 4,723 sqft
- Stories:
- 2
- Beds:
- 5
- Baths:
- 5
- Garage spaces:
- 2
- Facing direction:
- West
Construction details
- Completion Date:
- July, 2026
- Year Built:
- 2026
- Roof:
- Shingle Roofing
Home features & finishes
- Construction Materials:
- StuccoBlock
- Cooling:
- Central Air
- Foundation Details:
- Slab
- Garage/Parking:
- Door OpenerGarageAttached Garage
- Laundry facilities:
- Utility/Laundry Room
- Pets:
- Pets Allowed
- Property amenities:
- Landscaping

Get a consultation with our New Homes Expert
- See how your home builds wealth
- Plan your home-buying roadmap
- Discover hidden gems
Utility information
- Heating:
- Electric Heating
- Utilities:
- Electricity Available, Sewer Available, Water Available
- Water source:
- Public
Community amenities
- Waterfront View
Neighborhood
Home address
- City:
- Windermere
- County:
- Orange
- Zip Code:
- 34786
Schools in Orange County School District
GreatSchools’ Summary Rating calculation is based on 4 of the school’s themed ratings, including test scores, student/academic progress, college readiness, and equity. This information should only be used as a reference. Jome is not affiliated with GreatSchools and does not endorse or guarantee this information. Please reach out to schools directly to verify all information and enrollment eligibility. Data provided by GreatSchools.org © 2025
Places of interest
Getting around
Noise level
A Soundscore™ rating is a number between 50 (very loud) and 100 (very quiet) that tells you how loud a location is due to environmental noise.
Natural hazards risk
Provided by FEMA

Considering this home?
Our expert will guide your tour, in-person or virtual
Need more information?
Text or call (888) 545-5198
Financials
Estimated monthly payment
Let us help you find your dream home
How many bedrooms are you looking for?
Similar homes nearby
Recently added communities in this area
Nearby communities in Windermere
New homes in nearby cities
More New Homes in Windermere, FL
GOLDEN GROUP REALTY LLC, MLS O6387596
Based on information submitted to the MLS GRID as of 10/21/2024 2:31 PM CDT. All data is obtained from various sources and may not have been verified by broker or MLS GRID. Supplied Open House Information is subject to change without notice. All information should be independently reviewed and verified for accuracy. Properties may or may not be listed by the office/agent presenting the information. Some IDX listings have been excluded from this website. Properties displayed may be listed or sold by various participants in the MLS. IDX information is provided exclusively for personal, non-commercial use, and may not be used for any purpose other than to identify prospective properties consumers may be interested in purchasing. Information is deemed reliable but not guaranteed. Use of the MLS GRID Data may be subject to an end user license agreement prescribed by the Member Participant’s applicable MLS if any and as amended from time to time. The Digital Millennium Copyright Act of 1998, 17 U.S.C. § 512 (the “DMCA”) provides recourse for copyright owners who believe that material appearing on the Internet infringes their rights under U.S. copyright law. If you believe in good faith that any content or material made available in connection with our website or services infringes your copyright, you (or your agent) may send us a notice requesting that the content or material be removed, or access to it blocked. Notices must be sent in writing by email to DMCAnotice@MLSGrid.com. The DMCA requires that your notice of alleged copyright infringement include the following information: (1) description of the copyrighted work that is the subject of claimed infringement; (2) description of the alleged infringing content and information sufficient to permit us to locate the content; (3) contact information for you, including your address, telephone number and email address; (4) a statement by you that you have a good faith belief that the content in the manner complained of is not authorized by the copyright owner, or its agent, or by the operation of any law; (5) a statement by you, signed under penalty of perjury, that the information in the notification is accurate and that you have the authority to enforce the copyrights that are claimed to be infringed; and (6) a physical or electronic signature of the copyright owner or a person authorized to act on the copyright owner’s behalf. Failure to include all of the above information may result in the delay of the processing of your complaint. Listing Information presented by local MLS brokerage: NewHomesMate LLC, DBA Jome (888) 545-5198
Read moreLast checked Apr 21, 9:10 am
- Jome
- New homes search
- Florida
- Greater Orlando Area
- Orange County
- Windermere
- 11 Main St, Windermere, FL 34786


























