








































- 4 bd
- 2.5 ba
- 2,190 sqft
86 Chestnut Grove Rd, St. Augustine, FL 32092
- Single-Family
- $214.61/sqft
- $100/monthly HOA
- West facing
New Homes for Sale Near 86 Chestnut Grove Rd, St. Augustine, FL 32092
About this Home
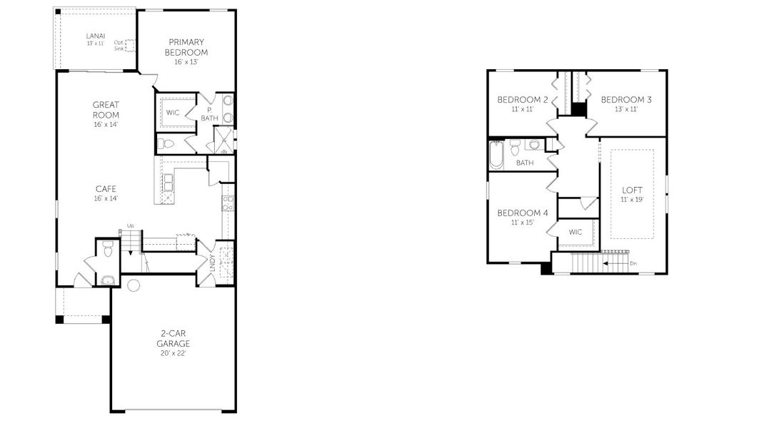
The Stockton II floorplan is a spacious two-story home designed to enhance modern living with its thoughtfully laid-out design. Boasting four comfortable bedrooms, including a luxurious primary suite, and 2.5 bathrooms, this home provides the perfect balance of privacy and convenience for the entire family. The open-concept main floor seamlessly connects the kitchen, dining, and living areas, creating a bright and inviting space ideal for entertaining or everyday activities. With its combination of functionality and style, the Stockton II is designed to meet the needs of contemporary living. It’s the perfect place to call home, offering comfort, versatility, and a welcoming atmosphere.Photos are representative of a Stockton II Floorplan**
May also be listed on the Dream Finders Homes website
Information last verified by Jome: Wednesday at 5:18 AM (February 18, 2026)
Home details
- Property status:
- Sold
- Collection:
- Brook Forest 40'
- Size:
- 2,190 sqft
- Stories:
- 2
- Beds:
- 4
- Baths:
- 2
- Half baths:
- 1
- Garage spaces:
- 2
- Facing direction:
- West

Floor plan details
Stockton II - 40' Homesites
- 4 bd
- 2.5 ba
- 2,190 sqft
View Stockton II - 40' Homesites details
Construction details
- Builder Name:
- Dream Finders Homes
Home features & finishes
- Garage/Parking:
- GarageAttached Garage
- Interior Features:
- Walk-In ClosetPantryLoft
- Kitchen:
- Gas CooktopKitchen Range
- Laundry facilities:
- Utility/Laundry Room
- Property amenities:
- SodPatioPorch
- Rooms:
- Primary Bedroom On MainKitchenDining RoomFamily RoomOpen Concept FloorplanPrimary Bedroom Downstairs
Utility information
- Heating:
- Tankless water heater
- Utilities:
- Natural Gas Available, Natural Gas on Property

Community details
Brook Forest
by Dream Finders Homes, St. Augustine, FL
- 20 homes
- 22 plans
- 1,386 - 3,518 sqft
View Brook Forest details
More homes in Brook Forest
- Home at address 51 Camphor Laurel Rd, St. Augustine, FL 32092

$349,990
Under construction- 4 bd
- 3 ba
- 1,853 sqft
51 Camphor Laurel Rd, St. Augustine, FL 32092
- Home at address 389 Woods Ln, St. Augustine, FL 32092

$370,490
Under construction- 4 bd
- 3 ba
- 1,760 sqft
389 Woods Ln, St. Augustine, FL 32092
- Home at address 63 Camphor Laurel Rd, St. Augustine, FL 32092

$386,490
Move-in ready- 4 bd
- 3 ba
- 1,853 sqft
63 Camphor Laurel Rd, St. Augustine, FL 32092
- Home at address 390 Woods Ln, St. Augustine, FL 32092

$390,490
Under construction- 4 bd
- 3 ba
- 1,760 sqft
390 Woods Ln, St. Augustine, FL 32092
- Home at address 262 Fern Valley Ct, St. Augustine, FL 32092

$400,490
Under construction- 4 bd
- 3 ba
- 2,125 sqft
262 Fern Valley Ct, St. Augustine, FL 32092
- Home at address 388 Brook Forest Dr, St. Augustine, FL 32092

$487,465
Move-in ready- 4 bd
- 2.5 ba
- 1,968 sqft
388 Brook Forest Dr, St. Augustine, FL 32092
Floor plans in Brook Forest
- View details for Osprey - Townhomes

Osprey - Townhomes
Brook Forest - Townhomes
$362,490+- 4 bd
- 2.5 ba
- 1,760 sqft
About the builder - Dream Finders Homes

- 333communities on Jome
- 1,594homes on Jome
Neighborhood
Home address
- City:
- St. Augustine
- County:
- St. Johns
- Zip Code:
- 32092
Schools in St. Johns County School District
GreatSchools’ Summary Rating calculation is based on 4 of the school’s themed ratings, including test scores, student/academic progress, college readiness, and equity. This information should only be used as a reference. Jome is not affiliated with GreatSchools and does not endorse or guarantee this information. Please reach out to schools directly to verify all information and enrollment eligibility. Data provided by GreatSchools.org © 2025
Places of interest
Getting around
Financials
Nearby communities in St. Augustine
Homes in St. Augustine by Dream Finders Homes
Recently added communities in this area
Other Builders in St. Augustine, FL
Nearby sold homes
New homes in nearby cities
More New Homes in St. Augustine, FL
- Jome
- New homes search
- Florida
- Jacksonville Metropolitan Area
- St. Johns County
- St. Augustine
- Brook Forest
- Brook Forest 40'
- 86 Chestnut Grove Rd, St. Augustine, FL 32092
































































