



- 3 bd
- 2.5 ba
- 1,644 sqft
13291 Peaceful Melody Dr, Winter Garden, FL 34787
- Townhouse
- $274.07/sqft
- $121/monthly HOA
- 61 days on Jome
New Homes for Sale Near 13291 Peaceful Melody Dr, Winter Garden, FL 34787
About this Home
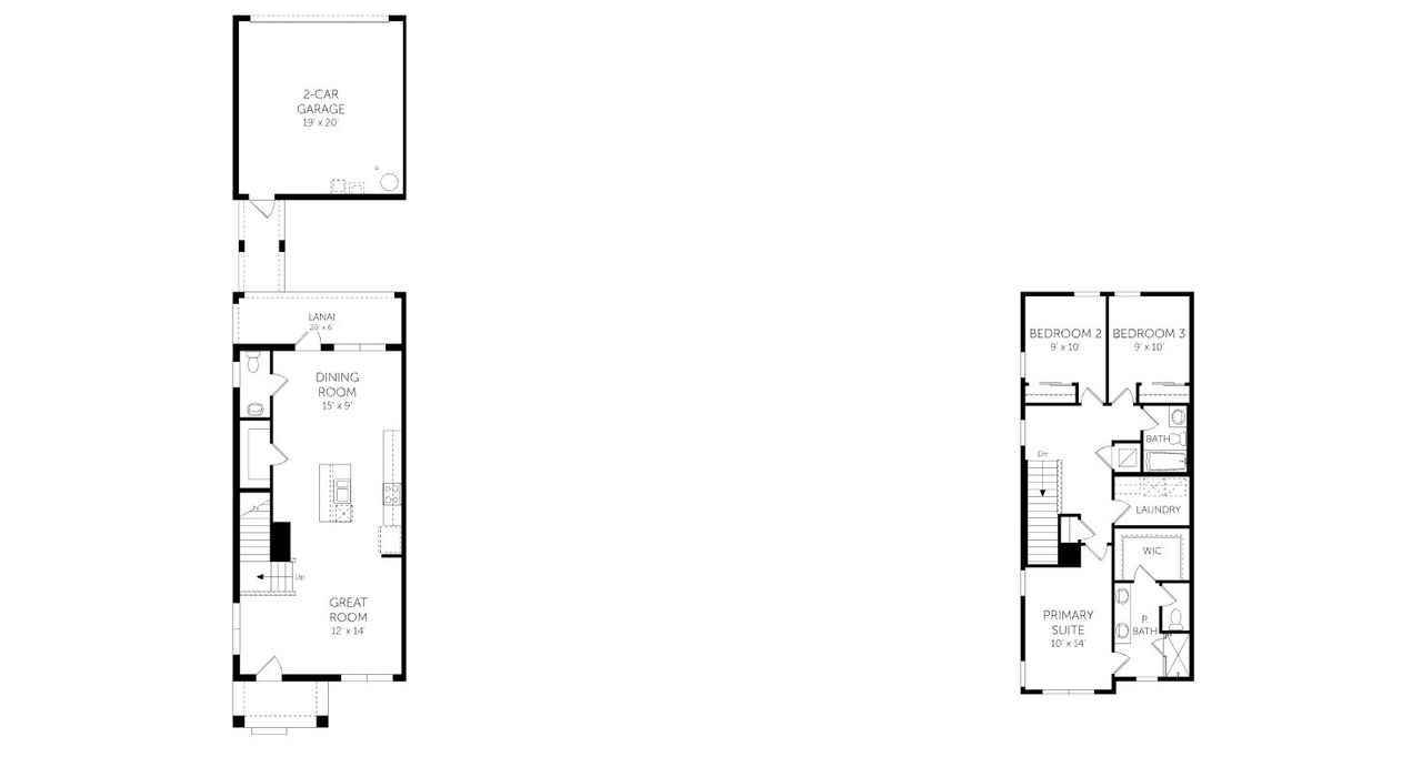
The Harbor floor plan offers a smartly designed two-story townhome that caters to both convenience and space. With three bedrooms and two and a half bathrooms, this home ensures comfort on every level. All three bedrooms are located upstairs, providing privacy and quiet from the main living areas. The second floor also features a spacious primary suite with a walk-in closet and private bath, alongside two additional bedrooms. Downstairs, the open-concept layout connects the great room to the dining area, making it perfect for entertaining or family gatherings. The covered lanai offers a cozy outdoor retreat, ideal for relaxing at the end of the day. Completing the home is a detached two-car garage, ensuring ample parking and storage. The Harbor floor plan offers modern living tailored to meet everyday needs with style and functionality.
May also be listed on the Dream Finders Homes website
Information last verified by Jome: Wednesday at 10:33 AM (February 18, 2026)
Home details
- Property status:
- Sold
- Collection:
- Serenade at Ovation Townhomes
- Size:
- 1,644 sqft
- Stories:
- 2
- Beds:
- 3
- Baths:
- 2
- Half baths:
- 1
- Garage spaces:
- 2

Floor plan details
Harbor - Townhomes
- 3 bd
- 2.5 ba
- 1,644 sqft
View Harbor - Townhomes details
Construction details
- Builder Name:
- Dream Finders Homes
Home features & finishes
- Garage/Parking:
- Garage
- Interior Features:
- Walk-In ClosetFoyerPantryLoft
- Kitchen:
- Kitchen Island
- Laundry facilities:
- Utility/Laundry Room
- Property amenities:
- LanaiPorch
- Rooms:
- KitchenPowder RoomDining RoomFamily RoomLiving RoomOpen Concept FloorplanPrimary Bedroom Upstairs

Community details
Serenade at Ovation at Ovation
by Dream Finders Homes, Oakland, FL
- 8 homes
- 12 plans
- 1,644 - 2,856 sqft
View Serenade at Ovation details
More homes in Serenade at Ovation
- Home at address 13343 Peaceful Melody Dr, Winter Garden, FL 34787
Savings$451,351
Move-in ready- 3 bd
- 2.5 ba
- 1,644 sqft
13343 Peaceful Melody Dr, Winter Garden, FL 34787
- Home at address 13169 Calming Breeze Wy, Winter Garden, FL 34787
Savings$545,990
Move-in ready- 3 bd
- 2.5 ba
- 2,078 sqft
13169 Calming Breeze Wy, Winter Garden, FL 34787
- Home at address 13037 Serene Glade Rd, Winter Garden, FL 34787
Savings$569,990
Move-in ready- 3 bd
- 2.5 ba
- 1,836 sqft
13037 Serene Glade Rd, Winter Garden, FL 34787
- Home at address 13013 Serene Glade Rd, Winter Garden, FL 34787
Savings$574,990
Move-in ready- 3 bd
- 2.5 ba
- 1,836 sqft
13013 Serene Glade Rd, Winter Garden, FL 34787
- Home at address 13011 Tranquil Water Aly, Winter Garden, FL 34787
Savings$594,990
Move-in ready- 3 bd
- 2.5 ba
- 2,078 sqft
13011 Tranquil Water Aly, Winter Garden, FL 34787
- Home at address 13007 Serene Glade Rd, Winter Garden, FL 34787
Savings$599,990
Move-in ready- 4 bd
- 3 ba
- 2,083 sqft
13007 Serene Glade Rd, Winter Garden, FL 34787
Floor plans in Serenade at Ovation
- View details for Harbor - Townhomes

Harbor - Townhomes
SavingsSerenade at Ovation Townhomes
$399,990+- 3 bd
- 2.5 ba
- 1,644 sqft
- View details for Porter - Townhomes

Porter - Townhomes
SavingsSerenade at Ovation Townhomes
$407,990+- 3 bd
- 2.5 ba
- 1,715 sqft
About the builder - Dream Finders Homes

- 332communities on Jome
- 1,669homes on Jome
Neighborhood
Home address
- City:
- Winter Garden
- County:
- Orange
- Zip Code:
- 34787
Schools in Orange County School District
GreatSchools’ Summary Rating calculation is based on 4 of the school’s themed ratings, including test scores, student/academic progress, college readiness, and equity. This information should only be used as a reference. Jome is not affiliated with GreatSchools and does not endorse or guarantee this information. Please reach out to schools directly to verify all information and enrollment eligibility. Data provided by GreatSchools.org © 2025
Places of interest
Getting around
Noise level
A Soundscore™ rating is a number between 50 (very loud) and 100 (very quiet) that tells you how loud a location is due to environmental noise.
Financials
Nearby communities in Winter Garden
Homes in Winter Garden by Dream Finders Homes
Recently added communities in this area
Other Builders in Winter Garden, FL
Nearby sold homes
New homes in nearby cities
More New Homes in Winter Garden, FL
- Jome
- New homes search
- Florida
- Greater Orlando Area
- Orange County
- Winter Garden
- Serenade at Ovation
- Serenade at Ovation Townhomes
- 13291 Peaceful Melody Dr, Winter Garden, FL 34787






















































