








Book your tour. Save an average of $18,473. We'll handle the rest.
We collect exclusive builder offers, book your tours, and support you from start to housewarming.
- Confirmed tours
- Get matched & compare top deals
- Expert help, no pressure
- No added fees
Estimated value based on Jome data, T&C apply





















































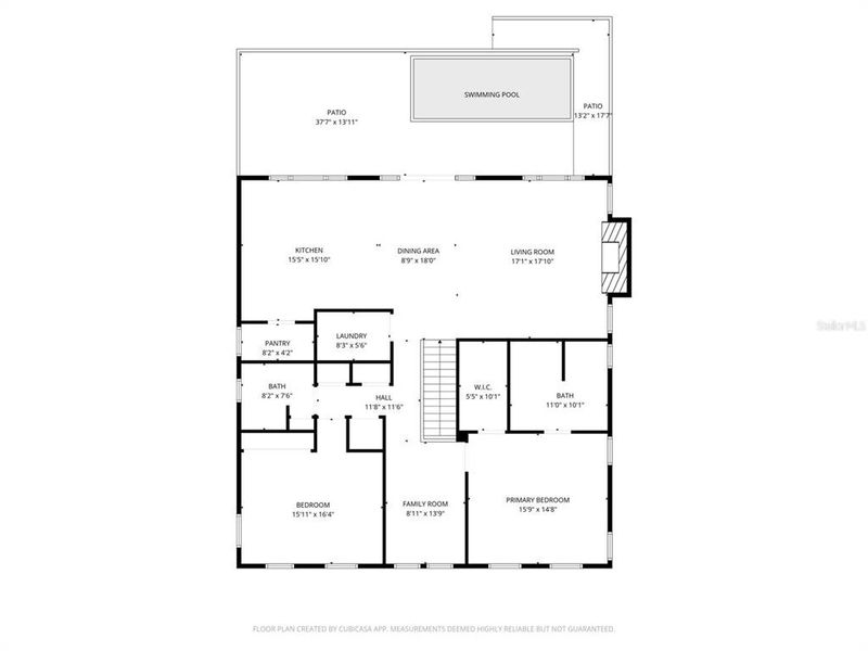
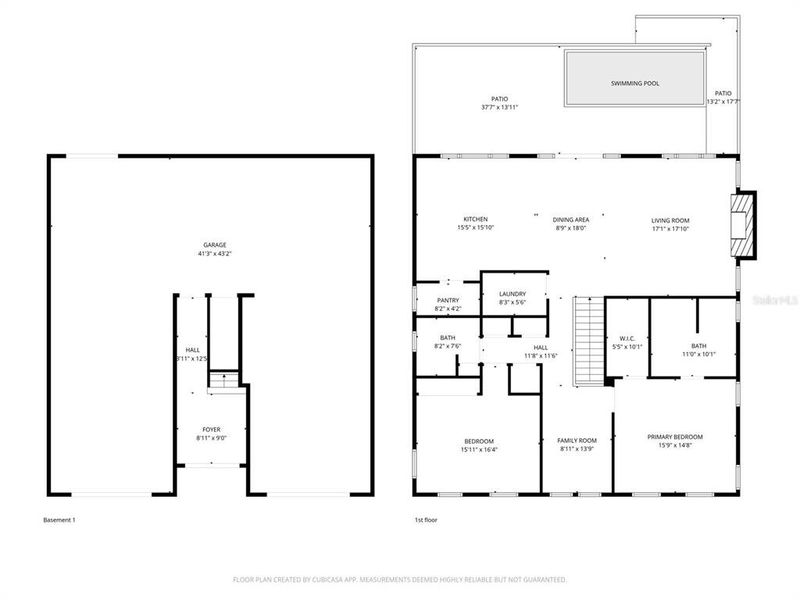
- 2 bd
- 2 ba
- 2,130 sqft
314 6Th Ave, Indian Rocks Beach, FL 33785
Why tour with Jome?
- No pressure toursTour at your own pace with no sales pressure
- Expert guidanceGet insights from our home buying experts
- Exclusive accessSee homes and deals not available elsewhere
Jome is featured in
- Single-Family
- Quick move-in
- $798.12/sqft
- South facing
Home description
Modern Coastal Masterpiece | New 2024 Concrete Construction in Indian Rocks Beach
Experience elevated coastal living in this custom, all poured-in-place concrete home built in 2024, ideally located in the heart of Indian Rocks Beach. Designed for durability, efficiency, and modern luxury, this 2-bedroom( with den), 2-bath elevated residence offers exceptional craftsmanship and thoughtful upgrades throughout.
Soaring 9+ foot ceilings and 8-foot interior doors create a bright, open atmosphere, complemented by luxury vinyl plank flooring and hurricane impact-rated windows and doors for peace of mind. The chef’s kitchen features custom cabinetry, stainless steel natural gas appliances, and designer finishes—perfect for both entertaining and everyday living.
The primary suite is a private retreat with custom built-in closets, dual vanities, and a spa-inspired curb-less shower. Every detail has been curated, from the high-end finishes to the seamless indoor-outdoor flow.
Step outside to your own second-floor PebbleTec saltwater pool, complete with automation and heater, ideal for year-round enjoyment. This home is built for modern coastal living with 32 owned solar panels, a natural gas whole-house generator, brand new seawall, outside shower, natural gas tankless water heater, and four-car parking—a rare find at the beach.
Constructed entirely of poured-in-place concrete and elevated for longevity, this home blends cutting-edge construction with timeless coastal style. Whether as a primary residence, second home, or investment (short-term rental friendly), this is a turn-key luxury property just minutes from the sugar-sand beaches of the Gulf. This home is priced below lot plus construction cost, this one will not last!
Schedule your private showing today and experience Indian Rocks Beach living at its finest.
FLORIDA COASTAL RLTY & INV., MLS TB8465760
Information last verified by Jome: Today at 10:25 AM (April 21, 2026)
Book your tour. Save an average of $18,473. We'll handle the rest.
We collect exclusive builder offers, book your tours, and support you from start to housewarming.
- Confirmed tours
- Get matched & compare top deals
- Expert help, no pressure
- No added fees
Estimated value based on Jome data, T&C apply
Home details
- Property status:
- Move-in ready
- Lot size (acres):
- 0.15
- Size:
- 2,130 sqft
- Stories:
- 2
- Beds:
- 2
- Baths:
- 2
- Garage spaces:
- 4
- Facing direction:
- South
Construction details
- Year Built:
- 2024
- Roof:
- Shingle Roofing
Home features & finishes
- Construction Materials:
- StuccoConcrete
- Cooling:
- Ceiling Fan(s)Mini-Split SystemCentral Air
- Flooring:
- Ceramic FlooringVinyl FlooringTile Flooring
- Foundation Details:
- Slab
- Garage/Parking:
- GarageAttached Garage
- Home amenities:
- Green Construction
- Interior Features:
- Ceiling-HighWindow TreatmentsWalk-In Closet
- Kitchen:
- Wine RefrigeratorDishwasherMicrowave OvenRefrigeratorDisposalKitchen Range
- Laundry facilities:
- DryerWasherUtility/Laundry Room
- Pets:
- Pets Allowed
- Property amenities:
- BalconyPoolCabinetsElectric FireplaceFireplace
- Rooms:
- Family RoomLiving RoomOpen Concept FloorplanPrimary Bedroom Upstairs

Get a consultation with our New Homes Expert
- See how your home builds wealth
- Plan your home-buying roadmap
- Discover hidden gems
Utility information
- Heating:
- Electric Heating, Water Heater, Central Heating, Gas Heating, Tankless water heater
- Sewer:
- Public Sewer
- Water source:
- Public
Community amenities
- Waterfront View
Neighborhood
Home address
- City:
- Indian Rocks Beach
- County:
- Pinellas
- Zip Code:
- 33785
Schools in Pinellas County School District
GreatSchools’ Summary Rating calculation is based on 4 of the school’s themed ratings, including test scores, student/academic progress, college readiness, and equity. This information should only be used as a reference. Jome is not affiliated with GreatSchools and does not endorse or guarantee this information. Please reach out to schools directly to verify all information and enrollment eligibility. Data provided by GreatSchools.org © 2025
Places of interest
Getting around
Air quality
Natural hazards risk
Provided by FEMA

Considering this home?
Our expert will guide your tour, in-person or virtual
Need more information?
Text or call (888) 545-5198
Financials
Estimated monthly payment
Let us help you find your dream home
How many bedrooms are you looking for?
Similar homes nearby
Recently added communities in this area
Nearby communities in Indian Rocks Beach
New homes in nearby cities
More New Homes in Indian Rocks Beach, FL
FLORIDA COASTAL RLTY & INV., MLS TB8465760
Based on information submitted to the MLS GRID as of 10/21/2024 2:31 PM CDT. All data is obtained from various sources and may not have been verified by broker or MLS GRID. Supplied Open House Information is subject to change without notice. All information should be independently reviewed and verified for accuracy. Properties may or may not be listed by the office/agent presenting the information. Some IDX listings have been excluded from this website. Properties displayed may be listed or sold by various participants in the MLS. IDX information is provided exclusively for personal, non-commercial use, and may not be used for any purpose other than to identify prospective properties consumers may be interested in purchasing. Information is deemed reliable but not guaranteed. Use of the MLS GRID Data may be subject to an end user license agreement prescribed by the Member Participant’s applicable MLS if any and as amended from time to time. The Digital Millennium Copyright Act of 1998, 17 U.S.C. § 512 (the “DMCA”) provides recourse for copyright owners who believe that material appearing on the Internet infringes their rights under U.S. copyright law. If you believe in good faith that any content or material made available in connection with our website or services infringes your copyright, you (or your agent) may send us a notice requesting that the content or material be removed, or access to it blocked. Notices must be sent in writing by email to DMCAnotice@MLSGrid.com. The DMCA requires that your notice of alleged copyright infringement include the following information: (1) description of the copyrighted work that is the subject of claimed infringement; (2) description of the alleged infringing content and information sufficient to permit us to locate the content; (3) contact information for you, including your address, telephone number and email address; (4) a statement by you that you have a good faith belief that the content in the manner complained of is not authorized by the copyright owner, or its agent, or by the operation of any law; (5) a statement by you, signed under penalty of perjury, that the information in the notification is accurate and that you have the authority to enforce the copyrights that are claimed to be infringed; and (6) a physical or electronic signature of the copyright owner or a person authorized to act on the copyright owner’s behalf. Failure to include all of the above information may result in the delay of the processing of your complaint. Listing Information presented by local MLS brokerage: NewHomesMate LLC, DBA Jome (888) 545-5198
Read moreLast checked Apr 21, 9:10 pm
- Jome
- New homes search
- Florida
- Tampa Bay Area
- Pinellas County
- Indian Rocks Beach
- 314 6Th Ave, Indian Rocks Beach, FL 33785



























