














Book your tour. Save an average of $18,473. We'll handle the rest.
We collect exclusive builder offers, book your tours, and support you from start to housewarming.
- Confirmed tours
- Get matched & compare top deals
- Expert help, no pressure
- No added fees
Estimated value based on Jome data, T&C apply













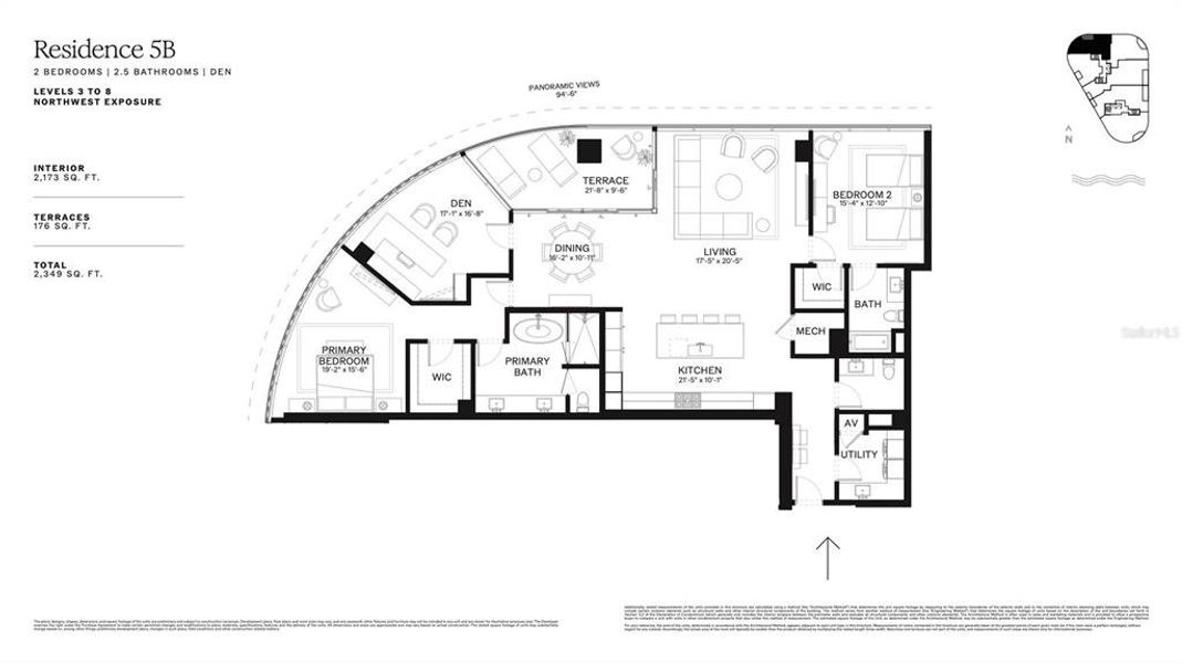
- 2 bd
- 2.5 ba
- 2,173 sqft
805 S Gulfview Blvd, Unit 305B, Clearwater, FL 33767
Why tour with Jome?
- No pressure toursTour at your own pace with no sales pressure
- Expert guidanceGet insights from our home buying experts
- Exclusive accessSee homes and deals not available elsewhere
Jome is featured in
- Condo
- Ready by January 2028
- $918.09/sqft
- South facing
Home description
Experience the pinnacle of modern coastal luxury at Viceroy Residences on Clearwater Beach. Featuring two nine-story towers designed by Randall Stofft Architects with interiors by Steven G. This limited collection of just 86 private residences, including eight ultra-luxury penthouses, offers an unmatched combination of privacy, design excellence, and five-star services in one of Florida’s most coveted beachfront destinations.
This landmark property is the first luxury condominium in the region built with advanced resiliency features, offering peace of mind with gas-powered backup generators, full-residence backup power, impact-rated glass rated for 165 MPH winds, and elevated structures exceeding 500-year flood level standards.
Each home is thoughtfully designed with soaring 10-foot ceilings, floor-to-ceiling windows, and expansive terraces showcasing breathtaking Gulf views. Interior features include Italian porcelain flooring throughout, Italian cabinetry, European quartz countertops, and kitchen appliances by Sub-Zero® and Wolf®. Residents enjoy a full suite of resort-style amenities, including a luxurious pool with private cabanas, 270 feet of secluded private beachfront with a beach bar and fire pit, a private restaurant and pool bar with full food and beverage service, and a serene sunset deck for unwinding at the end of the day.
The building offers an elevated standard of service and security with full-time reception, concierge, valet, porter, and 24/7 guarded access, ensuring a seamless luxury living experience. Residents enjoy the convenience of keyless residential entry with secure guest registration, along with on-demand pool and beach attendants supported by a dedicated full-service Experience Manager.
Additional lifestyle offerings include a state-of-the-art fitness center and yoga room with sweeping Gulf views, a full-service spa with sauna, steam rooms, and hot and cold plunge pools, as well as a media room, resident clubhouse, kids club, teen gaming center, and multiple resident lounges. Pets are welcome.
Perfectly positioned on the white sands of Clearwater Beach, this new construction luxury condo delivers breathtaking Gulf of Mexico sunset views, world-class amenities, and effortless beachfront living. A rare opportunity to own a high-end, hurricane-resilient, waterfront residence in one of Florida’s most desirable coastal markets.
VCWB DEVELOPMENT SALES, LLC, MLS TB8472814
Information last verified by Jome: Today at 9:48 AM (February 27, 2026)
Home highlights
MacDill AFB offers secure housing, top-rated schools, and abundant amenities in vibrant South Tampa.
Book your tour. Save an average of $18,473. We'll handle the rest.
We collect exclusive builder offers, book your tours, and support you from start to housewarming.
- Confirmed tours
- Get matched & compare top deals
- Expert help, no pressure
- No added fees
Estimated value based on Jome data, T&C apply
Home details
- Property status:
- Under construction
- Neighborhood:
- Clearwater Beach Association
- Lot size (acres):
- 3.03
- Size:
- 2,173 sqft
- Stories:
- 9
- Beds:
- 2
- Baths:
- 2
- Half baths:
- 1
- Garage spaces:
- 2
- Facing direction:
- South
Construction details
- Completion Date:
- January, 2028
- Year Built:
- 2027
- Roof:
- Membrane Roofing
Home features & finishes
- Appliances:
- Ice Maker
- Construction Materials:
- Concrete
- Cooling:
- Central Air
- Flooring:
- Tile Flooring
- Foundation Details:
- Slab
- Garage/Parking:
- Assigned parkingGarageCovered Garage/ParkingValet Parking
- Home amenities:
- Internet
- Interior Features:
- Ceiling-HighWindow TreatmentsWalk-In ClosetSliding Doors
- Kitchen:
- Wine RefrigeratorDishwasherMicrowave OvenOvenRefrigeratorDisposalBuilt-In OvenConvection OvenFreezerCooktopKitchen Range
- Laundry facilities:
- DryerWasherUtility/Laundry Room
- Pets:
- Pets AllowedCat(s) Only AllowedDog(s) Only Allowed
- Property amenities:
- BalconyCabinets
- Rooms:
- Primary Bedroom On MainKitchenOpen Concept FloorplanPrimary Bedroom Downstairs

Get a consultation with our New Homes Expert
- See how your home builds wealth
- Plan your home-buying roadmap
- Discover hidden gems
Utility information
- Heating:
- Electric Heating, Thermostat, Water Heater
- Utilities:
- Electricity Available, Natural Gas Available, Cable Available, Water Available
Community amenities
- Fitness Center/Exercise Area
- Club House
- Community Pool
- Waterfront View
Neighborhood
Home address
- Neighborhood:
- Clearwater Beach Association
- City:
- Clearwater
Schools in Pinellas County School District
- Grades KG-08Privatenext level nation academy2.0 mi1186 ne cleveland stna
GreatSchools’ Summary Rating calculation is based on 4 of the school’s themed ratings, including test scores, student/academic progress, college readiness, and equity. This information should only be used as a reference. Jome is not affiliated with GreatSchools and does not endorse or guarantee this information. Please reach out to schools directly to verify all information and enrollment eligibility. Data provided by GreatSchools.org © 2025
Places of interest
Getting around
2 nearby routes: 2 bus, 0 rail, 0 otherAir quality
Noise level
A Soundscore™ rating is a number between 50 (very loud) and 100 (very quiet) that tells you how loud a location is due to environmental noise.
Natural hazards risk
Provided by FEMA

Considering this home?
Our expert will guide your tour, in-person or virtual
Need more information?
Text or call (888) 488-9243
Financials
Estimated monthly payment
Let us help you find your dream home
How many bedrooms are you looking for?
Similar homes nearby
Recently added communities in this area
Nearby communities in Clearwater
New homes in nearby cities
More New Homes in Clearwater, FL
VCWB DEVELOPMENT SALES, LLC, MLS TB8472814
Based on information submitted to the MLS GRID as of 10/21/2024 2:31 PM CDT. All data is obtained from various sources and may not have been verified by broker or MLS GRID. Supplied Open House Information is subject to change without notice. All information should be independently reviewed and verified for accuracy. Properties may or may not be listed by the office/agent presenting the information. Some IDX listings have been excluded from this website. Properties displayed may be listed or sold by various participants in the MLS. IDX information is provided exclusively for personal, non-commercial use, and may not be used for any purpose other than to identify prospective properties consumers may be interested in purchasing. Information is deemed reliable but not guaranteed. Use of the MLS GRID Data may be subject to an end user license agreement prescribed by the Member Participant’s applicable MLS if any and as amended from time to time. The Digital Millennium Copyright Act of 1998, 17 U.S.C. § 512 (the “DMCA”) provides recourse for copyright owners who believe that material appearing on the Internet infringes their rights under U.S. copyright law. If you believe in good faith that any content or material made available in connection with our website or services infringes your copyright, you (or your agent) may send us a notice requesting that the content or material be removed, or access to it blocked. Notices must be sent in writing by email to DMCAnotice@MLSGrid.com. The DMCA requires that your notice of alleged copyright infringement include the following information: (1) description of the copyrighted work that is the subject of claimed infringement; (2) description of the alleged infringing content and information sufficient to permit us to locate the content; (3) contact information for you, including your address, telephone number and email address; (4) a statement by you that you have a good faith belief that the content in the manner complained of is not authorized by the copyright owner, or its agent, or by the operation of any law; (5) a statement by you, signed under penalty of perjury, that the information in the notification is accurate and that you have the authority to enforce the copyrights that are claimed to be infringed; and (6) a physical or electronic signature of the copyright owner or a person authorized to act on the copyright owner’s behalf. Failure to include all of the above information may result in the delay of the processing of your complaint. Listing Information presented by local MLS brokerage: NewHomesMate LLC, DBA Jome (888) 488-9243
Read moreLast checked Feb 27, 3:10 pm
- Jome
- New homes search
- Florida
- Tampa Bay Area
- Pinellas County
- Clearwater
- 805 S Gulfview Blvd, Unit 305B, Clearwater, FL 33767

























