














Book your tour. Save an average of $18,473. We'll handle the rest.
We collect exclusive builder offers, book your tours, and support you from start to housewarming.
- Confirmed tours
- Get matched & compare top deals
- Expert help, no pressure
- No added fees
Estimated value based on Jome data, T&C apply














- 4 bd
- 5 ba
- 2,965 sqft
2532 1St Ave N, St. Petersburg, FL 33713
Why tour with Jome?
- No pressure toursTour at your own pace with no sales pressure
- Expert guidanceGet insights from our home buying experts
- Exclusive accessSee homes and deals not available elsewhere
Jome is featured in
- Single-Family
- Ready by March 2026
- $470/sqft
- $175.21/monthly HOA
Home description
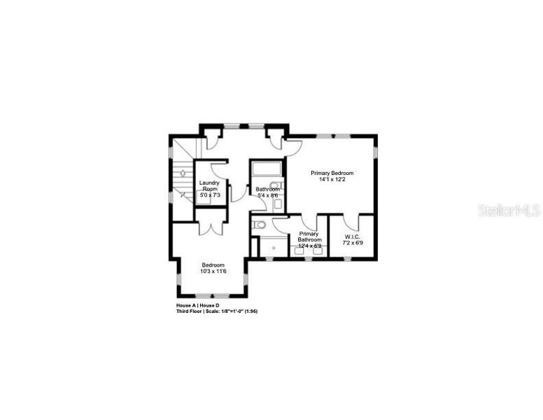
Non-Flood Zone, Non-Evacuation Zone. Discover a newly developed city retreat at Clemmons Court, a standout community nestled in the vibrant heart of the Grand Central District. This exclusive four residence community showcases meticulously designed spaces, featuring rich woods, natural stone countertops, and a private courtyard that fosters a sense of neighborliness among residents. House A is a thoughtfully designed single family home, offering the unique opportunity to generate two passive income streams, if desired. The main residence spans three floors, encompassing 2,588 square feet of air-conditioned elegance, with three bedrooms and 3.5 bathrooms featuring marble stone countertops, engineered hardwood floors throughout and gas appliances. The ground floor seamlessly integrates a 538 square foot commercial workspace, accessible via a separate entrance on First Avenue N. This versatile office space, complete with its own half bathroom, is perfect for leasing or personal use. Venture through the European-style courtyard to discover the detached two-car garage, crowned by an additional 377 square foot Accessory Dwelling Unit (ADU) totaling 2,965 square feet of living space for House A. This self-contained suite boasts a full kitchen, bathroom, and walk-in closet, ideal for guests or rental income. Clemmons Court offers an unparalleled blend of vibrant city life and tranquil retreat, with effortless access to the Grand Central District's diverse offerings. Enjoy dining at local favorites like Wild Child, Baba, and Smallbar, explore art at the Imagine Museum, or relax at cozy coffee spots like Bandit and Pistil House. Embrace luxurious living at Clemmons Court, where a welcoming community awaits behind its gates. Non-Flood Zone (X) and Non-Evacuation Zone. Check out www.clemmonscourt.com for more details! Completion expected end of March 2026.
COMPASS FLORIDA LLC, MLS TB8464915
Information last verified by Jome: Yesterday at 9:53 AM (March 6, 2026)
Book your tour. Save an average of $18,473. We'll handle the rest.
We collect exclusive builder offers, book your tours, and support you from start to housewarming.
- Confirmed tours
- Get matched & compare top deals
- Expert help, no pressure
- No added fees
Estimated value based on Jome data, T&C apply
Home details
- Property status:
- Under construction
- Lot size (acres):
- 0.21
- Size:
- 2,965 sqft
- Beds:
- 4
- Baths:
- 5
- Half baths:
- 2
- Garage spaces:
- 2
- Facing direction:
- North
Construction details
- Completion Date:
- March, 2026
- Year Built:
- 2026
- Roof:
- Shingle Roofing
Home features & finishes
- Appliances:
- Exhaust Fan
- Construction Materials:
- Wood Frame
- Cooling:
- Ceiling Fan(s)Central Air
- Flooring:
- Vinyl FlooringTile FlooringHardwood Flooring
- Foundation Details:
- Slab
- Garage/Parking:
- GarageOff-Street Garage/ParkingRear Entry Garage/Parking
- Home amenities:
- Internet
- Interior Features:
- Ceiling-HighWalk-In Closet
- Kitchen:
- DishwasherMicrowave OvenRefrigeratorKitchen Range
- Laundry facilities:
- DryerWasherUtility/Laundry Room
- Pets:
- Pets AllowedPets Allowed with Breed RestrictionsPets Allowed with Weight Restrictions
- Property amenities:
- SidewalkBalconyCourtyard
- Rooms:
- Bonus RoomPrimary Bedroom Upstairs

Get a consultation with our New Homes Expert
- See how your home builds wealth
- Plan your home-buying roadmap
- Discover hidden gems
Utility information
- Heating:
- Electric Heating, Thermostat, Water Heater, Central Heating
- Utilities:
- Electricity Available, Cable Available, Water Available
Neighborhood
Home address
- City:
- St. Petersburg
- County:
- Pinellas
- Zip Code:
- 33713
Schools in Pinellas County School District
GreatSchools’ Summary Rating calculation is based on 4 of the school’s themed ratings, including test scores, student/academic progress, college readiness, and equity. This information should only be used as a reference. Jome is not affiliated with GreatSchools and does not endorse or guarantee this information. Please reach out to schools directly to verify all information and enrollment eligibility. Data provided by GreatSchools.org © 2025
Places of interest
Getting around
12 nearby routes: 12 bus, 0 rail, 0 otherAir quality
Noise level
A Soundscore™ rating is a number between 50 (very loud) and 100 (very quiet) that tells you how loud a location is due to environmental noise.
Natural hazards risk
Provided by FEMA

Considering this home?
Our expert will guide your tour, in-person or virtual
Need more information?
Text or call (888) 488-9243
Financials
Estimated monthly payment
Let us help you find your dream home
How many bedrooms are you looking for?
Similar homes nearby
Recently added communities in this area
Nearby communities in St. Petersburg
New homes in nearby cities
More New Homes in St. Petersburg, FL
COMPASS FLORIDA LLC, MLS TB8464915
Based on information submitted to the MLS GRID as of 10/21/2024 2:31 PM CDT. All data is obtained from various sources and may not have been verified by broker or MLS GRID. Supplied Open House Information is subject to change without notice. All information should be independently reviewed and verified for accuracy. Properties may or may not be listed by the office/agent presenting the information. Some IDX listings have been excluded from this website. Properties displayed may be listed or sold by various participants in the MLS. IDX information is provided exclusively for personal, non-commercial use, and may not be used for any purpose other than to identify prospective properties consumers may be interested in purchasing. Information is deemed reliable but not guaranteed. Use of the MLS GRID Data may be subject to an end user license agreement prescribed by the Member Participant’s applicable MLS if any and as amended from time to time. The Digital Millennium Copyright Act of 1998, 17 U.S.C. § 512 (the “DMCA”) provides recourse for copyright owners who believe that material appearing on the Internet infringes their rights under U.S. copyright law. If you believe in good faith that any content or material made available in connection with our website or services infringes your copyright, you (or your agent) may send us a notice requesting that the content or material be removed, or access to it blocked. Notices must be sent in writing by email to DMCAnotice@MLSGrid.com. The DMCA requires that your notice of alleged copyright infringement include the following information: (1) description of the copyrighted work that is the subject of claimed infringement; (2) description of the alleged infringing content and information sufficient to permit us to locate the content; (3) contact information for you, including your address, telephone number and email address; (4) a statement by you that you have a good faith belief that the content in the manner complained of is not authorized by the copyright owner, or its agent, or by the operation of any law; (5) a statement by you, signed under penalty of perjury, that the information in the notification is accurate and that you have the authority to enforce the copyrights that are claimed to be infringed; and (6) a physical or electronic signature of the copyright owner or a person authorized to act on the copyright owner’s behalf. Failure to include all of the above information may result in the delay of the processing of your complaint. Listing Information presented by local MLS brokerage: NewHomesMate LLC, DBA Jome (888) 488-9243
Read moreLast checked Mar 7, 3:10 am
- Jome
- New homes search
- Florida
- Tampa Bay Area
- Pinellas County
- St. Petersburg
- 2532 1St Ave N, St. Petersburg, FL 33713



























