








Book your tour. Save an average of $18,473. We'll handle the rest.
We collect exclusive builder offers, book your tours, and support you from start to housewarming.
- Confirmed tours
- Get matched & compare top deals
- Expert help, no pressure
- No added fees
Estimated value based on Jome data, T&C apply











- 4 bd
- 3.5 ba
- 2,789 sqft
485 11Th Ave N, St. Petersburg, FL 33701
Why tour with Jome?
- No pressure toursTour at your own pace with no sales pressure
- Expert guidanceGet insights from our home buying experts
- Exclusive accessSee homes and deals not available elsewhere
Jome is featured in
- Single-Family
- Ready by December 2026
- $564.72/sqft
- South facing
Home description
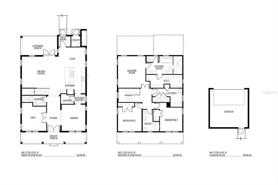
Luxury new construction by Mobley Homes Custom LLC, one of Tampa Bay’s premier builders, located near Crescent Lake and Historic Old Northeast with NO flood insurance required. Built with hurricane-rated half concrete block construction on the first floor, this home offers durability, energy efficiency, and long-term value.This 4-bedroom, 3.5-bath home features an open-concept layout with high ceilings, Level 4 smooth drywall, and abundant natural light. The gourmet kitchen includes designer cabinetry, premium countertops, a large island, and high-end stainless steel appliances. The primary suite offers a spa-like bath with 12x24 Asian Statuary Marble from TileBar. Situated on a quiet residential street just minutes from Crescent Lake Park, Downtown St. Petersburg, and Central Avenue dining, shopping, and entertainment. Easy access to I-275, St. Pete Beach, and Tampa International Airport. The backyard includes alley access, a 2-car garage, and room for a pool or outdoor living space.
Mobley Homes Custom LLC builds and owns all of their homes—no third-party investors—ensuring a smooth process and direct builder support after closing.Photos are of a similar home with the same floor plan. Finishes and features may vary.
COMPASS FLORIDA LLC, MLS TB8496850
May also be listed on the Mobley Homes website
Information last verified by Jome: Today at 9:50 AM (April 17, 2026)
Book your tour. Save an average of $18,473. We'll handle the rest.
We collect exclusive builder offers, book your tours, and support you from start to housewarming.
- Confirmed tours
- Get matched & compare top deals
- Expert help, no pressure
- No added fees
Estimated value based on Jome data, T&C apply
Home details
- Property status:
- Under construction
- Neighborhood:
- Historic Uptown
- Lot size (acres):
- 0.15
- Size:
- 2,789 sqft
- Stories:
- 2
- Beds:
- 4
- Baths:
- 3
- Half baths:
- 1
- Garage spaces:
- 2
- Facing direction:
- South
Construction details
- Builder Name:
- Mobley Homes
- Completion Date:
- December, 2026
- Year Built:
- 2026
- Roof:
- Shingle Roofing
Home features & finishes
- Appliances:
- Ice Maker
- Construction Materials:
- StuccoWood FrameBlock
- Cooling:
- Ceiling Fan(s)Central Air
- Flooring:
- Carpet FlooringHardwood Flooring
- Foundation Details:
- Concrete PerimeterBlock
- Garage/Parking:
- GarageOff-Street Garage/Parking
- Interior Features:
- Ceiling-High
- Kitchen:
- DishwasherMicrowave OvenRefrigeratorFreezerCooktop
- Laundry facilities:
- DryerUtility/Laundry Room
- Pets:
- Cat(s) Only AllowedDog(s) Only Allowed
- Property amenities:
- SidewalkPorch
- Rooms:
- Family Room

Get a consultation with our New Homes Expert
- See how your home builds wealth
- Plan your home-buying roadmap
- Discover hidden gems
Utility information
- Heating:
- Heat Pump, Water Heater, Central Heating, Tankless water heater
- Sewer:
- Public Sewer
- Utilities:
- Electricity Available, Cable Available, Water Available
About the builder - Mobley Homes
Neighborhood
Home address
- Neighborhood:
- Historic Uptown
- City:
- St. Petersburg
Schools in Pinellas County School District
- Grades 08-12Charterpinellas mycroschool of integrated academics and technologie1.2 mi840 third ave s1/10
GreatSchools’ Summary Rating calculation is based on 4 of the school’s themed ratings, including test scores, student/academic progress, college readiness, and equity. This information should only be used as a reference. Jome is not affiliated with GreatSchools and does not endorse or guarantee this information. Please reach out to schools directly to verify all information and enrollment eligibility. Data provided by GreatSchools.org © 2025
Places of interest
Getting around
12 nearby routes: 12 bus, 0 rail, 0 otherAir quality
Noise level
A Soundscore™ rating is a number between 50 (very loud) and 100 (very quiet) that tells you how loud a location is due to environmental noise.
Natural hazards risk
Provided by FEMA

Considering this home?
Our expert will guide your tour, in-person or virtual
Need more information?
Text or call (888) 545-5198
Financials
Estimated monthly payment
Let us help you find your dream home
How many bedrooms are you looking for?
Similar homes nearby
Recently added communities in this area
Nearby communities in St. Petersburg
New homes in nearby cities
More New Homes in St. Petersburg, FL
COMPASS FLORIDA LLC, MLS TB8496850
Based on information submitted to the MLS GRID as of 10/21/2024 2:31 PM CDT. All data is obtained from various sources and may not have been verified by broker or MLS GRID. Supplied Open House Information is subject to change without notice. All information should be independently reviewed and verified for accuracy. Properties may or may not be listed by the office/agent presenting the information. Some IDX listings have been excluded from this website. Properties displayed may be listed or sold by various participants in the MLS. IDX information is provided exclusively for personal, non-commercial use, and may not be used for any purpose other than to identify prospective properties consumers may be interested in purchasing. Information is deemed reliable but not guaranteed. Use of the MLS GRID Data may be subject to an end user license agreement prescribed by the Member Participant’s applicable MLS if any and as amended from time to time. The Digital Millennium Copyright Act of 1998, 17 U.S.C. § 512 (the “DMCA”) provides recourse for copyright owners who believe that material appearing on the Internet infringes their rights under U.S. copyright law. If you believe in good faith that any content or material made available in connection with our website or services infringes your copyright, you (or your agent) may send us a notice requesting that the content or material be removed, or access to it blocked. Notices must be sent in writing by email to DMCAnotice@MLSGrid.com. The DMCA requires that your notice of alleged copyright infringement include the following information: (1) description of the copyrighted work that is the subject of claimed infringement; (2) description of the alleged infringing content and information sufficient to permit us to locate the content; (3) contact information for you, including your address, telephone number and email address; (4) a statement by you that you have a good faith belief that the content in the manner complained of is not authorized by the copyright owner, or its agent, or by the operation of any law; (5) a statement by you, signed under penalty of perjury, that the information in the notification is accurate and that you have the authority to enforce the copyrights that are claimed to be infringed; and (6) a physical or electronic signature of the copyright owner or a person authorized to act on the copyright owner’s behalf. Failure to include all of the above information may result in the delay of the processing of your complaint. Listing Information presented by local MLS brokerage: NewHomesMate LLC, DBA Jome (888) 545-5198
Read moreLast checked Apr 17, 9:10 am
- Jome
- New homes search
- Florida
- Tampa Bay Area
- Pinellas County
- St. Petersburg
- 485 11Th Ave N, St. Petersburg, FL 33701




























