



Book your tour. Save an average of $18,473. We'll handle the rest.
We collect exclusive builder offers, book your tours, and support you from start to housewarming.
- Confirmed tours
- Get matched & compare top deals
- Expert help, no pressure
- No added fees
Estimated value based on Jome data, T&C apply
- 3 bd
- 3 ba
- 2,102 sqft
5276 Spaderdock St, Apopka, FL 32712
Why tour with Jome?
- No pressure toursTour at your own pace with no sales pressure
- Expert guidanceGet insights from our home buying experts
- Exclusive accessSee homes and deals not available elsewhere
Jome is featured in
- Single-Family
- Quick move-in
- $223/sqft
- $7.5/monthly HOA
Home description
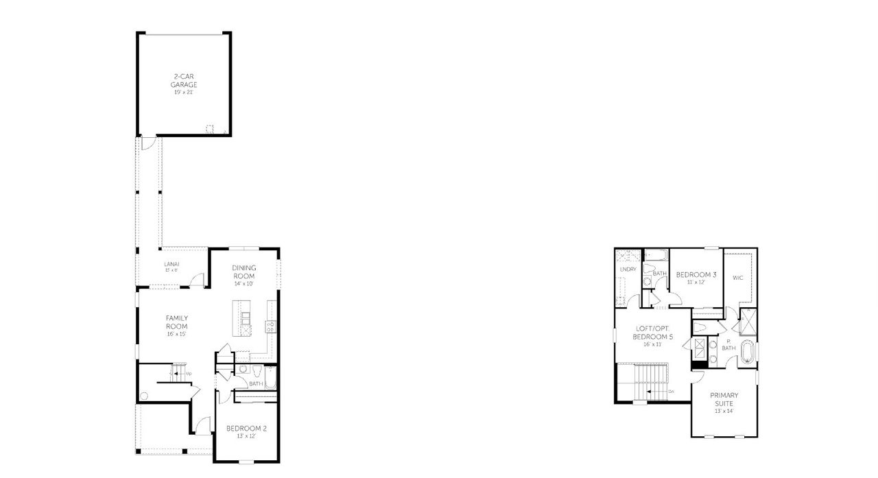
The Berkley floorplan by Dream Finders Homes features 2,102 square feet of well-designed living space across two stories. This home includes 3 bedrooms, 3 full bathrooms, and a 2-car garage. The open-concept main floor boasts a spacious family room, dining area, and a modern kitchen with ample counter space—ideal for both daily living and entertaining. The primary suite is located on the first floor for added privacy, with a luxurious bath and walk-in closet. Upstairs, two additional bedrooms and a full bath provide flexible living options for guests or family members.
May also be listed on the Dream Finders Homes website
Information last verified by Jome: Today at 5:04 AM (February 26, 2026)
Book your tour. Save an average of $18,473. We'll handle the rest.
We collect exclusive builder offers, book your tours, and support you from start to housewarming.
- Confirmed tours
- Get matched & compare top deals
- Expert help, no pressure
- No added fees
Estimated value based on Jome data, T&C apply
Home details
- Property status:
- Move-in ready
- Collection:
- Crossroads at Kelly Park 40'
- Size:
- 2,102 sqft
- Stories:
- 2
- Beds:
- 3
- Baths:
- 3
- Garage spaces:
- 2

Floor plan details
Berkley - 40' Homesites
- 3 bd
- 3 ba
- 2,102 sqft
View Berkley - 40' Homesites details
Construction details
- Builder Name:
- Dream Finders Homes
Home features & finishes
- Garage/Parking:
- Garage
- Interior Features:
- Walk-In ClosetFoyerPantry
- Kitchen:
- Kitchen Island
- Laundry facilities:
- Utility/Laundry Room
- Property amenities:
- PatioPorch
- Rooms:
- KitchenDining RoomFamily RoomOpen Concept FloorplanPrimary Bedroom Upstairs

Get a consultation with our New Homes Expert
- See how your home builds wealth
- Plan your home-buying roadmap
- Discover hidden gems

Community details
Crossroads at Kelly Park
by Dream Finders Homes, Apopka, FL
- 16 homes
- 10 plans
- 1,767 - 2,890 sqft
View Crossroads at Kelly Park details
More homes in Crossroads at Kelly Park
- Home at address 5213 Waypointe Blvd, Apopka, FL 32712

Amelia - 40' Homesites
Crossroads at Kelly Park 40'
$415,990
- 3 bd
- 2 ba
- 1,767 sqft
5213 Waypointe Blvd, Apopka, FL 32712
- Home at address 5160 Firebush Dr, Apopka, FL 32712

Amelia
Crossroads at Kelly Park 40'
$424,990
- 3 bd
- 2 ba
- 1,767 sqft
5160 Firebush Dr, Apopka, FL 32712
- Home at address 5237 Waypointe Blvd, Apopka, FL 32712

Amelia
Crossroads at Kelly Park 40'
$430,580
- 3 bd
- 2 ba
- 1,772 sqft
5237 Waypointe Blvd, Apopka, FL 32712
- Home at address 5096 Firebush Dr, Apopka, FL 32712

Berkley
Crossroads at Kelly Park 40'
$437,989
- 3 bd
- 3 ba
- 2,071 sqft
5096 Firebush Dr, Apopka, FL 32712
- Home at address 5136 Firebush Dr, Apopka, FL 32712

Berkley - 40' Homesites
Crossroads at Kelly Park 40'
$439,990
- 4 bd
- 3 ba
- 2,071 sqft
5136 Firebush Dr, Apopka, FL 32712
- Home at address 5292 Spaderdock St, Apopka, FL 32712

Berkley
Crossroads at Kelly Park 40'
$473,074
- 3 bd
- 3 ba
- 2,102 sqft
5292 Spaderdock St, Apopka, FL 32712
Floor plans in Crossroads at Kelly Park
- View details for Amelia - 40' Homesites

Amelia - 40' Homesites
Crossroads at Kelly Park 40'
$375,990+- 3 bd
- 2 ba
- 1,772 sqft
- View details for Berkley - 40' Homesites

Berkley - 40' Homesites
Crossroads at Kelly Park 40'
$410,990+- 3 bd
- 3 ba
- 2,102 sqft
About the builder - Dream Finders Homes

- 338communities on Jome
- 1,594homes on Jome
Neighborhood
Home address
Schools in Orange County School District
- Grades PK-03Privatetangerine schoolhouse3.0 mi7228 earlwood avena
GreatSchools’ Summary Rating calculation is based on 4 of the school’s themed ratings, including test scores, student/academic progress, college readiness, and equity. This information should only be used as a reference. Jome is not affiliated with GreatSchools and does not endorse or guarantee this information. Please reach out to schools directly to verify all information and enrollment eligibility. Data provided by GreatSchools.org © 2025
Places of interest
Getting around

Considering this home?
Our expert will guide your tour, in-person or virtual
Need more information?
Text or call (888) 488-9243
Financials
Estimated monthly payment
Let us help you find your dream home
How many bedrooms are you looking for?
Similar homes nearby
Recently added communities in this area
Nearby communities in Apopka
New homes in nearby cities
More New Homes in Apopka, FL
- Jome
- New homes search
- Florida
- Greater Orlando Area
- Orange County
- Apopka
- Crossroads at Kelly Park
- Crossroads at Kelly Park 40'
- 5276 Spaderdock St, Apopka, FL 32712































