














- 4 bd
- 3 ba
- 2,193 sqft
7426 Everett Forest Dr, Jacksonville, FL 32219
- Single-Family
- $161.87/sqft
- $47/monthly HOA
- 62 days on Jome
New Homes for Sale Near 7426 Everett Forest Dr, Jacksonville, FL 32219
About this Home
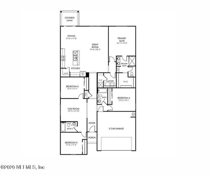
Brand new, energy-efficient home available by Jan 2026! The Orchid floorplan offers 4 bedrooms, 3 bathrooms and a 2-car garage. Configure the flex room at the front of the home to fit your needs. Explore new homes to Duval County! Cypress Meadows - Signature Series offers single-family homes in Northwest Jacksonville. Each home is built with the innovative, energy-efficient features. Its location gives easy access to commuter routes as well as excellent schools and entertainment. Each of our homes is built with innovative, energy-efficient features designed to help you enjoy more savings, better health, real comfort and peace of mind.
MERITAGE HOMES OF FLORIDA REALTY, MLS 2124898
May also be listed on the Meritage Homes website
Information last verified by Jome: Today at 1:26 AM (April 13, 2026)
Home details
- Property status:
- Sold
- Size:
- 2,193 sqft
- Stories:
- 1
- Beds:
- 4
- Baths:
- 3
- Garage spaces:
- 2
Construction details
- Builder Name:
- Meritage Homes
- Year Built:
- 2026
- Roof:
- Shingle Roofing
Home features & finishes
- Construction Materials:
- CementFrame
- Cooling:
- Central Air
- Flooring:
- Carpet FlooringTile Flooring
- Garage/Parking:
- Door OpenerGarageAttached Garage
- Home amenities:
- ENERGY STAR CertifiedGreen Construction
- Interior Features:
- Walk-In ClosetFoyerPantry
- Kitchen:
- DishwasherMicrowave OvenRefrigeratorDisposalKitchen IslandKitchen Range
- Laundry facilities:
- WasherUtility/Laundry Room
- Lighting:
- Lighting
- Property amenities:
- LanaiSmart Home SystemPorch
- Rooms:
- AtticFlex RoomPrimary Bedroom On MainKitchenDining RoomFamily RoomOpen Concept FloorplanPrimary Bedroom Downstairs
Room details
Master Bedroom
Bedroom 2
Bedroom 3
Utility information
- Heating:
- Heat Pump, Thermostat, Water Heater, Central Heating
- Sewer:
- Public Sewer
- Utilities:
- Electricity Available, HVAC, Cable Available, Sewer Available, Water Available
- Water source:
- Public

Community details
Cypress Meadows - Signature Series
by Meritage Homes, Jacksonville, FL
- 6 homes
- 1,695 - 2,193 sqft
View Cypress Meadows - Signature Series details
More homes in Cypress Meadows - Signature Series
- Home at address 7430 Everett Forest Dr, Jacksonville, FL 32219

$328,990
Under construction- 4 bd
- 3 ba
- 1,842 sqft
7430 Everett Forest Dr, Jacksonville, FL 32219
- Home at address 7422 Everett Forest Dr, Jacksonville, FL 32219

$333,990
Under construction- 4 bd
- 3 ba
- 1,842 sqft
7422 Everett Forest Dr, Jacksonville, FL 32219
- Home at address 7406 Everett Forest Dr, Jacksonville, FL 32219

$333,990
Move-in ready- 4 bd
- 3 ba
- 2,193 sqft
7406 Everett Forest Dr, Jacksonville, FL 32219
- Home at address 7381 Carson View Ln, Jacksonville, FL 32219

$339,990
Move-in ready- 4 bd
- 3 ba
- 1,842 sqft
7381 Carson View Ln, Jacksonville, FL 32219
- Home at address 7398 Everett Forest Dr, Jacksonville, FL 32219

$350,990
Move-in ready- 4 bd
- 3 ba
- 2,193 sqft
7398 Everett Forest Dr, Jacksonville, FL 32219
About the builder - Meritage Homes

- 319communities on Jome
- 2,506homes on Jome
Neighborhood
Home address
- City:
- Jacksonville
- County:
- Duval
- Zip Code:
- 32219
Schools in Duval County School District
GreatSchools’ Summary Rating calculation is based on 4 of the school’s themed ratings, including test scores, student/academic progress, college readiness, and equity. This information should only be used as a reference. Jome is not affiliated with GreatSchools and does not endorse or guarantee this information. Please reach out to schools directly to verify all information and enrollment eligibility. Data provided by GreatSchools.org © 2025
Places of interest
Getting around
Air quality
Financials
Nearby communities in Jacksonville
Homes in Jacksonville Neighborhoods
- Forest Trails
- Cisco Gardens
- Biltmore
- Dinsmore
- Hillcrest
- Pumpkin Hill
- Pecan Park
- Chimney Lakes
- Jacksonville North Estate
- Cedar Hills
- Southside
- Sans Pareil
- Normandy Estate
- Lincoln Villas
- Highlands
- Marietta
- Jacksonville Heights South
- Jacksonville Farms-Terrace
- Arlingwood
- Oceanway
- Southpoint
- Gilmore
- Golden Glades - The Woods
- Riverside
- Mcgirts Creek
- Sunbeam
- Riverview
- Jacksonville Heights
- Beach Haven
- Mid-Westside
- Isle Of Palms
- Moncrief Park
- Alderman Park
- Kilarney Shores
- Woodstock
- Springfield
- Brentwood
- Larsen
- Mandarin Station - Losco
- Robinson's Addition
- Del Rio
- Garden City
- Woodland Acres
- Herlong
- Tallulah - North Shore
- Goodby's Creek
- College Park
- Downtown Jacksonville
- Fairfield
- Southwood
- Royal Terrace
- Picketville
- Rolling Hills
- Settlers Landing
- Wesconnett
- Duclay Forest
- Venetia
- Jacksonville Heights West
- Oak Hill
- Duval
- Deercreek
- Black Hammock Island
- University Club
- Grand Park
- San Marco
- Murray Hill
- East Jacksonville
- Otis
- Mixon Town
- San Jose Forest
- Miramar
- The Cape
- Arlington
- 45Th And Moncrief
- Allendale
- Edgewood Manor
- Magnolia Gardens
- Jacksonville Naval Air Station
- Brown Island
- Atlantic Boulevard Estates
- Lakeshore
- Beauclerc
- 29Th And Chase
- Panama Park
- Edgewood
Homes in Jacksonville by Meritage Homes
Recently added communities in this area
Other Builders in Jacksonville, FL
Nearby sold homes
New homes in nearby cities
More New Homes in Jacksonville, FL
MERITAGE HOMES OF FLORIDA REALTY, MLS 2124898
IDX information is provided exclusively for personal, non-commercial use, and may not be used for any purpose other than to identify prospective properties consumers may be interested in purchasing. Data is deemed reliable but is not guaranteed accurate by NEFMLS. © 2025 Northeast Florida Multiple Listing Service, Inc. All rights reserved.
Read moreLast checked Apr 13, 11:00 am
- Jome
- New homes search
- Florida
- Jacksonville Metropolitan Area
- Duval County
- Jacksonville
- Cypress Meadows - Signature Series
- 7426 Everett Forest Dr, Jacksonville, FL 32219
























































