



Book your tour. Save an average of $18,473. We'll handle the rest.
We collect exclusive builder offers, book your tours, and support you from start to housewarming.
- Confirmed tours
- Get matched & compare top deals
- Expert help, no pressure
- No added fees
Estimated value based on Jome data, T&C apply
- 5 bd
- 3 ba
- 3,150 sqft
10037 Ballast Dr, Orlando, FL 32827
Why tour with Jome?
- No pressure toursTour at your own pace with no sales pressure
- Expert guidanceGet insights from our home buying experts
- Exclusive accessSee homes and deals not available elsewhere
Jome is featured in
- Single-Family
- Quick move-in
- $288.89/sqft
- $171/monthly HOA
Home description
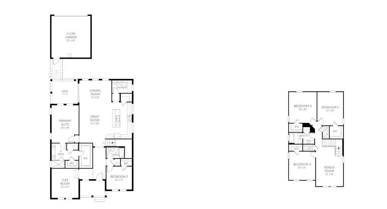
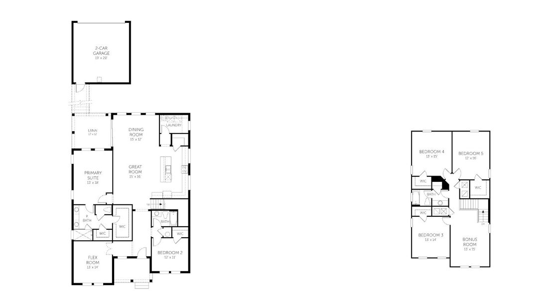
The Stanfield floorplan is a spacious two-story home offering five bedrooms and three full bathrooms, designed to meet the needs of a growing family or those who love to entertain. The first floor features a welcoming great room, dining area, and a well-appointed kitchen with ample counter space. The primary suite is conveniently located on the main level, providing a private retreat with a luxurious bathroom and dual walk-in closets. A flex room on this floor adds versatility, perfect for a home office or additional living space. Upstairs, you’ll find a large loft area, ideal for relaxing or gathering, along with four additional bedrooms, each with generous closet space. This layout also includes a two-car garage, offering both storage and convenience. The Stanfield is designed with functionality and comfort in mind, making it an ideal choice for modern living.
May also be listed on the Dream Finders Homes website
Information last verified by Jome: Today at 5:07 AM (April 1, 2026)
Book your tour. Save an average of $18,473. We'll handle the rest.
We collect exclusive builder offers, book your tours, and support you from start to housewarming.
- Confirmed tours
- Get matched & compare top deals
- Expert help, no pressure
- No added fees
Estimated value based on Jome data, T&C apply
Home details
- Property status:
- Move-in ready
- Collection:
- Laureate Park 50'
- Size:
- 3,150 sqft
- Stories:
- 2
- Beds:
- 5
- Baths:
- 3
- Garage spaces:
- 2

Floor plan details
Stanfield - 50' Homesites
- 5 bd
- 3 ba
- 3,150 sqft
View Stanfield - 50' Homesites details
Construction details
- Builder Name:
- Dream Finders Homes
Home features & finishes
- Garage/Parking:
- Garage
- Interior Features:
- Walk-In ClosetPantryLoft
- Kitchen:
- Kitchen Island
- Laundry facilities:
- Utility/Laundry Room
- Property amenities:
- LanaiPatioPorch
- Rooms:
- Bonus RoomFlex RoomPrimary Bedroom On MainKitchenDining RoomFamily RoomOpen Concept FloorplanPrimary Bedroom Downstairs

Get a consultation with our New Homes Expert
- See how your home builds wealth
- Plan your home-buying roadmap
- Discover hidden gems

Community details
Laureate Park at Lake Nona
by Dream Finders Homes, Orlando, FL
- 10 homes
- 8 plans
- 1,976 - 3,811 sqft
View Laureate Park details
More homes in Laureate Park
- Home at address 10406 Pearson Ave, Orlando, FL 32827

Stanfield - 50' Homesites
Laureate Park 50'
$849,990
- 5 bd
- 3 ba
- 3,150 sqft
10406 Pearson Ave, Orlando, FL 32827
- Home at address 13373 Mcmillan Dr, Orlando, FL 32827

Home
$1,175,000
- 5 bd
- 3.5 ba
- 3,098 sqft
13373 Mcmillan Dr, Orlando, FL 32827
- Home at address 10162 Peebles St, Orlando, FL 32827

Home
$1,225,000
- 5 bd
- 4.5 ba
- 3,811 sqft
10162 Peebles St, Orlando, FL 32827
Floor plans in Laureate Park
- View details for Stanfield - 50' Homesites

Stanfield - 50' Homesites
Laureate Park 50'
$817,990+- 5 bd
- 3 ba
- 3,150 sqft
About the builder - Dream Finders Homes

- 332communities on Jome
- 1,669homes on Jome
Neighborhood
Home address
Schools in Orange County School District
GreatSchools’ Summary Rating calculation is based on 4 of the school’s themed ratings, including test scores, student/academic progress, college readiness, and equity. This information should only be used as a reference. Jome is not affiliated with GreatSchools and does not endorse or guarantee this information. Please reach out to schools directly to verify all information and enrollment eligibility. Data provided by GreatSchools.org © 2025
Places of interest
Getting around
1 nearby routes: 1 bus, 0 rail, 0 otherAir quality
Noise level
A Soundscore™ rating is a number between 50 (very loud) and 100 (very quiet) that tells you how loud a location is due to environmental noise.

Considering this home?
Our expert will guide your tour, in-person or virtual
Need more information?
Text or call (888) 545-5198
Financials
Estimated monthly payment
Let us help you find your dream home
How many bedrooms are you looking for?
Similar homes nearby
Recently added communities in this area
Nearby communities in Orlando
New homes in nearby cities
More New Homes in Orlando, FL
- Jome
- New homes search
- Florida
- Greater Orlando Area
- Orange County
- Orlando
- Laureate Park
- Laureate Park 50'
- 10037 Ballast Dr, Orlando, FL 32827
























