














Book your tour. Save an average of $18,473. We'll handle the rest.
- Confirmed tours
- Get matched & compare top deals
- Expert help, no pressure
- No added fees
Estimated value based on Jome data, T&C apply
















- 4 bd
- 2.5 ba
- 2,271 sqft
712 Hazelwood Ct, Haines City, FL 33844
Why tour with Jome?
- No pressure toursTour at your own pace with no sales pressure
- Expert guidanceGet insights from our home buying experts
- Exclusive accessSee homes and deals not available elsewhere
Jome is featured in
- Single-Family
- $162.27/sqft
- $95/monthly HOA
- North facing
Home description
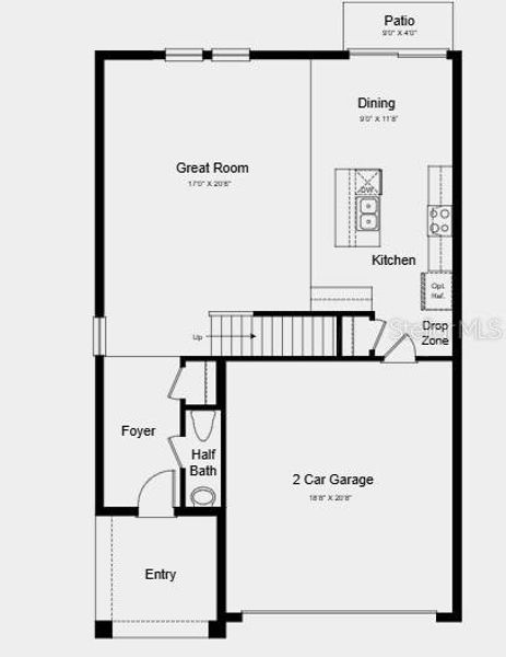
What’s Special: No Rear Neighbors | Deep Backyard | Oversized Lot | Greenbelt View. New Construction – December Completion! Built by Taylor Morrison, America’s Most Trusted Homebuilder. Welcome to The Elm at 712 Hazelwood Court in Marion Creek. The gorgeous two-story Elm floor plan in Marion Creek offers 2,271 square feet of open-concept living with 4 bedrooms, 2.5 bathrooms, a loft, a 2-car garage, and many thoughtful features. On the main level, you'll find a welcoming foyer, a spacious great room, a dining area, a well-appointed kitchen, and a convenient half bathroom. Upstairs includes a versatile loft, three secondary bedrooms, and a full bathroom. The private primary suite is also located upstairs and features a spacious bathroom with dual vanity sinks, a walk-in shower, and a generous closet. A covered patio completes the home, offering seamless indoor/outdoor living—perfect for enjoying the warm Florida sunshine. Photos are for Representative Purposes Only. MLS#O6354557
TAYLOR MORRISON REALTY OF FLORIDA INC, MLS O6354557
May also be listed on the Taylor Morrison website
Information last verified by Jome: Yesterday at 10:08 AM (December 21, 2025)
Home highlights
Nature preserve in Kissimmee with boardwalks, paddling trails, and historic sites near family-friendly neighborhoods.
Book your tour. Save an average of $18,473. We'll handle the rest.
We collect exclusive builder offers, book your tours, and support you from start to housewarming.
- Confirmed tours
- Get matched & compare top deals
- Expert help, no pressure
- No added fees
Estimated value based on Jome data, T&C apply
Home details
- Property status:
- Pending/Under contract
- Lot size (acres):
- 0.11
- Size:
- 2,271 sqft
- Stories:
- 2
- Beds:
- 4
- Baths:
- 2.5
- Garage spaces:
- 2
- Facing direction:
- North
Construction details
- Builder Name:
- Taylor Morrison
- Completion Date:
- December, 2025
- Year Built:
- 2025
- Roof:
- Shingle Roofing
Home features & finishes
- Construction Materials:
- BlockVinyl SidingStone
- Cooling:
- Central Air
- Flooring:
- Carpet FlooringTile Flooring
- Foundation Details:
- Slab
- Garage/Parking:
- GarageAttached Garage
- Home amenities:
- Internet
- Interior Features:
- Window TreatmentsWalk-In ClosetFoyerPantrySliding DoorsLoft
- Kitchen:
- DishwasherMicrowave OvenRefrigeratorDisposalCook TopKitchen Range
- Laundry facilities:
- DryerWasherUtility/Laundry Room
- Pets:
- Pets Allowed
- Property amenities:
- Porch
- Rooms:
- AtticKitchenGuest RoomDining RoomFamily RoomOpen Concept FloorplanPrimary Bedroom Upstairs

Get a consultation with our New Homes Expert
- See how your home builds wealth
- Plan your home-buying roadmap
- Discover hidden gems
Utility information
- Heating:
- Electric Heating, Water Heater
- Utilities:
- Electricity Available, Cable Available, Water Available

Community details
Marion Creek
by Taylor Morrison, Haines City, FL
- 5 homes
- 5 plans
- 1,455 - 2,517 sqft
View Marion Creek details
Community amenities
- Playground
- Community Pool
- Sidewalks Available
More homes in Marion Creek
Floor plans in Marion Creek
About the builder - Taylor Morrison
Neighborhood
Home address
- City:
- Haines City
- County:
- Polk
- Zip Code:
- 33844
Schools in Polk County School District
- Grades KG-12Privateaba haines city inc4.0 mi116 n 22nd stna
GreatSchools’ Summary Rating calculation is based on 4 of the school’s themed ratings, including test scores, student/academic progress, college readiness, and equity. This information should only be used as a reference. Jome is not affiliated with GreatSchools and does not endorse or guarantee this information. Please reach out to schools directly to verify all information and enrollment eligibility. Data provided by GreatSchools.org © 2025
Places of interest
Getting around
Air quality
Noise level
A Soundscore™ rating is a number between 50 (very loud) and 100 (very quiet) that tells you how loud a location is due to environmental noise.
Natural hazards risk
Climate hazards can impact homes and communities, with risks varying by location. These scores reflect the potential impact of natural disasters and climate-related risks on Polk County
Provided by FEMA

Considering this home?
Our expert will guide your tour, in-person or virtual
Need more information?
Text or call (888) 486-2818
Financials
Estimated monthly payment
Let us help you find your dream home
How many bedrooms are you looking for?
Similar homes nearby
Recently added communities in this area
Nearby communities in Haines City
New homes in nearby cities
More New Homes in Haines City, FL
TAYLOR MORRISON REALTY OF FLORIDA INC, MLS O6354557
Based on information submitted to the MLS GRID as of 10/21/2024 2:31 PM CDT. All data is obtained from various sources and may not have been verified by broker or MLS GRID. Supplied Open House Information is subject to change without notice. All information should be independently reviewed and verified for accuracy. Properties may or may not be listed by the office/agent presenting the information. Some IDX listings have been excluded from this website. Properties displayed may be listed or sold by various participants in the MLS. IDX information is provided exclusively for personal, non-commercial use, and may not be used for any purpose other than to identify prospective properties consumers may be interested in purchasing. Information is deemed reliable but not guaranteed. Use of the MLS GRID Data may be subject to an end user license agreement prescribed by the Member Participant’s applicable MLS if any and as amended from time to time. The Digital Millennium Copyright Act of 1998, 17 U.S.C. § 512 (the “DMCA”) provides recourse for copyright owners who believe that material appearing on the Internet infringes their rights under U.S. copyright law. If you believe in good faith that any content or material made available in connection with our website or services infringes your copyright, you (or your agent) may send us a notice requesting that the content or material be removed, or access to it blocked. Notices must be sent in writing by email to DMCAnotice@MLSGrid.com. The DMCA requires that your notice of alleged copyright infringement include the following information: (1) description of the copyrighted work that is the subject of claimed infringement; (2) description of the alleged infringing content and information sufficient to permit us to locate the content; (3) contact information for you, including your address, telephone number and email address; (4) a statement by you that you have a good faith belief that the content in the manner complained of is not authorized by the copyright owner, or its agent, or by the operation of any law; (5) a statement by you, signed under penalty of perjury, that the information in the notification is accurate and that you have the authority to enforce the copyrights that are claimed to be infringed; and (6) a physical or electronic signature of the copyright owner or a person authorized to act on the copyright owner’s behalf. Failure to include all of the above information may result in the delay of the processing of your complaint. Listing Information presented by local MLS brokerage: NewHomesMate LLC, DBA Jome (888) 486-2818
Read moreLast checked Dec 21, 9:10 pm
- Jome
- New homes search
- Florida
- Greater Orlando Area
- Polk County
- Haines City
- Marion Creek
- 712 Hazelwood Ct, Haines City, FL 33844

































