














Book your tour. Save an average of $18,473. We'll handle the rest.
We collect exclusive builder offers, book your tours, and support you from start to housewarming.
- Confirmed tours
- Get matched & compare top deals
- Expert help, no pressure
- No added fees
Estimated value based on Jome data, T&C apply


























- 4 bd
- 2.5 ba
- 2,271 sqft
337 Wayland Dr, Haines City, FL 33844
Why tour with Jome?
- No pressure toursTour at your own pace with no sales pressure
- Expert guidanceGet insights from our home buying experts
- Exclusive accessSee homes and deals not available elsewhere
Jome is featured in
- Single-Family
- Quick move-in
- $155.88/sqft
- $87/monthly HOA
Home description
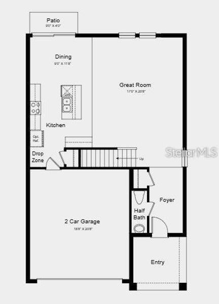
Seller offering $5,000 that may be used to permanently reduce the buyer’s interest rate helping lower the monthly payment or applied toward closing costs (subject to lender approval). Welcome to your new luxury home nestled in Marion Creek. This is a modern, move in ready home built by Taylor Morrison that blends style, comfort, and convenience. Nestled on an oversized corner lot in a peaceful community, this home offers the perfect balance of space and sophistication. Step inside to an open concept layout featuring stone countertops, stainless steel appliances, and recessed lighting that brightens every corner. The spacious kitchen flows effortlessly into the living and dining areas, creating the ideal setup for entertaining or relaxing with family. Upstairs, a loft area provides flexible space for a playroom, home office, or media area. Retreat to the luxurious primary suite, complete with double vanities and a walk-in shower. Guests will also enjoy their own double vanity bathroom, ensuring comfort and convenience for everyone. Additional highlights include a vinyl privacy fence, water filtration system, and a dedicated laundry room. An abundance of warranties are transferable with this home as well. Located just a short drive from Disney World, Orlando attractions, shopping, and dining, this home offers the best of Central Florida living while maintaining the tranquility of a family friendly neighborhood.
MAYERS REAL ESTATE LLC, MLS O6362504
May also be listed on the Taylor Morrison website
Information last verified by Jome: Yesterday at 9:59 AM (March 3, 2026)
Home highlights
Nature preserve in Kissimmee with boardwalks, paddling trails, and historic sites near family-friendly neighborhoods.
Book your tour. Save an average of $18,473. We'll handle the rest.
We collect exclusive builder offers, book your tours, and support you from start to housewarming.
- Confirmed tours
- Get matched & compare top deals
- Expert help, no pressure
- No added fees
Estimated value based on Jome data, T&C apply
Home details
- Property status:
- Move-in ready
- Lot size (acres):
- 0.31
- Size:
- 2,271 sqft
- Stories:
- 2
- Beds:
- 4
- Baths:
- 2
- Half baths:
- 1
- Garage spaces:
- 2
- Fence:
- Vinyl Fence
- Facing direction:
- West
Construction details
- Builder Name:
- Taylor Morrison
- Year Built:
- 2024
- Roof:
- Roof Gutter, Shingle Roofing
Home features & finishes
- Construction Materials:
- StuccoBlockCementConcreteStone
- Cooling:
- Ceiling Fan(s)Central Air
- Flooring:
- Ceramic FlooringCarpet FlooringTile Flooring
- Foundation Details:
- Slab
- Garage/Parking:
- GarageAttached Garage
- Home amenities:
- Internet
- Interior Features:
- Ceiling-HighWalk-In ClosetFoyerPantryBlindsSliding DoorsLoft
- Kitchen:
- DishwasherMicrowave OvenRefrigeratorWater FilterDisposalFreezerKitchen Range
- Laundry facilities:
- DryerWasherLaundry Facilities In ClosetUtility/Laundry Room
- Lighting:
- Exterior Lighting
- Pets:
- Pets Allowed
- Property amenities:
- SidewalkCovered PatioCabinetsIrrigationPorch
- Rooms:
- AtticKitchenGuest RoomDining RoomFamily RoomLiving RoomOpen Concept FloorplanPrimary Bedroom Upstairs
- Security system:
- Smoke Detector

Get a consultation with our New Homes Expert
- See how your home builds wealth
- Plan your home-buying roadmap
- Discover hidden gems
Utility information
- Heating:
- Electric Heating, Thermostat, Water Heater, Central Heating
- Utilities:
- Electricity Available, Cable Available, Water Available

Community details
Marion Creek
by Taylor Morrison, Haines City, FL
- 5 homes
- 5 plans
- 1,455 - 2,516 sqft
View Marion Creek details
Community amenities
- Playground
- Community Pool
- Sidewalks Available
More homes in Marion Creek
- Home at address 326 Wayland Dr, Haines City, FL 33844

Sherwood
$330,000
- 5 bd
- 3.5 ba
- 2,516 sqft
326 Wayland Dr, Haines City, FL 33844
- Home at address 732 Hazelwood Ct, Haines City, FL 33844

Elm
$387,049
- 4 bd
- 2.5 ba
- 2,273 sqft
732 Hazelwood Ct, Haines City, FL 33844
Floor plans in Marion Creek
About the builder - Taylor Morrison

- 320communities on Jome
- 1,450homes on Jome
Neighborhood
Home address
- City:
- Haines City
- County:
- Polk
- Zip Code:
- 33844
Schools in Polk County School District
- Grades KG-12Privateaba haines city inc3.5 mi116 n 22nd stna
GreatSchools’ Summary Rating calculation is based on 4 of the school’s themed ratings, including test scores, student/academic progress, college readiness, and equity. This information should only be used as a reference. Jome is not affiliated with GreatSchools and does not endorse or guarantee this information. Please reach out to schools directly to verify all information and enrollment eligibility. Data provided by GreatSchools.org © 2025
Places of interest
Getting around
Air quality
Noise level
A Soundscore™ rating is a number between 50 (very loud) and 100 (very quiet) that tells you how loud a location is due to environmental noise.

Considering this home?
Our expert will guide your tour, in-person or virtual
Need more information?
Text or call (888) 488-9243
Financials
Estimated monthly payment
Let us help you find your dream home
How many bedrooms are you looking for?
Similar homes nearby
Recently added communities in this area
Nearby communities in Haines City
New homes in nearby cities
More New Homes in Haines City, FL
MAYERS REAL ESTATE LLC, MLS O6362504
Based on information submitted to the MLS GRID as of 10/21/2024 2:31 PM CDT. All data is obtained from various sources and may not have been verified by broker or MLS GRID. Supplied Open House Information is subject to change without notice. All information should be independently reviewed and verified for accuracy. Properties may or may not be listed by the office/agent presenting the information. Some IDX listings have been excluded from this website. Properties displayed may be listed or sold by various participants in the MLS. IDX information is provided exclusively for personal, non-commercial use, and may not be used for any purpose other than to identify prospective properties consumers may be interested in purchasing. Information is deemed reliable but not guaranteed. Use of the MLS GRID Data may be subject to an end user license agreement prescribed by the Member Participant’s applicable MLS if any and as amended from time to time. The Digital Millennium Copyright Act of 1998, 17 U.S.C. § 512 (the “DMCA”) provides recourse for copyright owners who believe that material appearing on the Internet infringes their rights under U.S. copyright law. If you believe in good faith that any content or material made available in connection with our website or services infringes your copyright, you (or your agent) may send us a notice requesting that the content or material be removed, or access to it blocked. Notices must be sent in writing by email to DMCAnotice@MLSGrid.com. The DMCA requires that your notice of alleged copyright infringement include the following information: (1) description of the copyrighted work that is the subject of claimed infringement; (2) description of the alleged infringing content and information sufficient to permit us to locate the content; (3) contact information for you, including your address, telephone number and email address; (4) a statement by you that you have a good faith belief that the content in the manner complained of is not authorized by the copyright owner, or its agent, or by the operation of any law; (5) a statement by you, signed under penalty of perjury, that the information in the notification is accurate and that you have the authority to enforce the copyrights that are claimed to be infringed; and (6) a physical or electronic signature of the copyright owner or a person authorized to act on the copyright owner’s behalf. Failure to include all of the above information may result in the delay of the processing of your complaint. Listing Information presented by local MLS brokerage: NewHomesMate LLC, DBA Jome (888) 488-9243
Read moreLast checked Mar 4, 3:10 am
- Jome
- New homes search
- Florida
- Greater Orlando Area
- Polk County
- Haines City
- Marion Creek
- 337 Wayland Dr, Haines City, FL 33844






























