



Book your tour. Save an average of $18,473. We'll handle the rest.
- Confirmed tours
- Get matched & compare top deals
- Expert help, no pressure
- No added fees
Estimated value based on Jome data, T&C apply
Why tour with Jome?
- No pressure toursTour at your own pace with no sales pressure
- Expert guidanceGet insights from our home buying experts
- Exclusive accessSee homes and deals not available elsewhere
Jome is featured in
- Single-Family
- $190.57/sqft
- $47/monthly HOA
- North facing
Home description
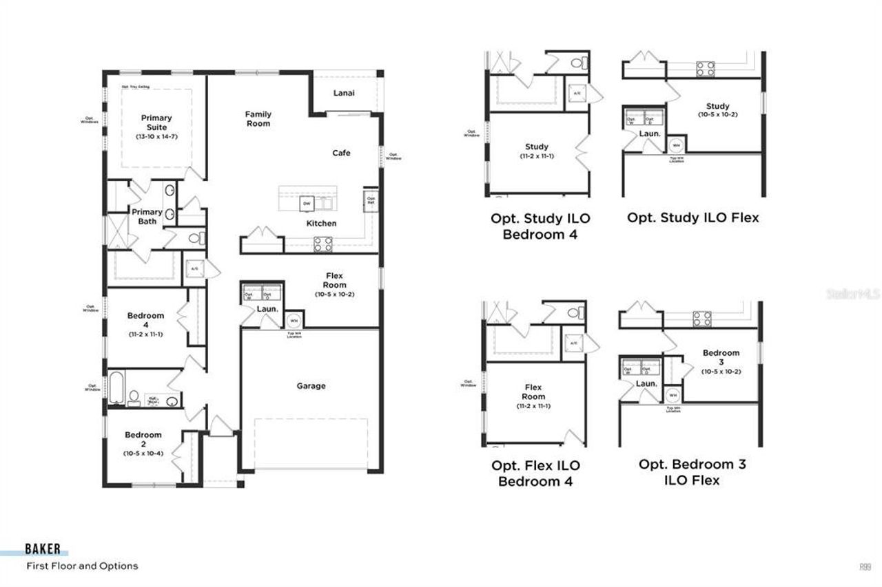
Beautiful Single Level, 2 Car Garage Home with Open Concept Living and 3 large Bedrooms! This Baker plan is in a Traditional elevation. Adjacent to the foyer you'll find 2 secondary bedrooms and a full bathroom with cabinets and tile to the ceiling in the tub/shower combo. The well-appointed kitchen includes an island with shaker style cabinets and peppered ash granite countertops. The kitchen overlooks the spacious family room with 17in light beige tile and adjoining cafe with access to the paver stone covered lanai. The primary suite, with tray ceiling, boasts an ensuite bathroom with dual sink vanity, shower with tile to the ceiling, private water closet, and large walk-in closet. The Study option has dual glass doors to complete the look of this modern bright and airy floor plan which will make any family treasure their memories in this home.
DRB GROUP REALTY, LLC, MLS O6352801
May also be listed on the DRB Homes website
Information last verified by Jome: Today at 10:05 AM (December 7, 2025)
Home highlights
Nature preserve in Kissimmee with boardwalks, paddling trails, and historic sites near family-friendly neighborhoods.
Book your tour. Save an average of $18,473. We'll handle the rest.
We collect exclusive builder offers, book your tours, and support you from start to housewarming.
- Confirmed tours
- Get matched & compare top deals
- Expert help, no pressure
- No added fees
Estimated value based on Jome data, T&C apply
Home details
- Property status:
- Pending/Under contract
- Lot size (acres):
- 0.14
- Size:
- 1,814 sqft
- Stories:
- 1
- Beds:
- 3
- Baths:
- 2
- Garage spaces:
- 2
- Facing direction:
- North
Construction details
- Builder Name:
- DRB Homes
- Completion Date:
- January, 2026
- Year Built:
- 2025
- Roof:
- Shingle Roofing
Home features & finishes
- Appliances:
- Sprinkler System
- Construction Materials:
- StuccoConcrete
- Cooling:
- Central Air
- Flooring:
- Carpet FlooringTile Flooring
- Foundation Details:
- Slab
- Garage/Parking:
- Door OpenerGarageAttached Garage
- Home amenities:
- InternetGreen Construction
- Interior Features:
- Ceiling-HighWalk-In ClosetFoyerPantrySliding DoorsTray Ceiling
- Kitchen:
- DishwasherMicrowave OvenDisposalKitchen IslandKitchen Range
- Laundry facilities:
- DryerWasherUtility/Laundry Room
- Lighting:
- Exterior LightingLighting
- Pets:
- Pets AllowedDog(s) Only Allowed
- Property amenities:
- SidewalkGardenLandscapingLanaiSmart Home System
- Rooms:
- Flex RoomPrimary Bedroom On MainKitchenFamily RoomBreakfast AreaOpen Concept FloorplanPrimary Bedroom Downstairs
Utility information
- Heating:
- Electric Heating, Water Heater, Central Heating
- Utilities:
- Electricity Available, Underground Utilities, Water Available

Community details
Hamilton Bluff
by DRB Homes, Haines City, FL
- 4 homes
- 10 plans
- 1,480 - 2,507 sqft
View Hamilton Bluff details
Community amenities
- Dog Park
- Playground
- Club House
- Community Pool
- Sidewalks Available
More homes in Hamilton Bluff
Floor plans in Hamilton Bluff
About the builder - DRB Homes
Neighborhood
Home address
- City:
- Haines City
- County:
- Polk
- Zip Code:
- 33844
Schools in Polk County School District
GreatSchools’ Summary Rating calculation is based on 4 of the school’s themed ratings, including test scores, student/academic progress, college readiness, and equity. This information should only be used as a reference. Jome is not affiliated with GreatSchools and does not endorse or guarantee this information. Please reach out to schools directly to verify all information and enrollment eligibility. Data provided by GreatSchools.org © 2025
Places of interest
Getting around
Air quality
Noise level
A Soundscore™ rating is a number between 50 (very loud) and 100 (very quiet) that tells you how loud a location is due to environmental noise.
Natural hazards risk
Climate hazards can impact homes and communities, with risks varying by location. These scores reflect the potential impact of natural disasters and climate-related risks on Polk County
Provided by FEMA

Considering this home?
Our expert will guide your tour, in-person or virtual
Need more information?
Text or call (888) 486-2818
Financials
Estimated monthly payment
Similar homes nearby
Recently added communities in this area
Nearby communities in Haines City
New homes in nearby cities
More New Homes in Haines City, FL
DRB GROUP REALTY, LLC, MLS O6352801
Based on information submitted to the MLS GRID as of 10/21/2024 2:31 PM CDT. All data is obtained from various sources and may not have been verified by broker or MLS GRID. Supplied Open House Information is subject to change without notice. All information should be independently reviewed and verified for accuracy. Properties may or may not be listed by the office/agent presenting the information. Some IDX listings have been excluded from this website. Properties displayed may be listed or sold by various participants in the MLS. IDX information is provided exclusively for personal, non-commercial use, and may not be used for any purpose other than to identify prospective properties consumers may be interested in purchasing. Information is deemed reliable but not guaranteed. Use of the MLS GRID Data may be subject to an end user license agreement prescribed by the Member Participant’s applicable MLS if any and as amended from time to time. The Digital Millennium Copyright Act of 1998, 17 U.S.C. § 512 (the “DMCA”) provides recourse for copyright owners who believe that material appearing on the Internet infringes their rights under U.S. copyright law. If you believe in good faith that any content or material made available in connection with our website or services infringes your copyright, you (or your agent) may send us a notice requesting that the content or material be removed, or access to it blocked. Notices must be sent in writing by email to DMCAnotice@MLSGrid.com. The DMCA requires that your notice of alleged copyright infringement include the following information: (1) description of the copyrighted work that is the subject of claimed infringement; (2) description of the alleged infringing content and information sufficient to permit us to locate the content; (3) contact information for you, including your address, telephone number and email address; (4) a statement by you that you have a good faith belief that the content in the manner complained of is not authorized by the copyright owner, or its agent, or by the operation of any law; (5) a statement by you, signed under penalty of perjury, that the information in the notification is accurate and that you have the authority to enforce the copyrights that are claimed to be infringed; and (6) a physical or electronic signature of the copyright owner or a person authorized to act on the copyright owner’s behalf. Failure to include all of the above information may result in the delay of the processing of your complaint. Listing Information presented by local MLS brokerage: NewHomesMate LLC, DBA Jome (888) 486-2818
Read moreLast checked Dec 7, 3:10 pm
- Home
- New homes
- Florida
- Greater Orlando Area
- Polk County
- Haines City
- Hamilton Bluff
- 3039 Chicago Ave, Haines City, FL 33844









































