














Book your tour. Save an average of $18,473. We'll handle the rest.
We collect exclusive builder offers, book your tours, and support you from start to housewarming.
- Confirmed tours
- Get matched & compare top deals
- Expert help, no pressure
- No added fees
Estimated value based on Jome data, T&C apply









- 4 bd
- 5 ba
- 4,055 sqft
958 Pantano Dr, St. Augustine, FL 32095
Why tour with Jome?
- No pressure toursTour at your own pace with no sales pressure
- Expert guidanceGet insights from our home buying experts
- Exclusive accessSee homes and deals not available elsewhere
Jome is featured in
- Single-Family
- Under construction
- $293.22/sqft
- $142.5/monthly HOA
Home description
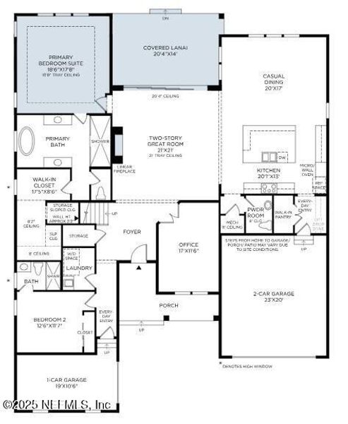
Available Summer 2026 Toll Brothers has developed our most tranquil and natural piece of property to date in the brilliantly-located, exclusive, gated community of Madeira in St Augustine. 5 minutes from downtown and 10 minutes from Vilano Beach. New construction from Toll Brothers! This popular 2-story home will sit comfortably on a 90' wide home site on gorgeous, dense preserve with room for a pool. Featuring metal roof, 20' tall ceilings in the great room that yell WOW! Gourmet kitchen with gas cooktop and soft-close cabinet doors and drawers, expanded primary bedroom and covered lanai, front balcony, 2-story gas fireplace, paver driveway and lanai, epoxy garage floors, and 16' wide sliding glass doors that open to a spectacularly private view. Home sites are select-cleared to save as many of the natural trees as possible. It's absolutely stunning. Buyer can still make interior selections at our award-winning Design Studio. Call today to schedule your private tour!
JACKSONVILLE TBI REALTY, LLC, MLS 2113008
Information last verified by Jome: Today at 5:00 PM (February 15, 2026)
Home highlights
Iconic golf course in Ponte Vedra Beach, home to The Players Championship and renowned island green on hole 17.
Book your tour. Save an average of $18,473. We'll handle the rest.
We collect exclusive builder offers, book your tours, and support you from start to housewarming.
- Confirmed tours
- Get matched & compare top deals
- Expert help, no pressure
- No added fees
Estimated value based on Jome data, T&C apply
Home details
- Property status:
- Under construction
- Size:
- 4,055 sqft
- Stories:
- 2
- Beds:
- 4
- Baths:
- 5
- Half baths:
- 1
- Garage spaces:
- 3
Construction details
- Year Built:
- 2025
- Roof:
- Metal Roofing
Home features & finishes
- Construction Materials:
- CementFrame
- Cooling:
- Central Air
- Flooring:
- Carpet FlooringTile Flooring
- Garage/Parking:
- Door OpenerGarageAttached Garage
- Interior Features:
- Walk-In ClosetShower and Tub in Primary BathFoyerPantry
- Kitchen:
- DishwasherMicrowave OvenDisposalGas CooktopConvection OvenKitchen Island
- Property amenities:
- Trees on propertyBalconyPatio
- Rooms:
- Open Concept Floorplan
- Security system:
- Security SystemSmoke DetectorCarbon Monoxide Detector

Get a consultation with our New Homes Expert
- See how your home builds wealth
- Plan your home-buying roadmap
- Discover hidden gems
Utility information
- Heating:
- Heat Pump, Thermostat, Water Heater, Central Heating, Tankless water heater
- Utilities:
- Electricity Available, Natural Gas Available, Cable Available, Sewer Available, Water Available
Community amenities
- Gated Community
Neighborhood
Home address
- City:
- St. Augustine
- County:
- St. Johns
- Zip Code:
- 32095
Schools in St. Johns County School District
- Grades 06-12Publicst johns county juvenile residential0.8 mi4500 avenue dna
GreatSchools’ Summary Rating calculation is based on 4 of the school’s themed ratings, including test scores, student/academic progress, college readiness, and equity. This information should only be used as a reference. Jome is not affiliated with GreatSchools and does not endorse or guarantee this information. Please reach out to schools directly to verify all information and enrollment eligibility. Data provided by GreatSchools.org © 2025
Places of interest
Getting around
Noise level
A Soundscore™ rating is a number between 50 (very loud) and 100 (very quiet) that tells you how loud a location is due to environmental noise.
Natural hazards risk
Provided by FEMA

Considering this home?
Our expert will guide your tour, in-person or virtual
Need more information?
Text or call (888) 486-2818
Financials
Estimated monthly payment
Let us help you find your dream home
How many bedrooms are you looking for?
Similar homes nearby
Recently added communities in this area
Nearby communities in St. Augustine
New homes in nearby cities
More New Homes in St. Augustine, FL
JACKSONVILLE TBI REALTY, LLC, MLS 2113008
IDX information is provided exclusively for personal, non-commercial use, and may not be used for any purpose other than to identify prospective properties consumers may be interested in purchasing. Data is deemed reliable but is not guaranteed accurate by NEFMLS. © 2025 Northeast Florida Multiple Listing Service, Inc. All rights reserved.
Read moreLast checked Feb 15, 5:00 pm
- Jome
- New homes search
- Florida
- Jacksonville Metropolitan Area
- St. Johns County
- St. Augustine
- 958 Pantano Dr, St. Augustine, FL 32095


























