














Book your tour. Save an average of $18,473. We'll handle the rest.
- Confirmed tours
- Get matched & compare top deals
- Expert help, no pressure
- No added fees
Estimated value based on Jome data, T&C apply


































- 5 bd
- 3.5 ba
- 3,460 sqft
235 24Th Ave Se, St. Petersburg, FL 33705
Why tour with Jome?
- No pressure toursTour at your own pace with no sales pressure
- Expert guidanceGet insights from our home buying experts
- Exclusive accessSee homes and deals not available elsewhere
Jome is featured in
- Single-Family
- $498.55/sqft
- South facing
- 0.20-acre lot
Home description
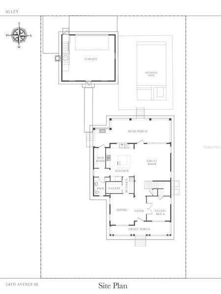
Ready to move into your new construction home? This 2025 Canopy build is now completed! Don't miss this exceptional opportunity with Canopy Builders – St. Petersburg's most TRUSTED name in luxury home construction. The Folk Vernacular represents timeless design and elevated living on a premium oversized cul-de-sac lot in the highly sought-after Old Southeast neighborhood.
This meticulously planned residence offers 5 bedrooms and 3.5 bathrooms across 3,460 sq ft of thoughtfully designed living space, plus a fully equipped Accessory Dwelling Unit above the detached two-car garage—perfect for guests, home office, or additional rental income.
A charming front porch with gas sconce lighting welcomes you into a light-filled foyer showcasing the home's open-concept design and elegant architectural details. The gourmet kitchen stands as the heart of the home, featuring a professional gas range, custom wood range hood, GE Café stainless steel appliances, solid Maple shaker cabinetry with soft-close drawers and 42" uppers, upgraded quartz countertops, distinctive Kohler farmhouse sink, and stylish brass fixtures throughout. The adjacent butler's pantry includes wine refrigeration and connects seamlessly to the formal dining room for effortless entertaining.
The intelligently designed main floor includes a practical mudroom entry, powder room with floating vanity, convenient laundry room, and pool bath with exterior access. Living spaces flow naturally to the expansive covered patio featuring a built-in outdoor kitchen, overlooking the generous side yard with ample room for a future pool.
Retreat upstairs to discover the luxurious primary suite offering dual walk-in closets and a spa-inspired bathroom with marble tile finishes, dual vanities, frameless glass shower, and freestanding soaking tub. Three additional bedrooms and a versatile loft space complete the second floor, providing abundant room for family, guests, or home offices.
Every detail reflects Canopy's commitment to excellence: engineered hardwood flooring, impact-resistant windows, Hardie Board exterior siding, Sherwin-Williams paint, Owens Corning 30-year architectural shingles, Emtek entry hardware, tankless gas water heater, 16 SEER HVAC system with dual-zone thermostats, 10' ceilings, 8' interior doors, and open-cell spray foam attic insulation ensuring year-round comfort and efficiency.
Experience Canopy's signature Design Review Meeting at their St. Pete office to personally touch and feel the curated finish selections. Backed by Canopy's comprehensive warranty program with a dedicated specialist for your entire first year—unmatched peace of mind.
Located steps from Lassing Park, 5 minutes to vibrant Downtown St. Pete, 15 minutes to pristine St. Pete Beach, and 20 minutes to Tampa—the perfect blend of historic charm and modern convenience.
This extraordinary home is nearing completion—schedule your private tour today to experience the exceptional layout, finishes, and craftsmanship firsthand. Your dream home awaits.
SMITH & ASSOCIATES REAL ESTATE, MLS TB8364582
May also be listed on the Canopy Builders website
Information last verified by Jome: Today at 10:11 AM (December 30, 2025)
Home highlights
MacDill AFB offers secure housing, top-rated schools, and abundant amenities in vibrant South Tampa.
Book your tour. Save an average of $18,473. We'll handle the rest.
We collect exclusive builder offers, book your tours, and support you from start to housewarming.
- Confirmed tours
- Get matched & compare top deals
- Expert help, no pressure
- No added fees
Estimated value based on Jome data, T&C apply
Home details
- Property status:
- Pending/Under contract
- Neighborhood:
- Old Southeast
- Lot size (acres):
- 0.20
- Size:
- 3,460 sqft
- Stories:
- 2
- Beds:
- 5
- Baths:
- 3
- Half baths:
- 1
- Garage spaces:
- 2
- Facing direction:
- South
Construction details
- Builder Name:
- Canopy Builders
- Completion Date:
- December, 2025
- Year Built:
- 2025
- Roof:
- Shingle Roofing
Home features & finishes
- Construction Materials:
- Wood FrameCement
- Cooling:
- Ceiling Fan(s)Central Air
- Flooring:
- Hardwood Flooring
- Foundation Details:
- Slab
- Garage/Parking:
- Door OpenerGarageAttached Garage
- Interior Features:
- Ceiling-HighWalk-In ClosetCrown MoldingCoffered Ceiling
- Kitchen:
- Microwave OvenRefrigeratorDisposalKitchen Range
- Laundry facilities:
- Laundry Facilities On Upper LevelUtility/Laundry Room
- Property amenities:
- Cabinets
- Rooms:
- KitchenFamily RoomOpen Concept FloorplanPrimary Bedroom Upstairs
- Security system:
- Smoke Detector
Utility information
- Heating:
- Electric Heating, Zoned Heating, Water Heater, Central Heating, Tankless water heater
- Utilities:
- Electricity Available, Water Available
Community amenities
- Park Nearby
- Sidewalks Available
About the builder - Canopy Builders
Neighborhood
Home address
- Neighborhood:
- Old Southeast
- City:
- St. Petersburg
Schools in Pinellas County School District
- Grades KG-06Privatearqam's academy0.5 mi2401 5th st sna
GreatSchools’ Summary Rating calculation is based on 4 of the school’s themed ratings, including test scores, student/academic progress, college readiness, and equity. This information should only be used as a reference. Jome is not affiliated with GreatSchools and does not endorse or guarantee this information. Please reach out to schools directly to verify all information and enrollment eligibility. Data provided by GreatSchools.org © 2025
Places of interest
Getting around
4 nearby routes: 4 bus, 0 rail, 0 otherAir quality
Natural hazards risk
Climate hazards can impact homes and communities, with risks varying by location. These scores reflect the potential impact of natural disasters and climate-related risks on Pinellas County
Provided by FEMA

Considering this home?
Our expert will guide your tour, in-person or virtual
Need more information?
Text or call (888) 486-2818
Financials
Similar homes nearby
Recently added communities in this area
Nearby communities in St. Petersburg
New homes in nearby cities
More New Homes in St. Petersburg, FL
SMITH & ASSOCIATES REAL ESTATE, MLS TB8364582
Based on information submitted to the MLS GRID as of 10/21/2024 2:31 PM CDT. All data is obtained from various sources and may not have been verified by broker or MLS GRID. Supplied Open House Information is subject to change without notice. All information should be independently reviewed and verified for accuracy. Properties may or may not be listed by the office/agent presenting the information. Some IDX listings have been excluded from this website. Properties displayed may be listed or sold by various participants in the MLS. IDX information is provided exclusively for personal, non-commercial use, and may not be used for any purpose other than to identify prospective properties consumers may be interested in purchasing. Information is deemed reliable but not guaranteed. Use of the MLS GRID Data may be subject to an end user license agreement prescribed by the Member Participant’s applicable MLS if any and as amended from time to time. The Digital Millennium Copyright Act of 1998, 17 U.S.C. § 512 (the “DMCA”) provides recourse for copyright owners who believe that material appearing on the Internet infringes their rights under U.S. copyright law. If you believe in good faith that any content or material made available in connection with our website or services infringes your copyright, you (or your agent) may send us a notice requesting that the content or material be removed, or access to it blocked. Notices must be sent in writing by email to DMCAnotice@MLSGrid.com. The DMCA requires that your notice of alleged copyright infringement include the following information: (1) description of the copyrighted work that is the subject of claimed infringement; (2) description of the alleged infringing content and information sufficient to permit us to locate the content; (3) contact information for you, including your address, telephone number and email address; (4) a statement by you that you have a good faith belief that the content in the manner complained of is not authorized by the copyright owner, or its agent, or by the operation of any law; (5) a statement by you, signed under penalty of perjury, that the information in the notification is accurate and that you have the authority to enforce the copyrights that are claimed to be infringed; and (6) a physical or electronic signature of the copyright owner or a person authorized to act on the copyright owner’s behalf. Failure to include all of the above information may result in the delay of the processing of your complaint. Listing Information presented by local MLS brokerage: NewHomesMate LLC, DBA Jome (888) 486-2818
Read moreLast checked Dec 30, 9:10 pm
- Jome
- New homes search
- Florida
- Tampa Bay Area
- Pinellas County
- St. Petersburg
- 235 24Th Ave Se, St. Petersburg, FL 33705




























