









Book your tour. Save an average of $18,473. We'll handle the rest.
We collect exclusive builder offers, book your tours, and support you from start to housewarming.
- Confirmed tours
- Get matched & compare top deals
- Expert help, no pressure
- No added fees
Estimated value based on Jome data, T&C apply




































- 3 bd
- 2.5 ba
- 1,419 sqft
1235 11Th Ave S, St. Petersburg, FL 33705
Why tour with Jome?
- No pressure toursTour at your own pace with no sales pressure
- Expert guidanceGet insights from our home buying experts
- Exclusive accessSee homes and deals not available elsewhere
Jome is featured in
- Single-Family
- Quick move-in
- $457.36/sqft
- South facing
Home description
Brand new construction Modern Energy-Efficient Home Steps from Downtown St. Pete & Central Ave
This brand-new, 3 bedroom, 2.5 bath high-performance home puts you in the heart of St. Petersburg’s most vibrant neighborhoods—just a short walk from Downtown, the Grand Central District, and all the shops, bars, art galleries, and restaurants along Central Ave. Live where the action is, with the convenience of strolling to coffee shops, craft breweries, and waterfront parks, all while enjoying the comfort of an ultra-efficient home designed to keep energy bills under $100 a month.
Built with Structurally Insulated Panels (SIPs), this home delivers superior insulation, airtight construction, and lower utility costs without sacrificing style. The open, light-filled layout features luxury vinyl plank flooring, a modern kitchen with quartz countertops and stainless steel appliances, and a spacious primary suite with a walk-in closet. A second-floor laundry room and attached one-car garage add everyday convenience.
Whether you’re heading out for a night on Central Ave, browsing local boutiques, or enjoying a sunset at nearby Lassing Park, this prime location means you’re always minutes from the best of St. Pete. Completed 4/26-don’t miss this rare opportunity to own a cutting-edge, energy-smart home in the city’s most walkable district.
(Interested in how SIP construction saves energy? Learn more here: Structurally Insulated Panels Explained)
COMPASS FLORIDA LLC, MLS TB8499610
Information last verified by Jome: Today at 3:11 PM (April 21, 2026)
Book your tour. Save an average of $18,473. We'll handle the rest.
We collect exclusive builder offers, book your tours, and support you from start to housewarming.
- Confirmed tours
- Get matched & compare top deals
- Expert help, no pressure
- No added fees
Estimated value based on Jome data, T&C apply
Home details
- Property status:
- Move-in ready
- Neighborhood:
- Campbell Park
- Lot size (acres):
- 0.07
- Size:
- 1,419 sqft
- Stories:
- 2
- Beds:
- 3
- Baths:
- 2
- Half baths:
- 1
- Garage spaces:
- 1
- Facing direction:
- South
Construction details
- Year Built:
- 2026
- Roof:
- Metal Roofing
Home features & finishes
- Appliances:
- Exhaust FanIce Maker
- Cooling:
- Central Air
- Flooring:
- Vinyl Flooring
- Foundation Details:
- Slab
- Garage/Parking:
- GarageAttached Garage
- Home amenities:
- Green Construction
- Interior Features:
- Ceiling-High
- Kitchen:
- DishwasherMicrowave OvenOvenRefrigeratorConvection OvenFreezerKitchen Range
- Laundry facilities:
- DryerWasherUtility/Laundry Room
- Rooms:
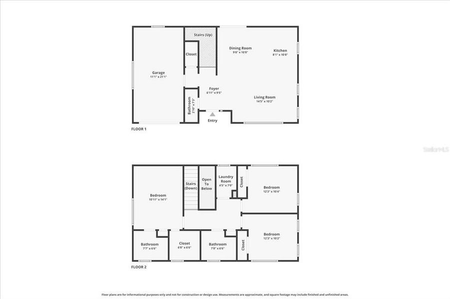
- Dining RoomLiving Room

Get a consultation with our New Homes Expert
- See how your home builds wealth
- Plan your home-buying roadmap
- Discover hidden gems
Utility information
- Heating:
- Water Heater, Central Heating
- Sewer:
- Public Sewer
- Utilities:
- Electricity Available, Cable Available, Water Available
- Water source:
- Public
Community amenities
- City View
- Garden View
Neighborhood
Home address
- Neighborhood:
- Campbell Park
- City:
- St. Petersburg
Schools in Pinellas County School District
- Grades 08-12Charterpinellas mycroschool of integrated academics and technologie0.7 mi840 third ave s1/10
GreatSchools’ Summary Rating calculation is based on 4 of the school’s themed ratings, including test scores, student/academic progress, college readiness, and equity. This information should only be used as a reference. Jome is not affiliated with GreatSchools and does not endorse or guarantee this information. Please reach out to schools directly to verify all information and enrollment eligibility. Data provided by GreatSchools.org © 2025
Places of interest
Getting around
9 nearby routes: 9 bus, 0 rail, 0 otherAir quality
Noise level
A Soundscore™ rating is a number between 50 (very loud) and 100 (very quiet) that tells you how loud a location is due to environmental noise.
Natural hazards risk
Provided by FEMA

Considering this home?
Our expert will guide your tour, in-person or virtual
Need more information?
Text or call (888) 545-5198
Financials
Estimated monthly payment
Let us help you find your dream home
How many bedrooms are you looking for?
Similar homes nearby
Recently added communities in this area
Nearby communities in St. Petersburg
New homes in nearby cities
More New Homes in St. Petersburg, FL
COMPASS FLORIDA LLC, MLS TB8499610
Based on information submitted to the MLS GRID as of 10/21/2024 2:31 PM CDT. All data is obtained from various sources and may not have been verified by broker or MLS GRID. Supplied Open House Information is subject to change without notice. All information should be independently reviewed and verified for accuracy. Properties may or may not be listed by the office/agent presenting the information. Some IDX listings have been excluded from this website. Properties displayed may be listed or sold by various participants in the MLS. IDX information is provided exclusively for personal, non-commercial use, and may not be used for any purpose other than to identify prospective properties consumers may be interested in purchasing. Information is deemed reliable but not guaranteed. Use of the MLS GRID Data may be subject to an end user license agreement prescribed by the Member Participant’s applicable MLS if any and as amended from time to time. The Digital Millennium Copyright Act of 1998, 17 U.S.C. § 512 (the “DMCA”) provides recourse for copyright owners who believe that material appearing on the Internet infringes their rights under U.S. copyright law. If you believe in good faith that any content or material made available in connection with our website or services infringes your copyright, you (or your agent) may send us a notice requesting that the content or material be removed, or access to it blocked. Notices must be sent in writing by email to DMCAnotice@MLSGrid.com. The DMCA requires that your notice of alleged copyright infringement include the following information: (1) description of the copyrighted work that is the subject of claimed infringement; (2) description of the alleged infringing content and information sufficient to permit us to locate the content; (3) contact information for you, including your address, telephone number and email address; (4) a statement by you that you have a good faith belief that the content in the manner complained of is not authorized by the copyright owner, or its agent, or by the operation of any law; (5) a statement by you, signed under penalty of perjury, that the information in the notification is accurate and that you have the authority to enforce the copyrights that are claimed to be infringed; and (6) a physical or electronic signature of the copyright owner or a person authorized to act on the copyright owner’s behalf. Failure to include all of the above information may result in the delay of the processing of your complaint. Listing Information presented by local MLS brokerage: NewHomesMate LLC, DBA Jome (888) 545-5198
Read moreLast checked Apr 21, 3:10 pm
- Jome
- New homes search
- Florida
- Tampa Bay Area
- Pinellas County
- St. Petersburg
- 1235 11Th Ave S, St. Petersburg, FL 33705



























