








Book your tour. Save an average of $18,473. We'll handle the rest.
We collect exclusive builder offers, book your tours, and support you from start to housewarming.
- Confirmed tours
- Get matched & compare top deals
- Expert help, no pressure
- No added fees
Estimated value based on Jome data, T&C apply

















Why tour with Jome?
- No pressure toursTour at your own pace with no sales pressure
- Expert guidanceGet insights from our home buying experts
- Exclusive accessSee homes and deals not available elsewhere
Jome is featured in
- Townhouse
- Quick move-in
- $219.81/sqft
- $399/monthly HOA
Home description
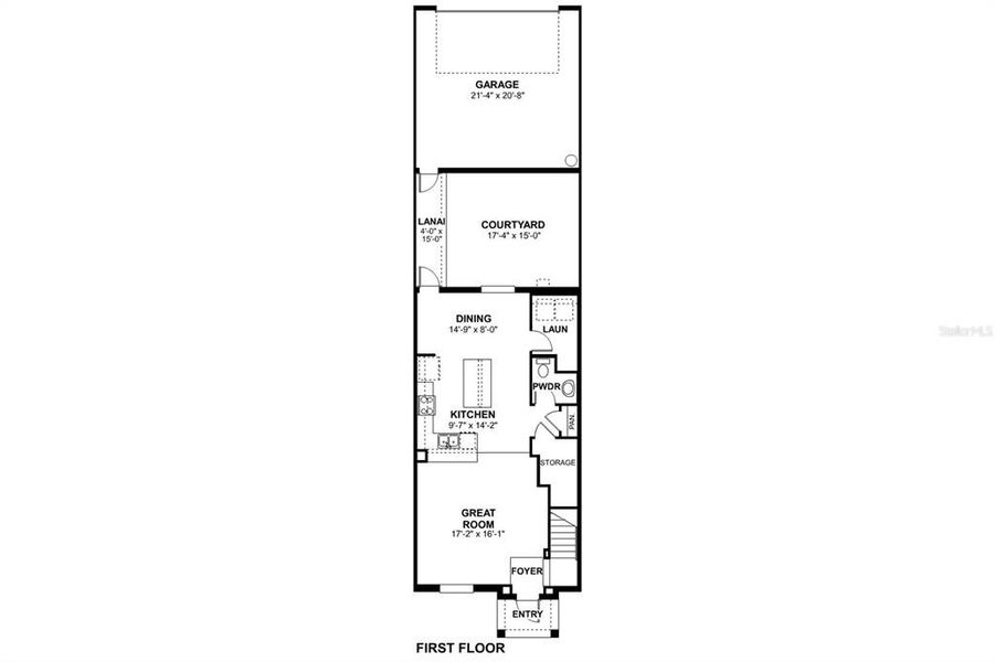
Welcome home to the Foxtail model at Palmera in Wellen Park! This beautiful home features 3 bedrooms, 2 1/2 bathrooms, an open concept great-room and kitchen and a 2-car garage. You'll enjoy the large owner's suite with walk-in closet as one of the highlights of this home. As you walk into the main living area, a spacious kitchen greets you with a large center island and additional counter space with quartz counter tops. The dining area provides a casual dining space, and a spacious great room is perfect for entertaining. Palmera at Wellen Park offers a wide array of resort-style amenities anchored by a stunning, coastal-inspired clubhouse including Golf Simulator, Fitness Center, Pickleball, Resort-Style Pool & Lap Lanes, Splash Pad, Playground, Fireside Lounge, Clubhouse, Gathering Lawn, and On-Site Dining. Visit us today! *Photos show pictures of a previous model, not all features are the same.
M/I HOMES SWFL, LLC, MLS R4909983
May also be listed on the M/I Homes website
Information last verified by Jome: Today at 3:10 PM (April 4, 2026)
Home highlights
Book your tour. Save an average of $18,473. We'll handle the rest.
We collect exclusive builder offers, book your tours, and support you from start to housewarming.
- Confirmed tours
- Get matched & compare top deals
- Expert help, no pressure
- No added fees
Estimated value based on Jome data, T&C apply
Home details
- Property status:
- Move-in ready
- Lot size (acres):
- 0.07
- Size:
- 1,706 sqft
- Stories:
- 2
- Beds:
- 3
- Baths:
- 2
- Half baths:
- 1
- Garage spaces:
- 2
- Facing direction:
- West
Construction details
- Builder Name:
- M/I Homes
- Completion Date:
- November, 2025
- Year Built:
- 2025
- Roof:
- Tile Roofing
Home features & finishes
- Construction Materials:
- StuccoBlock
- Cooling:
- Central Air
- Flooring:
- Laminate FlooringCarpet FlooringTile FlooringHardwood Flooring
- Foundation Details:
- Slab
- Garage/Parking:
- GarageAttached Garage
- Interior Features:
- Ceiling-HighWalk-In Closet
- Kitchen:
- DishwasherMicrowave OvenKitchen Range
- Laundry facilities:
- Utility/Laundry Room
- Pets:
- Pets Allowed
- Property amenities:
- Irrigation
- Rooms:
- Open Concept FloorplanPrimary Bedroom Upstairs

Get a consultation with our New Homes Expert
- See how your home builds wealth
- Plan your home-buying roadmap
- Discover hidden gems
Utility information
- Heating:
- Electric Heating
- Utilities:
- Electricity Available, Cable Available, Sewer Available, Water Available

Community details
Palmera at Wellen Park at Wellen Park
by M/I Homes, Venice, FL
- 21 homes
- 12 plans
- 1,702 - 4,643 sqft
View Palmera at Wellen Park details
Community amenities
- Woods View
- Playground
- Fitness Center/Exercise Area
- Club House
- Community Pool
More homes in Palmera at Wellen Park
- Home at address 17978 Broadleaf Lp, North Port, FL 34293

Sabal
$369,990
- 3 bd
- 2.5 ba
- 1,702 sqft
17978 Broadleaf Lp, North Port, FL 34293
- Home at address 17978 Broadleaf Lp, Venice, FL 34293

Home
$369,990
- 3 bd
- 2.5 ba
- 1,702 sqft
17978 Broadleaf Lp, Venice, FL 34293
- Home at address 17706 Broadleaf Lp, North Port, FL 34293

Foxtail
$374,990
- 3 bd
- 2.5 ba
- 1,706 sqft
17706 Broadleaf Lp, North Port, FL 34293
- Home at address 17712 Broadleaf Lp, North Port, FL 34293

Sabal
$374,990
- 3 bd
- 2.5 ba
- 1,702 sqft
17712 Broadleaf Lp, North Port, FL 34293
- Home at address 17712 Broadleaf Lp, Venice, FL 34293

Home
$374,990
- 3 bd
- 2.5 ba
- 1,702 sqft
17712 Broadleaf Lp, Venice, FL 34293
- Home at address 17736 Broadleaf Lp, Venice, FL 34293

Home
$382,990
- 3 bd
- 2.5 ba
- 1,702 sqft
17736 Broadleaf Lp, Venice, FL 34293
Floor plans in Palmera at Wellen Park
About the builder - M/I Homes

- 141communities on Jome
- 1,926homes on Jome
Neighborhood
Home address
Schools in Sarasota County School District
- Grades KG-06Chartercollege preparatory academy at wellen park2.5 mi6278 n federal highwayna
- Grades M-MPublicwellen park high school3.4 mi11830 manasota beach roadna
GreatSchools’ Summary Rating calculation is based on 4 of the school’s themed ratings, including test scores, student/academic progress, college readiness, and equity. This information should only be used as a reference. Jome is not affiliated with GreatSchools and does not endorse or guarantee this information. Please reach out to schools directly to verify all information and enrollment eligibility. Data provided by GreatSchools.org © 2025
Places of interest
Getting around
Air quality

Considering this home?
Our expert will guide your tour, in-person or virtual
Need more information?
Text or call (888) 545-5198
Financials
Estimated monthly payment
Let us help you find your dream home
How many bedrooms are you looking for?
Similar homes nearby
Recently added communities in this area
Nearby communities in Venice
New homes in nearby cities
More New Homes in Venice, FL
M/I HOMES SWFL, LLC, MLS R4909983
Based on information submitted to the MLS GRID as of 10/21/2024 2:31 PM CDT. All data is obtained from various sources and may not have been verified by broker or MLS GRID. Supplied Open House Information is subject to change without notice. All information should be independently reviewed and verified for accuracy. Properties may or may not be listed by the office/agent presenting the information. Some IDX listings have been excluded from this website. Properties displayed may be listed or sold by various participants in the MLS. IDX information is provided exclusively for personal, non-commercial use, and may not be used for any purpose other than to identify prospective properties consumers may be interested in purchasing. Information is deemed reliable but not guaranteed. Use of the MLS GRID Data may be subject to an end user license agreement prescribed by the Member Participant’s applicable MLS if any and as amended from time to time. The Digital Millennium Copyright Act of 1998, 17 U.S.C. § 512 (the “DMCA”) provides recourse for copyright owners who believe that material appearing on the Internet infringes their rights under U.S. copyright law. If you believe in good faith that any content or material made available in connection with our website or services infringes your copyright, you (or your agent) may send us a notice requesting that the content or material be removed, or access to it blocked. Notices must be sent in writing by email to DMCAnotice@MLSGrid.com. The DMCA requires that your notice of alleged copyright infringement include the following information: (1) description of the copyrighted work that is the subject of claimed infringement; (2) description of the alleged infringing content and information sufficient to permit us to locate the content; (3) contact information for you, including your address, telephone number and email address; (4) a statement by you that you have a good faith belief that the content in the manner complained of is not authorized by the copyright owner, or its agent, or by the operation of any law; (5) a statement by you, signed under penalty of perjury, that the information in the notification is accurate and that you have the authority to enforce the copyrights that are claimed to be infringed; and (6) a physical or electronic signature of the copyright owner or a person authorized to act on the copyright owner’s behalf. Failure to include all of the above information may result in the delay of the processing of your complaint. Listing Information presented by local MLS brokerage: NewHomesMate LLC, DBA Jome (888) 545-5198
Read moreLast checked Apr 4, 9:10 pm
- Jome
- New homes search
- Florida
- Sarasota County
- Venice
- Palmera at Wellen Park
- 17706 Broadleaf Lp, Venice, FL 34293






























