














Book your tour. Save an average of $18,473. We'll handle the rest.
- Confirmed tours
- Get matched & compare top deals
- Expert help, no pressure
- No added fees
Estimated value based on Jome data, T&C apply









- 4 bd
- 3.5 ba
- 3,501 sqft
20130 Sugarloaf Mountain Rd, Clermont, FL 34715
Why tour with Jome?
- No pressure toursTour at your own pace with no sales pressure
- Expert guidanceGet insights from our home buying experts
- Exclusive accessSee homes and deals not available elsewhere
Jome is featured in
- Single-Family
- Ready by December 2026
- $442.73/sqft
- South facing
Home description
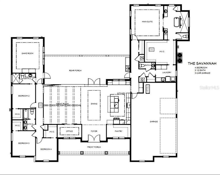
The talented team at Trilogy Homes brings craftsmanship and quality to this custom-built home. Nestled on 4.79 acres on Sugarloaf Mountain, this beautifully designed 5,251 total square foot and 3,501 square-foot living residence offers you the opportunity to select your finishes and truly make it your own. Featuring 4 bedrooms, 3.5 baths, private front and rear porches, a paver driveway leads to an oversized 3 car garage. This home combines elegance and functionality. Entering through the foyer, you'll find a gallery that opens to an incredible open-concept floor plan. The stunning volume ceilings, enhanced with wood-style beams, grace the great room. The kitchen boasts gorgeous quartz countertops, top-of-the-line appliances, a huge walk-in hidden pantry, and an oversized island, perfect for meal preparation and entertainment. The expansive master suite, with coffered ceilings, offers views of the property providing the ultimate in rest and relaxation. The master bathroom features a walk-through shower with multiple showerheads, a soaking tub, and his and her vanities. A walk-in closet has convenient access to the adjoining laundry room. For privacy, a French door opens directly to the lanai. Additional highlights include main-floor bedrooms with high ceilings and ample walk-in closet space, a private office, and a game room with views of the lanai. Call now to schedule an appointment and discover how you can customize this exquisite home to your liking. Minutes from the Minneola Turnpike exit and the new Hospital.
LA ROSA REALTY LLC, MLS O6339575
Information last verified by Jome: Today at 10:00 AM (December 5, 2025)
Home highlights
Natural spring park near Orlando with clear swimming waters, canoeing, and trails amid lush Central Florida forest.
Book your tour. Save an average of $18,473. We'll handle the rest.
We collect exclusive builder offers, book your tours, and support you from start to housewarming.
- Confirmed tours
- Get matched & compare top deals
- Expert help, no pressure
- No added fees
Estimated value based on Jome data, T&C apply
Home details
- Property status:
- Under construction
- Lot size (acres):
- 4.79
- Size:
- 3,501 sqft
- Stories:
- 1
- Beds:
- 4
- Baths:
- 3
- Half baths:
- 1
- Garage spaces:
- 3
- Facing direction:
- South
Construction details
- Completion Date:
- December, 2026
- Year Built:
- 2026
- Roof:
- Shingle Roofing
Home features & finishes
- Construction Materials:
- Block
- Cooling:
- Central Air
- Foundation Details:
- Slab
- Garage/Parking:
- GarageAttached Garage
- Interior Features:
- Coffered Ceiling
- Rooms:
- Primary Bedroom On MainPrimary Bedroom Downstairs
Utility information
- Heating:
- Electric Heating, Water Heater
- Utilities:
- Electricity Available, Cable Available
Neighborhood
Home address
Schools in Lake County School District
- Grades PK-12Privatemontverde academy4.3 mi17235 7th stna
GreatSchools’ Summary Rating calculation is based on 4 of the school’s themed ratings, including test scores, student/academic progress, college readiness, and equity. This information should only be used as a reference. Jome is not affiliated with GreatSchools and does not endorse or guarantee this information. Please reach out to schools directly to verify all information and enrollment eligibility. Data provided by GreatSchools.org © 2025
Places of interest
Getting around
Natural hazards risk
Climate hazards can impact homes and communities, with risks varying by location. These scores reflect the potential impact of natural disasters and climate-related risks on Lake County
Provided by FEMA

Considering this home?
Our expert will guide your tour, in-person or virtual
Need more information?
Text or call (888) 486-2818
Financials
Similar homes nearby
Recently added communities in this area
Nearby communities in Clermont
New homes in nearby cities
More New Homes in Clermont, FL
LA ROSA REALTY LLC, MLS O6339575
Based on information submitted to the MLS GRID as of 10/21/2024 2:31 PM CDT. All data is obtained from various sources and may not have been verified by broker or MLS GRID. Supplied Open House Information is subject to change without notice. All information should be independently reviewed and verified for accuracy. Properties may or may not be listed by the office/agent presenting the information. Some IDX listings have been excluded from this website. Properties displayed may be listed or sold by various participants in the MLS. IDX information is provided exclusively for personal, non-commercial use, and may not be used for any purpose other than to identify prospective properties consumers may be interested in purchasing. Information is deemed reliable but not guaranteed. Use of the MLS GRID Data may be subject to an end user license agreement prescribed by the Member Participant’s applicable MLS if any and as amended from time to time. The Digital Millennium Copyright Act of 1998, 17 U.S.C. § 512 (the “DMCA”) provides recourse for copyright owners who believe that material appearing on the Internet infringes their rights under U.S. copyright law. If you believe in good faith that any content or material made available in connection with our website or services infringes your copyright, you (or your agent) may send us a notice requesting that the content or material be removed, or access to it blocked. Notices must be sent in writing by email to DMCAnotice@MLSGrid.com. The DMCA requires that your notice of alleged copyright infringement include the following information: (1) description of the copyrighted work that is the subject of claimed infringement; (2) description of the alleged infringing content and information sufficient to permit us to locate the content; (3) contact information for you, including your address, telephone number and email address; (4) a statement by you that you have a good faith belief that the content in the manner complained of is not authorized by the copyright owner, or its agent, or by the operation of any law; (5) a statement by you, signed under penalty of perjury, that the information in the notification is accurate and that you have the authority to enforce the copyrights that are claimed to be infringed; and (6) a physical or electronic signature of the copyright owner or a person authorized to act on the copyright owner’s behalf. Failure to include all of the above information may result in the delay of the processing of your complaint. Listing Information presented by local MLS brokerage: NewHomesMate LLC, DBA Jome (888) 486-2818
Read moreLast checked Dec 5, 3:10 pm
- Home
- New homes
- Florida
- Greater Orlando Area
- Lake County
- Clermont
- 20130 Sugarloaf Mountain Rd, Clermont, FL 34715

























