

















































- 4 bd
- 3.5 ba
- 2,758 sqft
65 Bedford Lp, Crawfordville, FL 32327
- Single-Family
- $174/sqft
- 184 days on Jome
New Homes for Sale Near 65 Bedford Lp, Crawfordville, FL 32327
About this Home
About this home
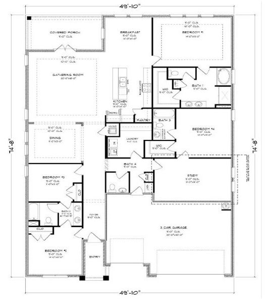
Discover 65 Bedford Loop in Greystone, our new home community just south of Tallahassee, FL. The Camden plan is a 4-bedroom, 3.5-bathroom home with a study. This plan wows with its open layout and luxurious details.
Upon entering your home, you will have two bedrooms and a bathroom off the entryway. Further down the hall is the study/flex space that can be the perfect mother-in-law suite with its own full bath, bedroom and the separate living space.
Entering into the heart of the home you and your guests will be impressed by the attention to detail and features, which include granite countertops, crown molding in the tray ceilings, and stainless-steel appliances. The chef-inspired kitchen opens into the large living room with an abundance of natural light. There is also a dedicated dining space and breakfast nook.
In the back of the home, the primary suite is a private retreat. The large bedroom features trey ceilings and natural light, creating an inviting space. The en suite features dual vanities, garden tub, separate walk-in shower and spacious closet.
This plan provides space for the whole family and inviting for entertaining. Homes are built with quality materials and workmanship throughout, plus a one-year builder’s warranty. Additionally, every home is equipped with a Smart Home technology package, enhancing your connectivity, security, and convenience for a truly modern living experience.
*Pictures, colors, features, and sizes are for illustration purposes only and will vary from the home built.
May also be listed on the D.R. Horton website
Information last verified by Jome: Thursday at 1:07 AM (December 11, 2025)
Home details
- Property status:
- Sold
- Size:
- 2,758 sqft
- Stories:
- 1
- Beds:
- 4
- Baths:
- 3.5
- Garage spaces:
- 3
Construction details
- Builder Name:
- D.R. Horton
Home features & finishes
- Garage/Parking:
- GarageAttached Garage
- Interior Features:
- Walk-In ClosetFoyer
- Laundry facilities:
- Utility/Laundry Room
- Property amenities:
- Porch
- Rooms:
- Primary Bedroom On MainKitchenOffice/StudyFamily RoomBreakfast AreaPrimary Bedroom Downstairs

Community details
Greystone
by D.R. Horton, Crawfordville, FL
- 8 homes
- 6 plans
- 2,259 - 3,044 sqft
View Greystone details
More homes in Greystone
- Home at address 112 Bedford Lp, Crawfordville, FL 32327

$419,900
Move-in ready- 4 bd
- 3 ba
- 2,458 sqft
112 Bedford Lp, Crawfordville, FL 32327
- Home at address 119 Bedford Lp, Crawfordville, FL 32327

$469,900
Move-in ready- 5 bd
- 3.5 ba
- 2,890 sqft
119 Bedford Lp, Crawfordville, FL 32327
- Home at address 118 Bedford Lp, Crawfordville, FL 32327

$469,900
Move-in ready- 5 bd
- 3.5 ba
- 2,890 sqft
118 Bedford Lp, Crawfordville, FL 32327
- Home at address 143 Bedford Lp, Crawfordville, FL 32327

$478,900
Move-in ready- 4 bd
- 3 ba
- 2,303 sqft
143 Bedford Lp, Crawfordville, FL 32327
- Home at address 137 Bedford Lp, Crawfordville, FL 32327

$492,900
Move-in ready- 5 bd
- 3.5 ba
- 2,890 sqft
137 Bedford Lp, Crawfordville, FL 32327
- Home at address 113 Bedford Lp, Crawfordville, FL 32327

$509,000
Move-in ready- 5 bd
- 3 ba
- 3,044 sqft
113 Bedford Lp, Crawfordville, FL 32327
Floor plans in Greystone
About the builder - D.R. Horton

- 1,183communities on Jome
- 10,169homes on Jome
Neighborhood
Home address
- City:
- Crawfordville
- County:
- Wakulla
- Zip Code:
- 32327
Schools in Wakulla County School District
- Grades PK-PKPublicteen parent pk child care program1.3 mi69 arran rdna
GreatSchools’ Summary Rating calculation is based on 4 of the school’s themed ratings, including test scores, student/academic progress, college readiness, and equity. This information should only be used as a reference. Jome is not affiliated with GreatSchools and does not endorse or guarantee this information. Please reach out to schools directly to verify all information and enrollment eligibility. Data provided by GreatSchools.org © 2025
Places of interest
Getting around
Air quality
Financials
Nearby communities in Crawfordville
Homes in Crawfordville by D.R. Horton
Recently added communities in this area
Other Builders in Crawfordville, FL
Nearby sold homes
New homes in nearby cities
More New Homes in Crawfordville, FL
- Jome
- New homes search
- Florida
- Wakulla County
- Crawfordville
- Greystone
- 65 Bedford Lp, Crawfordville, FL 32327










































