



Book your tour. Save an average of $18,473. We'll handle the rest.
- Confirmed tours
- Get matched & compare top deals
- Expert help, no pressure
- No added fees
Estimated value based on Jome data, T&C apply
- 3 bd
- 2 ba
- 2,477 sqft
5648 Spivey Ct, Wesley Chapel, FL 33545
Why tour with Jome?
- No pressure toursTour at your own pace with no sales pressure
- Expert guidanceGet insights from our home buying experts
- Exclusive accessSee homes and deals not available elsewhere
Jome is featured in
- Single-Family
- Under construction
- $211.95/sqft
- $85/annual HOA
Home description
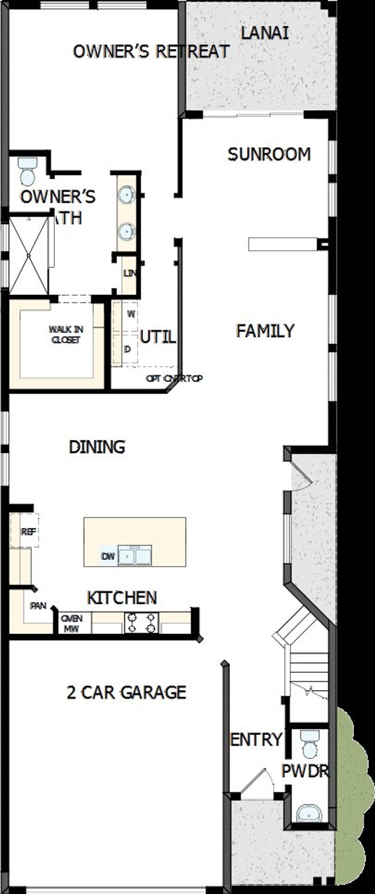
Dedication to craftsmanship defines every inch of The Runion by David Weekley Homes at Chapel Crossings. The Owner’s Retreat features expansive windows that fill the room with natural light, along with a serene Owner’s Bath and spacious walk-in closet.
Open family and dining areas create the perfect backdrop for everyday living and special celebrations. Two secondary bedrooms share a bathroom, offering comfortable spaces for guests, growing residents, or a home office.
The contemporary kitchen is designed with function and style in mind, featuring a corner pantry, center island, and open sight lines. White cabinetry pairs beautifully with a warm wood island topped with quartz countertops, while black hardware and lighting add a bold finishing touch. Inspired by natural rock terrain, the interior design blends earthy finishes and tones to create an airy, welcoming atmosphere.
Call or chat with the David Weekley Homes at Chapel Crossings Team to tour of this new home for sale in Wesley Chapel, FL.
May also be listed on the David Weekley Homes website
Information last verified by Jome: Today at 2:15 AM (December 20, 2025)
Home highlights
Historic Florida park with river rapids, hiking, and camping under towering oaks near Tampa’s northeast suburbs.
Book your tour. Save an average of $18,473. We'll handle the rest.
We collect exclusive builder offers, book your tours, and support you from start to housewarming.
- Confirmed tours
- Get matched & compare top deals
- Expert help, no pressure
- No added fees
Estimated value based on Jome data, T&C apply
Home details
- Property status:
- Under construction
- Size:
- 2,477 sqft
- Stories:
- 2
- Beds:
- 3
- Baths:
- 2
- Half baths:
- 1
- Garage spaces:
- 2
Construction details
- Builder Name:
- David Weekley Homes
Home features & finishes
- Garage/Parking:
- GarageAttached Garage
- Interior Features:
- Walk-In ClosetFoyerPantry
- Laundry facilities:
- Laundry Facilities On Main LevelUtility/Laundry Room
- Property amenities:
- Lanai
- Rooms:
- Sun RoomKitchenRetreat AreaPowder RoomDining RoomFamily RoomOpen Concept FloorplanPrimary Bedroom Downstairs

Community details
Chapel Crossings - Garden Series at Chapel Crossings
by David Weekley Homes, Wesley Chapel, FL
- 6 homes
- 6 plans
- 1,815 - 2,825 sqft
View Chapel Crossings - Garden Series details
More homes in Chapel Crossings - Garden Series
Floor plans in Chapel Crossings - Garden Series
About the builder - David Weekley Homes
Neighborhood
Home address
- City:
- Wesley Chapel
- County:
- Pasco
- Zip Code:
- 33545
Schools in Pasco County School District
GreatSchools’ Summary Rating calculation is based on 4 of the school’s themed ratings, including test scores, student/academic progress, college readiness, and equity. This information should only be used as a reference. Jome is not affiliated with GreatSchools and does not endorse or guarantee this information. Please reach out to schools directly to verify all information and enrollment eligibility. Data provided by GreatSchools.org © 2025
Places of interest
Getting around
Air quality
Natural hazards risk
Climate hazards can impact homes and communities, with risks varying by location. These scores reflect the potential impact of natural disasters and climate-related risks on Pasco County
Provided by FEMA

Considering this home?
Our expert will guide your tour, in-person or virtual
Need more information?
Text or call (888) 486-2818
Financials
Estimated monthly payment
Similar homes nearby
Recently added communities in this area
Nearby communities in Wesley Chapel
New homes in nearby cities
More New Homes in Wesley Chapel, FL
- Jome
- New homes search
- Florida
- Tampa Bay Area
- Pasco County
- Wesley Chapel
- Chapel Crossings - Garden Series
- 5648 Spivey Ct, Wesley Chapel, FL 33545





































