



Book your tour. Save an average of $18,473. We'll handle the rest.
- Confirmed tours
- Get matched & compare top deals
- Expert help, no pressure
- No added fees
Estimated value based on Jome data, T&C apply
- 4 bd
- 2.5 ba
- 2,103 sqft
17012 Cottontail Cir, Punta Gorda, FL 33982
Why tour with Jome?
- No pressure toursTour at your own pace with no sales pressure
- Expert guidanceGet insights from our home buying experts
- Exclusive accessSee homes and deals not available elsewhere
Jome is featured in
- Single-Family
- Under construction
- $192.58/sqft
- $120/monthly HOA
Home description
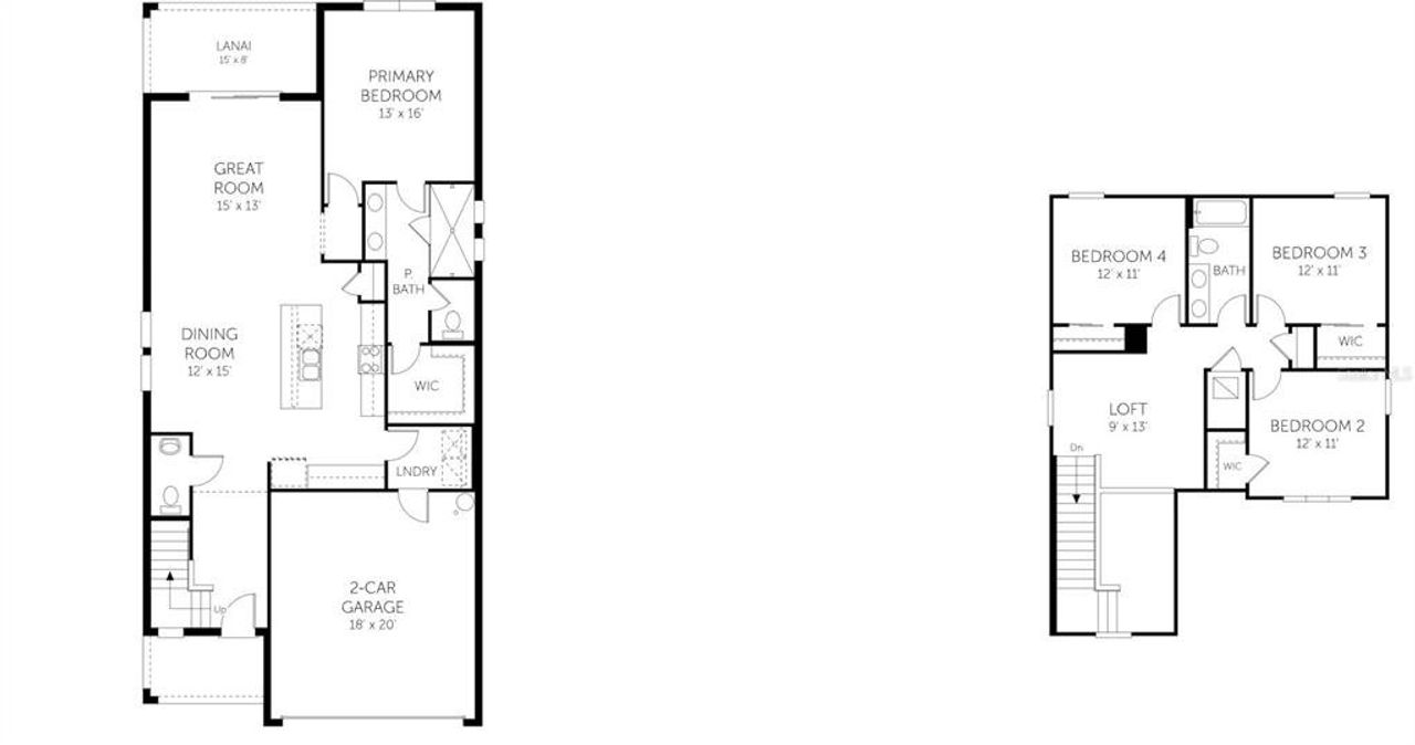
SAMPLE IMAGES Experience the perfect blend of nature, style, and community in this stunning Florence model home. Located in the gated enclave of Creekside Run, you’re just minutes from future Babcock Ranch happenings, B-Street, and Midtown. Enjoy this picturesque, tree-lined neighborhood, walking distance to six parks and walking trails ideal for family, friends, and pets. Inside, the open-concept design features 9'4" ceilings, 8' sliding glass doors, and a seamless indoor-outdoor feel. The stylish kitchen showcases designer cabinetry, quartz countertops, a gas range, and a tankless water heater. Plush carpeting adds warmth to the spacious bedrooms and loft. Living and wet areas have tile floors & tile shower surrounds. Creekside Run's entrance is gated and carries the lowest HOA fees in Babcock Ranch. It provides residents 1 GIG of Internet, a pool, a tot lot, and lawn maintenance.
OLYMPUS EXECUTIVE REALTY INC, MLS G5104225
May also be listed on the Dream Finders Homes website
Information last verified by Jome: Yesterday at 9:58 AM (January 11, 2026)
Home highlights
Book your tour. Save an average of $18,473. We'll handle the rest.
We collect exclusive builder offers, book your tours, and support you from start to housewarming.
- Confirmed tours
- Get matched & compare top deals
- Expert help, no pressure
- No added fees
Estimated value based on Jome data, T&C apply
Home details
- Property status:
- Under construction
- Lot size (acres):
- 0.13
- Size:
- 2,103 sqft
- Stories:
- 2
- Beds:
- 4
- Baths:
- 2
- Half baths:
- 1
- Garage spaces:
- 2
- Facing direction:
- South
Construction details
- Builder Name:
- Dream Finders Homes
- Completion Date:
- December, 2025
- Year Built:
- 2025
- Roof:
- Shingle Roofing
Home features & finishes
- Appliances:
- Exhaust FanSprinkler System
- Construction Materials:
- StuccoBlock
- Cooling:
- Central Air
- Flooring:
- Carpet FlooringTile Flooring
- Foundation Details:
- Slab
- Garage/Parking:
- GarageAttached GarageCar Charging Stations
- Home amenities:
- Internet
- Interior Features:
- Ceiling-HighWalk-In ClosetSliding DoorsLoft
- Kitchen:
- DishwasherDisposalKitchen Range
- Laundry facilities:
- Utility/Laundry Room
- Lighting:
- Exterior LightingStreet Lights
- Pets:
- Pets Allowed
- Property amenities:
- SidewalkPorch
- Rooms:
- Dining RoomLiving RoomOpen Concept Floorplan
- Security system:
- Smoke Detector

Get a consultation with our New Homes Expert
- See how your home builds wealth
- Plan your home-buying roadmap
- Discover hidden gems
Utility information
- Heating:
- Electric Heating, Heat Pump, Thermostat, Water Heater, Central Heating, Tankless water heater
- Utilities:
- Electricity Available, Natural Gas Available, Underground Utilities, Cable Available, Water Available

Community details
Creekside Run at Babcock Ranch
by Dream Finders Homes, Punta Gorda, FL
- 13 homes
- 12 plans
- 1,657 - 3,550 sqft
View Creekside Run at Babcock Ranch details
Community amenities
- Gated Community
- Community Pool
- Park Nearby
- Sidewalks Available
More homes in Creekside Run at Babcock Ranch
- Home at address 17024 Cottontail Cir, Punta Gorda, FL 33982

Salerno
$392,990
- 4 bd
- 2.5 ba
- 2,002 sqft
17024 Cottontail Cir, Punta Gorda, FL 33982
- Home at address 17042 Cottontail Cir, Punta Gorda, FL 33982

Salerno
$394,990
- 4 bd
- 2.5 ba
- 2,002 sqft
17042 Cottontail Cir, Punta Gorda, FL 33982
- Home at address 17030 Cottontail Cir, Punta Gorda, FL 33982

Florence
$409,990
- 4 bd
- 2.5 ba
- 2,103 sqft
17030 Cottontail Cir, Punta Gorda, FL 33982
- Home at address 17027 Cottontail Cir, Punta Gorda, FL 33982

Modena
$519,990
- 4 bd
- 3 ba
- 2,519 sqft
17027 Cottontail Cir, Punta Gorda, FL 33982
- Home at address 17035 Cottontail Cir, Punta Gorda, FL 33982

Ravenna II
$524,990
- 4 bd
- 3.5 ba
- 2,699 sqft
17035 Cottontail Cir, Punta Gorda, FL 33982
Floor plans in Creekside Run at Babcock Ranch

Arlington With Bonus - 60' Homesites
- 4 bd
- 4 ba
- 3,099 sqft
About the builder - Dream Finders Homes

- 251communities on Jome
- 1,512homes on Jome
Neighborhood
Home address
- City:
- Punta Gorda
- County:
- Charlotte
- Zip Code:
- 33982
Schools in Charlotte County School District
- Grades 09-10Publicbabcock high school1.2 mi43301 cypress pkwyna
GreatSchools’ Summary Rating calculation is based on 4 of the school’s themed ratings, including test scores, student/academic progress, college readiness, and equity. This information should only be used as a reference. Jome is not affiliated with GreatSchools and does not endorse or guarantee this information. Please reach out to schools directly to verify all information and enrollment eligibility. Data provided by GreatSchools.org © 2025
Places of interest
Getting around
Air quality

Considering this home?
Our expert will guide your tour, in-person or virtual
Need more information?
Text or call (888) 486-2818
Financials
Estimated monthly payment
Let us help you find your dream home
How many bedrooms are you looking for?
Similar homes nearby
Recently added communities in this area
Nearby communities in Punta Gorda
New homes in nearby cities
More New Homes in Punta Gorda, FL
OLYMPUS EXECUTIVE REALTY INC, MLS G5104225
Based on information submitted to the MLS GRID as of 10/21/2024 2:31 PM CDT. All data is obtained from various sources and may not have been verified by broker or MLS GRID. Supplied Open House Information is subject to change without notice. All information should be independently reviewed and verified for accuracy. Properties may or may not be listed by the office/agent presenting the information. Some IDX listings have been excluded from this website. Properties displayed may be listed or sold by various participants in the MLS. IDX information is provided exclusively for personal, non-commercial use, and may not be used for any purpose other than to identify prospective properties consumers may be interested in purchasing. Information is deemed reliable but not guaranteed. Use of the MLS GRID Data may be subject to an end user license agreement prescribed by the Member Participant’s applicable MLS if any and as amended from time to time. The Digital Millennium Copyright Act of 1998, 17 U.S.C. § 512 (the “DMCA”) provides recourse for copyright owners who believe that material appearing on the Internet infringes their rights under U.S. copyright law. If you believe in good faith that any content or material made available in connection with our website or services infringes your copyright, you (or your agent) may send us a notice requesting that the content or material be removed, or access to it blocked. Notices must be sent in writing by email to DMCAnotice@MLSGrid.com. The DMCA requires that your notice of alleged copyright infringement include the following information: (1) description of the copyrighted work that is the subject of claimed infringement; (2) description of the alleged infringing content and information sufficient to permit us to locate the content; (3) contact information for you, including your address, telephone number and email address; (4) a statement by you that you have a good faith belief that the content in the manner complained of is not authorized by the copyright owner, or its agent, or by the operation of any law; (5) a statement by you, signed under penalty of perjury, that the information in the notification is accurate and that you have the authority to enforce the copyrights that are claimed to be infringed; and (6) a physical or electronic signature of the copyright owner or a person authorized to act on the copyright owner’s behalf. Failure to include all of the above information may result in the delay of the processing of your complaint. Listing Information presented by local MLS brokerage: NewHomesMate LLC, DBA Jome (888) 486-2818
Read moreLast checked Jan 12, 3:10 am
- Jome
- New homes search
- Florida
- Charlotte County
- Punta Gorda
- Creekside Run at Babcock Ranch
- 17012 Cottontail Cir, Punta Gorda, FL 33982
































