














Book your tour. Save an average of $18,473. We'll handle the rest.
We collect exclusive builder offers, book your tours, and support you from start to housewarming.
- Confirmed tours
- Get matched & compare top deals
- Expert help, no pressure
- No added fees
Estimated value based on Jome data, T&C apply






























Why tour with Jome?
- No pressure toursTour at your own pace with no sales pressure
- Expert guidanceGet insights from our home buying experts
- Exclusive accessSee homes and deals not available elsewhere
Jome is featured in
- Single-Family
- Quick move-in
- $186.58/sqft
- $274/monthly HOA
Home description
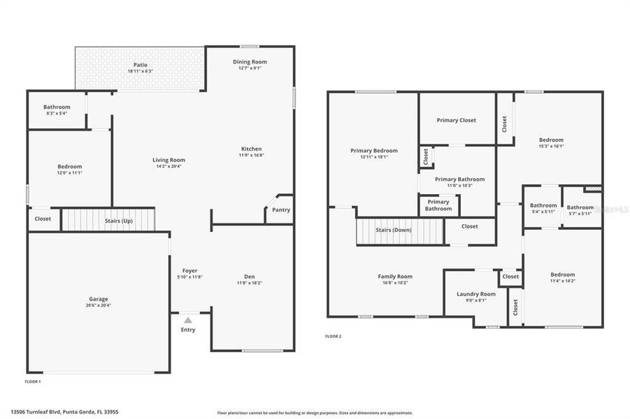
Step into refined Florida living with this stunning Modena floorplan by Dream Finders Homes, offering an impressive 2,519 sq ft of thoughtfully designed, two-story elegance. Blending modern function with elevated style, this 4-bedroom, 3-bath residence delivers both sophistication and comfort in one beautifully crafted home.
The moment you enter, you’re welcomed by a bright, open-concept living space where soaring ceilings, abundant natural light, and seamless sightlines create an inviting ambiance. The expansive family room flows effortlessly into a spacious dining area and a gourmet kitchen—the true heart of the home—featuring a large center island, walk-in pantry, and upscale finishes perfect for both everyday living and memorable entertaining. The first floor also includes a full bedroom and bath, ideal for guests or multigenerational living, along with additional flexible space that can adapt to your lifestyle—whether you envision an office, playroom, or cozy reading nook.
Upstairs, the luxurious primary suite serves as your private retreat, complete with a spa-inspired bathroom and an oversized walk-in closet designed for exceptional storage. A versatile loft adds even more room to unwind, work, or gather, while two generously sized secondary bedrooms offer comfort and privacy for family or guests.
Outdoor living is elevated by the covered lanai, providing a tranquil extension of the home where you can enjoy morning coffee, evening breezes, or gatherings with friends in the Florida sunshine.
Immaculate design, flexible spaces, and high-end finishes make the Modena a standout choice for those seeking modern luxury with room to grow.
GRANT TEAM REAL ESTATE, LLC, MLS C7518718
May also be listed on the Dream Finders Homes website
Information last verified by Jome: Yesterday at 9:50 AM (February 26, 2026)
Home highlights
Book your tour. Save an average of $18,473. We'll handle the rest.
We collect exclusive builder offers, book your tours, and support you from start to housewarming.
- Confirmed tours
- Get matched & compare top deals
- Expert help, no pressure
- No added fees
Estimated value based on Jome data, T&C apply
Home details
- Property status:
- Move-in ready
- Lot size (acres):
- 0.16
- Size:
- 2,519 sqft
- Stories:
- 2
- Beds:
- 4
- Baths:
- 3
- Garage spaces:
- 2
- Facing direction:
- Southeast
Construction details
- Builder Name:
- Dream Finders Homes
- Year Built:
- 2025
- Roof:
- Shingle Roofing
Home features & finishes
- Construction Materials:
- StuccoBlock
- Cooling:
- Central Air
- Flooring:
- Vinyl FlooringCarpet Flooring
- Foundation Details:
- Slab
- Garage/Parking:
- GarageAttached Garage
- Home amenities:
- Internet
- Interior Features:
- Ceiling-HighWalk-In ClosetShutters
- Kitchen:
- DishwasherMicrowave OvenDisposalCooktop
- Laundry facilities:
- Laundry Facilities On Upper Level
- Lighting:
- Exterior Lighting
- Pets:
- Pets Allowed
- Property amenities:
- Cabinets
- Rooms:
- KitchenDen RoomOffice/StudyDining RoomFamily RoomLiving RoomOpen Concept Floorplan

Get a consultation with our New Homes Expert
- See how your home builds wealth
- Plan your home-buying roadmap
- Discover hidden gems
Utility information
- Heating:
- Electric Heating, Thermostat, Central Heating
- Utilities:
- Electricity Available, Water Available

Community details
Turnleaf
by Dream Finders Homes, Punta Gorda, FL
- 12 homes
- 8 plans
- 1,657 - 2,699 sqft
View Turnleaf details
Community amenities
- Woods View
- Playground
- Fitness Center/Exercise Area
- Club House
- Community Pool
More homes in Turnleaf
- Home at address 13425 Turnleaf Blvd, Punta Gorda, FL 33955

Salerno
$299,990
- 4 bd
- 2.5 ba
- 2,002 sqft
13425 Turnleaf Blvd, Punta Gorda, FL 33955
- Home at address 13419 Turnleaf Blvd, Punta Gorda, FL 33955

Florence
$331,535
- 4 bd
- 2.5 ba
- 2,103 sqft
13419 Turnleaf Blvd, Punta Gorda, FL 33955
- Home at address 13443 Turnleaf Blvd, Punta Gorda, FL 33955

Salerno
$349,990
- 4 bd
- 2.5 ba
- 2,002 sqft
13443 Turnleaf Blvd, Punta Gorda, FL 33955
- Home at address 13452 Turnleaf Blvd, Punta Gorda, FL 33955

Lucca
$379,990
- 4 bd
- 3 ba
- 2,111 sqft
13452 Turnleaf Blvd, Punta Gorda, FL 33955
- Home at address 13464 Turnleaf Blvd, Punta Gorda, FL 33955

Ravenna
$399,890
- 4 bd
- 2.5 ba
- 2,235 sqft
13464 Turnleaf Blvd, Punta Gorda, FL 33955
- Home at address 13485 Turnleaf Blvd, Punta Gorda, FL 33955

Home
$424,990
- 4 bd
- 3 ba
- 2,519 sqft
13485 Turnleaf Blvd, Punta Gorda, FL 33955
Floor plans in Turnleaf
- View details for Salerno - Single Family Homes

Salerno - Single Family Homes
$359,990+- 4 bd
- 2.5 ba
- 2,002 sqft
- View details for Florence - Single Family Homes

Florence - Single Family Homes
$379,990+- 4 bd
- 2.5 ba
- 2,103 sqft
About the builder - Dream Finders Homes

- 338communities on Jome
- 1,594homes on Jome
Neighborhood
Home address
- City:
- Punta Gorda
- County:
- Charlotte
- Zip Code:
- 33955
Schools in Charlotte County School District
- Grades PK-PKPublicbaker/head start6.9 mi311 e charlotte avena
GreatSchools’ Summary Rating calculation is based on 4 of the school’s themed ratings, including test scores, student/academic progress, college readiness, and equity. This information should only be used as a reference. Jome is not affiliated with GreatSchools and does not endorse or guarantee this information. Please reach out to schools directly to verify all information and enrollment eligibility. Data provided by GreatSchools.org © 2025
Places of interest
Getting around
Air quality

Considering this home?
Our expert will guide your tour, in-person or virtual
Need more information?
Text or call (888) 488-9243
Financials
Estimated monthly payment
Let us help you find your dream home
How many bedrooms are you looking for?
Similar homes nearby
Recently added communities in this area
Nearby communities in Punta Gorda
New homes in nearby cities
More New Homes in Punta Gorda, FL
GRANT TEAM REAL ESTATE, LLC, MLS C7518718
Based on information submitted to the MLS GRID as of 10/21/2024 2:31 PM CDT. All data is obtained from various sources and may not have been verified by broker or MLS GRID. Supplied Open House Information is subject to change without notice. All information should be independently reviewed and verified for accuracy. Properties may or may not be listed by the office/agent presenting the information. Some IDX listings have been excluded from this website. Properties displayed may be listed or sold by various participants in the MLS. IDX information is provided exclusively for personal, non-commercial use, and may not be used for any purpose other than to identify prospective properties consumers may be interested in purchasing. Information is deemed reliable but not guaranteed. Use of the MLS GRID Data may be subject to an end user license agreement prescribed by the Member Participant’s applicable MLS if any and as amended from time to time. The Digital Millennium Copyright Act of 1998, 17 U.S.C. § 512 (the “DMCA”) provides recourse for copyright owners who believe that material appearing on the Internet infringes their rights under U.S. copyright law. If you believe in good faith that any content or material made available in connection with our website or services infringes your copyright, you (or your agent) may send us a notice requesting that the content or material be removed, or access to it blocked. Notices must be sent in writing by email to DMCAnotice@MLSGrid.com. The DMCA requires that your notice of alleged copyright infringement include the following information: (1) description of the copyrighted work that is the subject of claimed infringement; (2) description of the alleged infringing content and information sufficient to permit us to locate the content; (3) contact information for you, including your address, telephone number and email address; (4) a statement by you that you have a good faith belief that the content in the manner complained of is not authorized by the copyright owner, or its agent, or by the operation of any law; (5) a statement by you, signed under penalty of perjury, that the information in the notification is accurate and that you have the authority to enforce the copyrights that are claimed to be infringed; and (6) a physical or electronic signature of the copyright owner or a person authorized to act on the copyright owner’s behalf. Failure to include all of the above information may result in the delay of the processing of your complaint. Listing Information presented by local MLS brokerage: NewHomesMate LLC, DBA Jome (888) 488-9243
Read moreLast checked Feb 26, 9:10 pm
- Jome
- New homes search
- Florida
- Charlotte County
- Punta Gorda
- Turnleaf
- 13506 Turnleaf Blvd, Punta Gorda, FL 33955































