














Book your tour. Save an average of $18,473. We'll handle the rest.
We collect exclusive builder offers, book your tours, and support you from start to housewarming.
- Confirmed tours
- Get matched & compare top deals
- Expert help, no pressure
- No added fees
Estimated value based on Jome data, T&C apply



































































- 3 bd
- 3 ba
- 2,746 sqft
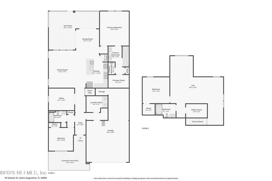
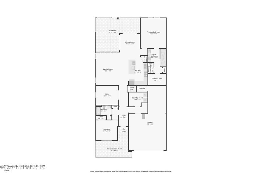
70 Salazar St, St. Augustine, FL 32095
Why tour with Jome?
- No pressure toursTour at your own pace with no sales pressure
- Expert guidanceGet insights from our home buying experts
- Exclusive accessSee homes and deals not available elsewhere
Jome is featured in
- Single-Family
- Quick move-in
- $200.11/sqft
- $840/annual HOA
Home description
$5,000 bonus towards buyers closing costs, community fees, or rate buy down (with acceptable offer). Better than new and ready to move right in! Enjoy breathtaking water views and true Florida living at 70 Salazar Street in St. Augustine. Perfectly positioned in a desirable coastal community, this Mystique Grand floor plan was built by Pulte Homes includes a 3-car tandem garage and is located on a premier water view lot. The light and bright first floor features a fun ''speakeasy room'' with a stylish atmosphere to entertain friends or evening cocktails at your leisure. The first floor primary suite serves as a private retreat, offering comfort, tranquility, and stunning views to wake up to each morning. The family chef will LOVE the upgraded kitchen with a gas stove and quartz countertops, plus plenty of room for creating culinary delights. Bring the outdoors in by opening up the two sets of sliding doors that lead out to the L shaped screened lanai with a gas bib for your grill, so you can grill with a view. It is sure to be a favorite spot for al fresco dining, relaxing and entertaining. Upstairs has a flex space and an additional bedroom and bathroom, which could be great for multigenerational living or home office and room for guests! Cordova Palms community offers resort style amenities including pool, fitness center, pickleball courts, dog park, putting green, playground walking paths and food trucks multiple times a week! Located just minutes from historic downtown St. Augustine, pristine beaches, shopping, dining, and top-rated schools, this home offers the perfect balance of peaceful waterfront views and everyday convenience. Schedule your private showing today!
COLDWELL BANKER VANGUARD REALTY, MLS 2125932
Information last verified by Jome: Today at 1:27 AM (March 7, 2026)
Book your tour. Save an average of $18,473. We'll handle the rest.
We collect exclusive builder offers, book your tours, and support you from start to housewarming.
- Confirmed tours
- Get matched & compare top deals
- Expert help, no pressure
- No added fees
Estimated value based on Jome data, T&C apply
Home details
- Property status:
- Move-in ready
- Lot size (acres):
- 0.16
- Size:
- 2,746 sqft
- Stories:
- 2
- Beds:
- 3
- Baths:
- 3
- Garage spaces:
- 3
- Facing direction:
- West
Construction details
- Year Built:
- 2024
- Roof:
- Shingle Roofing
Home features & finishes
- Construction Materials:
- Cement
- Cooling:
- Ceiling Fan(s)Central Air
- Flooring:
- Vinyl FlooringCarpet FlooringTile Flooring
- Garage/Parking:
- GarageAttached Garage
- Interior Features:
- Walk-In ClosetFoyerPantryBreakfast Bar
- Kitchen:
- DishwasherMicrowave OvenRefrigeratorDisposalGas CooktopKitchen IslandElectric Oven
- Laundry facilities:
- DryerWasher
- Property amenities:
- Porch
- Rooms:
- KitchenBreakfast AreaOpen Concept Floorplan
- Security system:
- Camera(s)Security System

Get a consultation with our New Homes Expert
- See how your home builds wealth
- Plan your home-buying roadmap
- Discover hidden gems
Utility information
- Heating:
- Central Heating
- Utilities:
- Electricity Available, Natural Gas Available, Cable Available, Sewer Available, Water Available
Neighborhood
Home address
- City:
- St. Augustine
- County:
- St. Johns
- Zip Code:
- 32095
Schools in St. Johns County School District
- Grades 06-12Publicst johns county juvenile residential3.6 mi4500 avenue dna
GreatSchools’ Summary Rating calculation is based on 4 of the school’s themed ratings, including test scores, student/academic progress, college readiness, and equity. This information should only be used as a reference. Jome is not affiliated with GreatSchools and does not endorse or guarantee this information. Please reach out to schools directly to verify all information and enrollment eligibility. Data provided by GreatSchools.org © 2025
Places of interest
Getting around
Noise level
A Soundscoreâ„¢ rating is a number between 50 (very loud) and 100 (very quiet) that tells you how loud a location is due to environmental noise.
Natural hazards risk
Provided by FEMA

Considering this home?
Our expert will guide your tour, in-person or virtual
Need more information?
Text or call (888) 488-9243
Financials
Estimated monthly payment
Let us help you find your dream home
How many bedrooms are you looking for?
Similar homes nearby
Recently added communities in this area
Nearby communities in St. Augustine
New homes in nearby cities
More New Homes in St. Augustine, FL
COLDWELL BANKER VANGUARD REALTY, MLS 2125932
IDX information is provided exclusively for personal, non-commercial use, and may not be used for any purpose other than to identify prospective properties consumers may be interested in purchasing. Data is deemed reliable but is not guaranteed accurate by NEFMLS. © 2025 Northeast Florida Multiple Listing Service, Inc. All rights reserved.
Read moreLast checked Mar 7, 5:00 am
- Jome
- New homes search
- Florida
- Jacksonville Metropolitan Area
- St. Johns County
- St. Augustine
- 70 Salazar St, St. Augustine, FL 32095

























