














Book your tour. Save an average of $18,473. We'll handle the rest.
- Confirmed tours
- Get matched & compare top deals
- Expert help, no pressure
- No added fees
Estimated value based on Jome data, T&C apply





























































- 5 bd
- 3 ba
- 3,228 sqft
1153 Enclave Ct, Auburndale, FL 33823
Why tour with Jome?
- No pressure toursTour at your own pace with no sales pressure
- Expert guidanceGet insights from our home buying experts
- Exclusive accessSee homes and deals not available elsewhere
Jome is featured in
- Single-Family
- Quick move-in
- $351.61/sqft
- $135/monthly HOA
Home description
Price Improvement on this Stunning Lakefront Oasis in Auburndale, FL
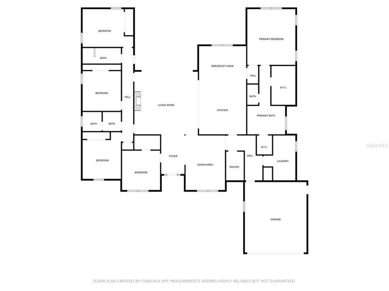
Nestled on the serene shores of private Lake Arietta, this exquisite 5-bedroom, 3-bathroom residence boasts over 3,000 square feet of luxurious living space, perfect for both relaxation and entertainment.
Step inside to discover a beautifully designed interior that harmonizes modern elegance with comfort. All bathrooms feature stunning floor-to-ceiling tile finishes, creating a spa-like atmosphere. The kitchen and bathrooms feature exquisite quartz countertops that blend style and functionality. The spacious master bedroom offers an abundance of storage with three closets, while the master bathroom showcases a gorgeous layout featuring a luxurious shower and a standalone bathtub, both elegantly tiled in a cohesive design.
The heart of the home features an open-concept living area that flows seamlessly into the gourmet kitchen, ideal for hosting family gatherings and dinner parties.
The backyard is a true paradise, highlighted by a massive covered patio with an outdoor kitchen, perfect for alfresco dining and entertaining. Enjoy the shade while lounging by the infinity pool, which offers breathtaking views of the tranquil lake, complete with an extended screened enclosure for year-round enjoyment. Imagine lounging by the pool, soaking up the sun, or enjoying a sunset swim with the shimmering waters as your backdrop.
For the boating enthusiast, a private dock awaits you, complete with a boat lift and jet ski dock. Spend your days exploring the lake, fishing, or simply enjoying the peaceful ambiance that this stunning location provides.
Additional features include a whole-home generator, ensuring peace of mind during any weather.
Don’t miss the opportunity to own this slice of paradise in beautiful Auburndale, FL. Schedule your private tour today and experience the magic of lakefront living!
HOMESTEAD REAL ESTATE GROUP, MLS L4955001
Information last verified by Jome: Yesterday at 10:06 AM (December 5, 2025)
Home highlights
World-famous Orlando resort with four theme parks, immersive entertainment, and family living nearby.
Book your tour. Save an average of $18,473. We'll handle the rest.
We collect exclusive builder offers, book your tours, and support you from start to housewarming.
- Confirmed tours
- Get matched & compare top deals
- Expert help, no pressure
- No added fees
Estimated value based on Jome data, T&C apply
Home details
- Property status:
- Move-in ready
- Lot size (acres):
- 0.44
- Size:
- 3,228 sqft
- Stories:
- 1
- Beds:
- 5
- Baths:
- 3
- Garage spaces:
- 2
- Facing direction:
- Southwest
Construction details
- Year Built:
- 2023
- Roof:
- Shingle Roofing
Home features & finishes
- Construction Materials:
- Block
- Cooling:
- Ceiling Fan(s)Central Air
- Flooring:
- Laminate FlooringCarpet Flooring
- Foundation Details:
- Slab
- Garage/Parking:
- GarageAttached Garage
- Interior Features:
- Ceiling-HighWindow TreatmentsWalk-In ClosetCrown MoldingCoffered CeilingBlinds
- Kitchen:
- DishwasherMicrowave OvenRefrigeratorDisposalKitchen Range
- Laundry facilities:
- Utility/Laundry Room
- Lighting:
- Exterior LightingLighting
- Pets:
- Pets Allowed
- Property amenities:
- PoolDeckLandscapingElectric FireplacePatioFireplacePorch
- Rooms:
- Primary Bedroom On MainKitchenDining RoomFamily RoomOpen Concept FloorplanSeparate Living and DiningPrimary Bedroom Downstairs
Utility information
- Heating:
- Thermostat, Water Heater, Central Heating, Tankless water heater
- Utilities:
- Electricity Available, Underground Utilities, Propane, Water Available
Community amenities
- Waterfront View
Neighborhood
Home address
- City:
- Auburndale
- County:
- Polk
- Zip Code:
- 33823
Schools in Polk County School District
GreatSchools’ Summary Rating calculation is based on 4 of the school’s themed ratings, including test scores, student/academic progress, college readiness, and equity. This information should only be used as a reference. Jome is not affiliated with GreatSchools and does not endorse or guarantee this information. Please reach out to schools directly to verify all information and enrollment eligibility. Data provided by GreatSchools.org © 2025
Places of interest
Getting around
Air quality
Natural hazards risk
Climate hazards can impact homes and communities, with risks varying by location. These scores reflect the potential impact of natural disasters and climate-related risks on Polk County
Provided by FEMA

Considering this home?
Our expert will guide your tour, in-person or virtual
Need more information?
Text or call (888) 486-2818
Financials
Similar homes nearby
Recently added communities in this area
Nearby communities in Auburndale
New homes in nearby cities
More New Homes in Auburndale, FL
HOMESTEAD REAL ESTATE GROUP, MLS L4955001
Based on information submitted to the MLS GRID as of 10/21/2024 2:31 PM CDT. All data is obtained from various sources and may not have been verified by broker or MLS GRID. Supplied Open House Information is subject to change without notice. All information should be independently reviewed and verified for accuracy. Properties may or may not be listed by the office/agent presenting the information. Some IDX listings have been excluded from this website. Properties displayed may be listed or sold by various participants in the MLS. IDX information is provided exclusively for personal, non-commercial use, and may not be used for any purpose other than to identify prospective properties consumers may be interested in purchasing. Information is deemed reliable but not guaranteed. Use of the MLS GRID Data may be subject to an end user license agreement prescribed by the Member Participant’s applicable MLS if any and as amended from time to time. The Digital Millennium Copyright Act of 1998, 17 U.S.C. § 512 (the “DMCA”) provides recourse for copyright owners who believe that material appearing on the Internet infringes their rights under U.S. copyright law. If you believe in good faith that any content or material made available in connection with our website or services infringes your copyright, you (or your agent) may send us a notice requesting that the content or material be removed, or access to it blocked. Notices must be sent in writing by email to DMCAnotice@MLSGrid.com. The DMCA requires that your notice of alleged copyright infringement include the following information: (1) description of the copyrighted work that is the subject of claimed infringement; (2) description of the alleged infringing content and information sufficient to permit us to locate the content; (3) contact information for you, including your address, telephone number and email address; (4) a statement by you that you have a good faith belief that the content in the manner complained of is not authorized by the copyright owner, or its agent, or by the operation of any law; (5) a statement by you, signed under penalty of perjury, that the information in the notification is accurate and that you have the authority to enforce the copyrights that are claimed to be infringed; and (6) a physical or electronic signature of the copyright owner or a person authorized to act on the copyright owner’s behalf. Failure to include all of the above information may result in the delay of the processing of your complaint. Listing Information presented by local MLS brokerage: NewHomesMate LLC, DBA Jome (888) 486-2818
Read moreLast checked Dec 6, 3:10 am
- Home
- New homes
- Florida
- Greater Orlando Area
- Polk County
- Auburndale
- 1153 Enclave Ct, Auburndale, FL 33823


























