

- 4 bd
- 2 ba
- 1,607 sqft
3705 Queensland Ct, Haines City, FL 33844
- Single-Family
- $187.69/sqft
- $580/annual HOA
- South facing
New Homes for Sale Near 3705 Queensland Ct, Haines City, FL 33844
About this Home
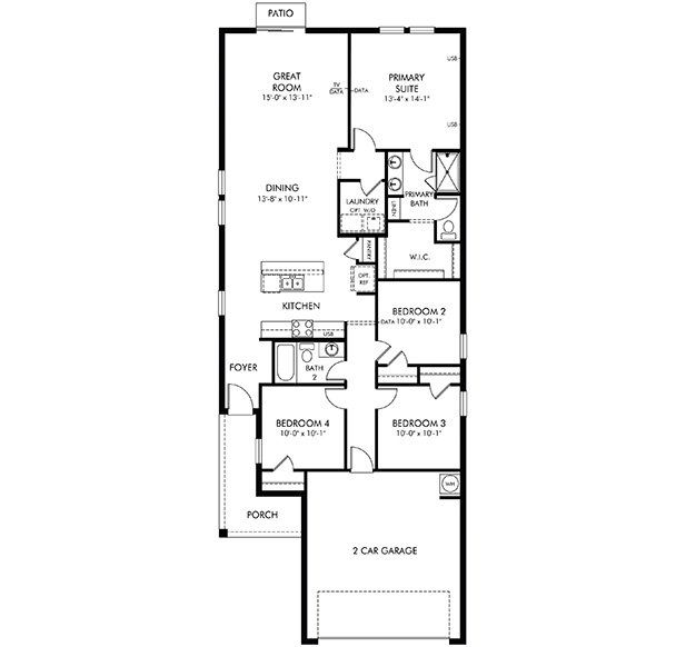
Brand new, energy-efficient home available by Aug 2025! An open floorplan that makes entertaining easy in the open kitchen, dining, and great room that flow to the patio. The primary suite is tucked in the rear of the home offering plenty of privacy and features a spacious walk-in closet and shower. Now selling from the high $200s, Bradbury Creek offers new single-family homes in “The Heart of Florida”, Haines City. Its proximity to Hwy 17-92 allows for easy access to major metro areas. This community features an abundance of amenities including an outdoor fitness area, a pool and cabana, a playground and 2 dog parks. Nearby, Lake Eva Park features an aquatic center, athletic facilities, a waterfront banquet hall, and an outdoor bandshell. Each of our homes is built with innovative, energy-efficient features designed to help you enjoy more savings, better health, real comfort and peace of mind.
MERITAGE HOMES OF FL REALTY, MLS O6331157
May also be listed on the Meritage Homes website
Information last verified by Jome: Today at 10:01 AM (December 7, 2025)
Home details
- Property status:
- Sold
- Lot size (acres):
- 0.11
- Size:
- 1,607 sqft
- Stories:
- 1
- Beds:
- 4
- Baths:
- 2
- Garage spaces:
- 2
- Facing direction:
- South
Construction details
- Builder Name:
- Meritage Homes
- Completion Date:
- August, 2025
- Year Built:
- 2025
- Roof:
- Shingle Roofing
Home features & finishes
- Appliances:
- Exhaust Fan
- Construction Materials:
- Wood FrameBlock
- Cooling:
- Central Air
- Flooring:
- Ceramic FlooringCarpet FlooringTile Flooring
- Foundation Details:
- Slab
- Garage/Parking:
- Door OpenerGarageAttached Garage
- Home amenities:
- Green Construction
- Interior Features:
- Ceiling-HighWalk-In ClosetFoyerPantrySliding Doors
- Kitchen:
- DishwasherMicrowave OvenRefrigeratorDisposalKitchen Range
- Laundry facilities:
- WasherUtility/Laundry Room
- Lighting:
- LightingStreet Lights
- Pets:
- Pets Allowed
- Property amenities:
- SidewalkBasementPatioPorch
- Rooms:
- AtticPrimary Bedroom On MainKitchenDining RoomFamily RoomOpen Concept FloorplanPrimary Bedroom Downstairs
- Security system:
- Security SystemSmoke Detector
Utility information
- Heating:
- Electric Heating, Heat Pump, Thermostat, Water Heater, Central Heating
- Utilities:
- Electricity Available, Underground Utilities, Phone Available, HVAC, Cable Available, Water Available

Community details
Bradbury Creek - Classic Series at Bradbury Creek
by Meritage Homes, Haines City, FL
- 3 homes
- 1,269 - 2,168 sqft
View Bradbury Creek - Classic Series details
Community amenities
- Energy Efficient
- Playground
- Community Pool
- Park Nearby
- Sidewalks Available
More homes in Bradbury Creek - Classic Series
About the builder - Meritage Homes
Neighborhood
Home address
- City:
- Haines City
- County:
- Polk
- Zip Code:
- 33844
Schools in Polk County School District
- Grades KG-12Privateaba haines city inc2.0 mi116 n 22nd stna
GreatSchools’ Summary Rating calculation is based on 4 of the school’s themed ratings, including test scores, student/academic progress, college readiness, and equity. This information should only be used as a reference. Jome is not affiliated with GreatSchools and does not endorse or guarantee this information. Please reach out to schools directly to verify all information and enrollment eligibility. Data provided by GreatSchools.org © 2025
Places of interest
Getting around
Air quality
Noise level
A Soundscore™ rating is a number between 50 (very loud) and 100 (very quiet) that tells you how loud a location is due to environmental noise.
Natural hazards risk
Climate hazards can impact homes and communities, with risks varying by location. These scores reflect the potential impact of natural disasters and climate-related risks on Polk County
Provided by FEMA
Financials
Nearby communities in Haines City
Homes in Haines City by Meritage Homes
Recently added communities in this area
Other Builders in Haines City, FL
Nearby sold homes
New homes in nearby cities
More New Homes in Haines City, FL
MERITAGE HOMES OF FL REALTY, MLS O6331157
Based on information submitted to the MLS GRID as of 10/21/2024 2:31 PM CDT. All data is obtained from various sources and may not have been verified by broker or MLS GRID. Supplied Open House Information is subject to change without notice. All information should be independently reviewed and verified for accuracy. Properties may or may not be listed by the office/agent presenting the information. Some IDX listings have been excluded from this website. Properties displayed may be listed or sold by various participants in the MLS. IDX information is provided exclusively for personal, non-commercial use, and may not be used for any purpose other than to identify prospective properties consumers may be interested in purchasing. Information is deemed reliable but not guaranteed. Use of the MLS GRID Data may be subject to an end user license agreement prescribed by the Member Participant’s applicable MLS if any and as amended from time to time. The Digital Millennium Copyright Act of 1998, 17 U.S.C. § 512 (the “DMCA”) provides recourse for copyright owners who believe that material appearing on the Internet infringes their rights under U.S. copyright law. If you believe in good faith that any content or material made available in connection with our website or services infringes your copyright, you (or your agent) may send us a notice requesting that the content or material be removed, or access to it blocked. Notices must be sent in writing by email to DMCAnotice@MLSGrid.com. The DMCA requires that your notice of alleged copyright infringement include the following information: (1) description of the copyrighted work that is the subject of claimed infringement; (2) description of the alleged infringing content and information sufficient to permit us to locate the content; (3) contact information for you, including your address, telephone number and email address; (4) a statement by you that you have a good faith belief that the content in the manner complained of is not authorized by the copyright owner, or its agent, or by the operation of any law; (5) a statement by you, signed under penalty of perjury, that the information in the notification is accurate and that you have the authority to enforce the copyrights that are claimed to be infringed; and (6) a physical or electronic signature of the copyright owner or a person authorized to act on the copyright owner’s behalf. Failure to include all of the above information may result in the delay of the processing of your complaint. Listing Information presented by local MLS brokerage: NewHomesMate LLC, DBA Jome (888) 486-2818
Read moreLast checked Dec 7, 9:20 am
- Home
- New homes
- Florida
- Greater Orlando Area
- Polk County
- Haines City
- Bradbury Creek - Classic Series
- 3705 Queensland Ct, Haines City, FL 33844





























































