













Book your tour. Save an average of $18,473. We'll handle the rest.
- Confirmed tours
- Get matched & compare top deals
- Expert help, no pressure
- No added fees
Estimated value based on Jome data, T&C apply





























- 3 bd
- 2 ba
- 1,501 sqft
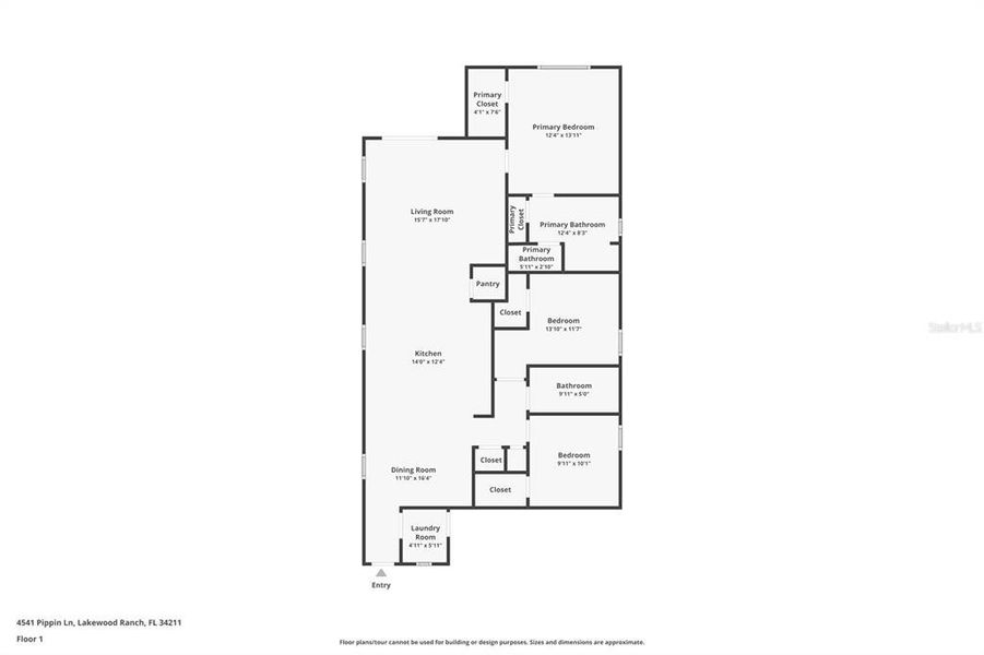
4541 Pippin Ln, Lakewood Ranch, FL 34211
Why tour with Jome?
- No pressure toursTour at your own pace with no sales pressure
- Expert guidanceGet insights from our home buying experts
- Exclusive accessSee homes and deals not available elsewhere
Jome is featured in
- Single-Family
- Quick move-in
- $263.16/sqft
- $56/monthly HOA
Home description
Welcome to Avalon Woods, where luxury and comfort intertwine just moments from everything you adore about Lakewood Ranch! This stunning split-bedroom, open-concept home is an entertainer's dream and the perfect backdrop for cherished family moments. Step into the heart of the home—a beautifully designed kitchen that seamlessly connects the dining area and living room. With a generous island, abundant cabinet space, and a convenient walk-in pantry, this kitchen caters to your culinary desires. The exquisite granite countertops, sleek glass tile backsplash, and modern stainless steel appliances elevate the home's luxurious ambiance. As you enter the expansive living area, you’ll be drawn to the large backyard, which offers endless possibilities for outdoor enjoyment. It's mostly fenced, requiring just a couple of gates to become a complete oasis. Retreat to the spacious primary bedroom at the back, featuring a sizable walk-in closet and a serene ensuite bathroom with a stylish ceramic tiled walk-in shower, double-sink vanity, and large linen closet. The two additional bedrooms at the front of the home provide privacy, while the well-appointed secondary bathroom includes a tub-shower combo with elegant ceramic tile surround. Convenience meets functionality with a generously sized laundry room right by the front door. Embrace the Florida lifestyle you've always dreamed of without sacrificing space or location. Designed for modern living, this home is packed with desirable upgrades, including many that are no longer offered by the builder. Avalon Woods Community includes amenities such as a dog park, playground, walking trail, and lush green spaces meticulously planned for enhanced outdoor enjoyment. Is this your ideal home? Don't wait—book your showing today and see for yourself the perfect blend of luxury, comfort, and community!
HOUSE MATCH, MLS A4659611
Information last verified by Jome: Yesterday at 10:14 AM (December 6, 2025)
Home highlights
MacDill AFB offers secure housing, top-rated schools, and abundant amenities in vibrant South Tampa.
Book your tour. Save an average of $18,473. We'll handle the rest.
We collect exclusive builder offers, book your tours, and support you from start to housewarming.
- Confirmed tours
- Get matched & compare top deals
- Expert help, no pressure
- No added fees
Estimated value based on Jome data, T&C apply
Home details
- Property status:
- Move-in ready
- Lot size (acres):
- 0.11
- Size:
- 1,501 sqft
- Stories:
- 1
- Beds:
- 3
- Baths:
- 2
- Garage spaces:
- 2
- Facing direction:
- Southwest
Construction details
- Year Built:
- 2023
- Roof:
- Shingle Roofing
Home features & finishes
- Appliances:
- Ice Maker
- Construction Materials:
- StuccoWood FrameBlock
- Cooling:
- Ceiling Fan(s)Central Air
- Flooring:
- Ceramic FlooringCarpet FlooringTile Flooring
- Foundation Details:
- Slab
- Garage/Parking:
- Door OpenerGarageAttached Garage
- Interior Features:
- Ceiling-HighWindow TreatmentsWalk-In ClosetShuttersCrown MoldingBlindsLoft
- Kitchen:
- DishwasherMicrowave OvenRefrigeratorDisposalKitchen Range
- Laundry facilities:
- Laundry Facilities On Upper LevelDryerWasherUtility/Laundry Room
- Lighting:
- Street Lights
- Property amenities:
- SidewalkPorch
- Rooms:
- Primary Bedroom On MainKitchenOpen Concept FloorplanPrimary Bedroom Downstairs
- Security system:
- Smoke Detector
Utility information
- Heating:
- Thermostat, Water Heater, Central Heating
- Utilities:
- Cable Available
Community amenities
- Dog Park
- Playground
- Park Nearby
Neighborhood
Home address
- City:
- Lakewood Ranch
- County:
- Manatee
- Zip Code:
- 34211
Schools in Manatee County School District
GreatSchools’ Summary Rating calculation is based on 4 of the school’s themed ratings, including test scores, student/academic progress, college readiness, and equity. This information should only be used as a reference. Jome is not affiliated with GreatSchools and does not endorse or guarantee this information. Please reach out to schools directly to verify all information and enrollment eligibility. Data provided by GreatSchools.org © 2025
Places of interest
Getting around
Air quality
Natural hazards risk
Climate hazards can impact homes and communities, with risks varying by location. These scores reflect the potential impact of natural disasters and climate-related risks on Manatee County
Provided by FEMA

Considering this home?
Our expert will guide your tour, in-person or virtual
Need more information?
Text or call (888) 486-2818
Financials
Similar homes nearby
Recently added communities in this area
Nearby communities in Lakewood Ranch
New homes in nearby cities
More New Homes in Lakewood Ranch, FL
HOUSE MATCH, MLS A4659611
Based on information submitted to the MLS GRID as of 10/21/2024 2:31 PM CDT. All data is obtained from various sources and may not have been verified by broker or MLS GRID. Supplied Open House Information is subject to change without notice. All information should be independently reviewed and verified for accuracy. Properties may or may not be listed by the office/agent presenting the information. Some IDX listings have been excluded from this website. Properties displayed may be listed or sold by various participants in the MLS. IDX information is provided exclusively for personal, non-commercial use, and may not be used for any purpose other than to identify prospective properties consumers may be interested in purchasing. Information is deemed reliable but not guaranteed. Use of the MLS GRID Data may be subject to an end user license agreement prescribed by the Member Participant’s applicable MLS if any and as amended from time to time. The Digital Millennium Copyright Act of 1998, 17 U.S.C. § 512 (the “DMCA”) provides recourse for copyright owners who believe that material appearing on the Internet infringes their rights under U.S. copyright law. If you believe in good faith that any content or material made available in connection with our website or services infringes your copyright, you (or your agent) may send us a notice requesting that the content or material be removed, or access to it blocked. Notices must be sent in writing by email to DMCAnotice@MLSGrid.com. The DMCA requires that your notice of alleged copyright infringement include the following information: (1) description of the copyrighted work that is the subject of claimed infringement; (2) description of the alleged infringing content and information sufficient to permit us to locate the content; (3) contact information for you, including your address, telephone number and email address; (4) a statement by you that you have a good faith belief that the content in the manner complained of is not authorized by the copyright owner, or its agent, or by the operation of any law; (5) a statement by you, signed under penalty of perjury, that the information in the notification is accurate and that you have the authority to enforce the copyrights that are claimed to be infringed; and (6) a physical or electronic signature of the copyright owner or a person authorized to act on the copyright owner’s behalf. Failure to include all of the above information may result in the delay of the processing of your complaint. Listing Information presented by local MLS brokerage: NewHomesMate LLC, DBA Jome (888) 486-2818
Read moreLast checked Dec 7, 3:10 am
- Home
- New homes
- Florida
- Tampa Bay Area
- Manatee County
- Lakewood Ranch
- 4541 Pippin Ln, Lakewood Ranch, FL 34211


























