

Book your tour. Save an average of $18,473. We'll handle the rest.
We collect exclusive builder offers, book your tours, and support you from start to housewarming.
- Confirmed tours
- Get matched & compare top deals
- Expert help, no pressure
- No added fees
Estimated value based on Jome data, T&C apply
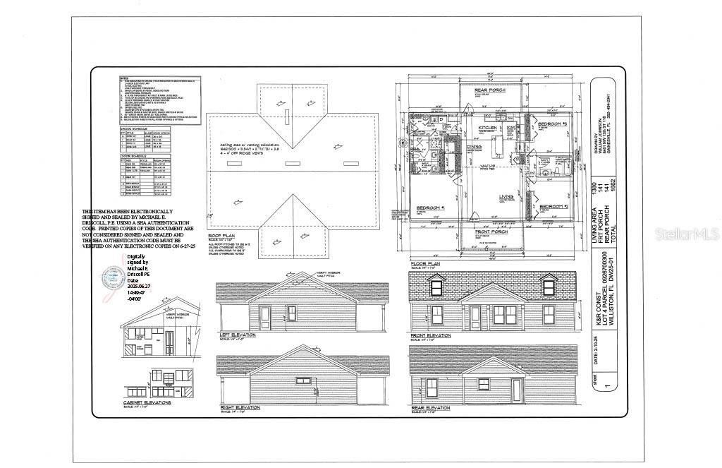
- 3 bd
- 2 ba
- 1,380 sqft
Williston, FL 32696
Why tour with Jome?
- No pressure toursTour at your own pace with no sales pressure
- Expert guidanceGet insights from our home buying experts
- Exclusive accessSee homes and deals not available elsewhere
Jome is featured in
- Single-Family
- Under construction
- $212.32/sqft
- North facing
Home description
Under Construction – Pick Your Colors! | Qualifies for USDA 100% Financing | No HOA
Welcome to your future home! This beautiful new construction 3-bedroom, 2-bathroom home offers 1,380 square feet of thoughtfully designed living space with an open and split floorplan—perfect for both everyday living and entertaining. Estimated completion by October/November 2025, and now is the perfect time to choose your colors and finishes!
The spacious kitchen is a standout feature, showcasing real wood cabinetry, a large center island, granite countertops throughout, and stainless steel appliances—including the refrigerator. A separate dining room provides the perfect space for family meals and gatherings.
The large owner's suite offers a walk-in closet and an elegant en suite bath with dual vanities and a walk-in shower. The home also features a spacious laundry/utility room, Low-E windows, and a rear veranda ideal for relaxing outdoors.
Built with quality and comfort in mind, this home includes luxury vinyl plank flooring throughout (no carpet!) and tiled flooring in the bathrooms. The exterior features durable all-concrete construction with Hardie board siding, a 14 SEER A/C system, and a full landscaping package.
Enjoy peace of mind with a 1-year cosmetic warranty and 10-year structural warranty from the builder. No HOA restrictions and USDA loan eligibility make this home even more appealing!
Photos are of a model home—finishes may vary. Don’t miss your chance to personalize this beautiful new build—schedule a tour today!
FIRST CHOICE REALTY OF NORTH FLORIDA LLC, MLS GC532082
Information last verified by Jome: Yesterday at 9:45 AM (March 7, 2026)
Book your tour. Save an average of $18,473. We'll handle the rest.
We collect exclusive builder offers, book your tours, and support you from start to housewarming.
- Confirmed tours
- Get matched & compare top deals
- Expert help, no pressure
- No added fees
Estimated value based on Jome data, T&C apply
Home details
- Property status:
- Under construction
- Lot size (acres):
- 0.30
- Size:
- 1,380 sqft
- Stories:
- 1
- Beds:
- 3
- Baths:
- 2
- Facing direction:
- North
Construction details
- Completion Date:
- October, 2025
- Year Built:
- 2025
- Roof:
- Shingle Roofing
Home features & finishes
- Appliances:
- Exhaust Fan
- Construction Materials:
- Wood Frame
- Cooling:
- Ceiling Fan(s)Central Air
- Flooring:
- Vinyl Flooring
- Foundation Details:
- Slab
- Home amenities:
- Internet
- Interior Features:
- Ceiling-HighWalk-In ClosetTray Ceiling
- Kitchen:
- DishwasherMicrowave OvenRefrigeratorDisposalKitchen Range
- Laundry facilities:
- DryerWasherUtility/Laundry Room
- Property amenities:
- LandscapingCabinetsPorch
- Rooms:
- Primary Bedroom On MainFamily RoomOpen Concept FloorplanPrimary Bedroom Downstairs

Get a consultation with our New Homes Expert
- See how your home builds wealth
- Plan your home-buying roadmap
- Discover hidden gems
Utility information
- Heating:
- Electric Heating, Thermostat, Water Heater, Central Heating
- Utilities:
- Electricity Available, Underground Utilities, Cable Available, Water Available
Neighborhood
Home address
Schools in Levy County School District
GreatSchools’ Summary Rating calculation is based on 4 of the school’s themed ratings, including test scores, student/academic progress, college readiness, and equity. This information should only be used as a reference. Jome is not affiliated with GreatSchools and does not endorse or guarantee this information. Please reach out to schools directly to verify all information and enrollment eligibility. Data provided by GreatSchools.org © 2025
Places of interest
Getting around
Air quality
Natural hazards risk
Provided by FEMA

Considering this home?
Our expert will guide your tour, in-person or virtual
Need more information?
Text or call (888) 488-9243
Financials
Estimated monthly payment
Let us help you find your dream home
How many bedrooms are you looking for?
Similar homes nearby
Recently added communities in this area
Nearby communities in Williston
New homes in nearby cities
More New Homes in Williston, FL
FIRST CHOICE REALTY OF NORTH FLORIDA LLC, MLS GC532082
Based on information submitted to the MLS GRID as of 10/21/2024 2:31 PM CDT. All data is obtained from various sources and may not have been verified by broker or MLS GRID. Supplied Open House Information is subject to change without notice. All information should be independently reviewed and verified for accuracy. Properties may or may not be listed by the office/agent presenting the information. Some IDX listings have been excluded from this website. Properties displayed may be listed or sold by various participants in the MLS. IDX information is provided exclusively for personal, non-commercial use, and may not be used for any purpose other than to identify prospective properties consumers may be interested in purchasing. Information is deemed reliable but not guaranteed. Use of the MLS GRID Data may be subject to an end user license agreement prescribed by the Member Participant’s applicable MLS if any and as amended from time to time. The Digital Millennium Copyright Act of 1998, 17 U.S.C. § 512 (the “DMCA”) provides recourse for copyright owners who believe that material appearing on the Internet infringes their rights under U.S. copyright law. If you believe in good faith that any content or material made available in connection with our website or services infringes your copyright, you (or your agent) may send us a notice requesting that the content or material be removed, or access to it blocked. Notices must be sent in writing by email to DMCAnotice@MLSGrid.com. The DMCA requires that your notice of alleged copyright infringement include the following information: (1) description of the copyrighted work that is the subject of claimed infringement; (2) description of the alleged infringing content and information sufficient to permit us to locate the content; (3) contact information for you, including your address, telephone number and email address; (4) a statement by you that you have a good faith belief that the content in the manner complained of is not authorized by the copyright owner, or its agent, or by the operation of any law; (5) a statement by you, signed under penalty of perjury, that the information in the notification is accurate and that you have the authority to enforce the copyrights that are claimed to be infringed; and (6) a physical or electronic signature of the copyright owner or a person authorized to act on the copyright owner’s behalf. Failure to include all of the above information may result in the delay of the processing of your complaint. Listing Information presented by local MLS brokerage: NewHomesMate LLC, DBA Jome (888) 488-9243
Read moreLast checked Mar 8, 3:10 am
- Jome
- New homes search
- Florida
- Gainesville-Ocala Area
- Levy County
- Williston
- Williston, FL 32696

























