













Book your tour. Save an average of $18,473. We'll handle the rest.
- Confirmed tours
- Get matched & compare top deals
- Expert help, no pressure
- No added fees
Estimated value based on Jome data, T&C apply
- 3 bd
- 2.5 ba
- 1,730 sqft
295 Chesapeake Dr, St. Cloud, FL 34771
Why tour with Jome?
- No pressure toursTour at your own pace with no sales pressure
- Expert guidanceGet insights from our home buying experts
- Exclusive accessSee homes and deals not available elsewhere
Jome is featured in
- Townhouse
- $193.85/sqft
- $1,344/annual HOA
- West facing
Home description
Open-Concept 3BR/2.5BA Townhome in St. Cloud with Garage & Lanai
Beautifully designed 3-bedroom townhome featuring an open floor plan, 1-car garage, and screened lanai. The kitchen boasts quartz countertops, 36" shaker cabinets, stainless steel Samsung appliances (including smart range), a pantry, and a breakfast bar.
Luxury vinyl plank flooring flows through the main living areas and wet spaces, with stain-resistant carpet in bedrooms and upstairs. The spacious owner’s suite includes a walk-in closet, dual vanities, and a tiled shower. Two additional bedrooms share a full bath and hallway linen closet.
Upgrades & Features:
Energy-efficient construction: R-30 insulation, Low-E windows, foam block insulation
Samsung washer & dryer
LED lighting, faux wood blinds, and built-in pest control
Soft-close cabinetry, tile backsplash, and pull-down kitchen faucet
Move-in ready with modern finishes throughout!
CAMBRIDGE REALTY OF CENTRAL FL, MLS L4956467
May also be listed on the Highland Homes of Florida website
Information last verified by Jome: Yesterday at 9:54 AM (January 15, 2026)
Home highlights
Nature preserve in Kissimmee with boardwalks, paddling trails, and historic sites near family-friendly neighborhoods.
Book your tour. Save an average of $18,473. We'll handle the rest.
We collect exclusive builder offers, book your tours, and support you from start to housewarming.
- Confirmed tours
- Get matched & compare top deals
- Expert help, no pressure
- No added fees
Estimated value based on Jome data, T&C apply
Home details
- Property status:
- Pending/Under contract
- Lot size (acres):
- 0.06
- Size:
- 1,730 sqft
- Stories:
- 2
- Beds:
- 3
- Baths:
- 2.5
- Garage spaces:
- 1
- Facing direction:
- West

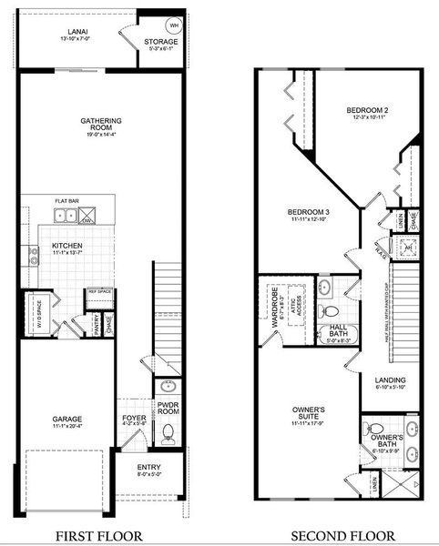
Floor plan details
Azalea Townhome
- 3 bd
- 2.5 ba
- 1,730 sqft
View Azalea Townhome details
Construction details
- Builder Name:
- Highland Homes of Florida
- Completion Date:
- December, 2025
- Year Built:
- 2025
- Roof:
- Shingle Roofing
Home features & finishes
- Construction Materials:
- Vinyl SidingStone
- Cooling:
- Ceiling Fan(s)Central Air
- Flooring:
- Vinyl FlooringCarpet Flooring
- Foundation Details:
- Block
- Garage/Parking:
- GarageAttached Garage
- Interior Features:
- Walk-In ClosetCrown MoldingFoyerPantryStorage
- Kitchen:
- DishwasherRefrigeratorDisposalKitchen Countertop
- Laundry facilities:
- DryerWasherUtility/Laundry Room
- Pets:
- Pets Allowed
- Property amenities:
- Lanai
- Rooms:
- KitchenPowder RoomFamily RoomOpen Concept FloorplanPrimary Bedroom Upstairs

Get a consultation with our New Homes Expert
- See how your home builds wealth
- Plan your home-buying roadmap
- Discover hidden gems
Utility information
- Heating:
- Electric Heating, Water Heater, Central Heating
- Utilities:
- Electricity Available, Sewer Available, Water Available

Community details
Bridge Pointe
by Highland Homes of Florida, St. Cloud, FL
- 9 homes
- 6 plans
- 1,643 - 2,066 sqft
View Bridge Pointe details
Community amenities
- Playground
- Sidewalks Available
More homes in Bridge Pointe
- Home at address 294 Chesapeake Dr, St. Cloud, FL 34771

Azalea Townhome
$339,360
- 3 bd
- 2.5 ba
- 1,730 sqft
294 Chesapeake Dr, St. Cloud, FL 34771
- Home at address 286 Chesapeake Dr, St. Cloud, FL 34771

Azalea Townhome
$339,360
- 3 bd
- 2.5 ba
- 1,730 sqft
286 Chesapeake Dr, St. Cloud, FL 34771
- Home at address 290 Chesapeake Dr, St. Cloud, FL 34771

Azalea Townhome
$339,360
- 3 bd
- 2.5 ba
- 1,730 sqft
290 Chesapeake Dr, St. Cloud, FL 34771
- Home at address 282 Chesapeake Dr, St. Cloud, FL 34771

Azalea Townhome
$339,360
- 3 bd
- 2.5 ba
- 1,730 sqft
282 Chesapeake Dr, St. Cloud, FL 34771
- Home at address 322 Chesapeake Dr, St. Cloud, FL 34771

Daisy Townhome
$348,860
- 3 bd
- 2.5 ba
- 1,730 sqft
322 Chesapeake Dr, St. Cloud, FL 34771
- Home at address 302 Chesapeake Dr, St. Cloud, FL 34771

Daisy Townhome
$350,860
- 3 bd
- 2.5 ba
- 1,730 sqft
302 Chesapeake Dr, St. Cloud, FL 34771
Floor plans in Bridge Pointe
About the builder - Highland Homes of Florida
Neighborhood
Home address
Schools in Osceola County School District
- Grades PK-08Chartercreative inspiration journey school of st cloud4.1 mi2030 old hickory tree rd4/10
GreatSchools’ Summary Rating calculation is based on 4 of the school’s themed ratings, including test scores, student/academic progress, college readiness, and equity. This information should only be used as a reference. Jome is not affiliated with GreatSchools and does not endorse or guarantee this information. Please reach out to schools directly to verify all information and enrollment eligibility. Data provided by GreatSchools.org © 2025
Places of interest
Getting around

Considering this home?
Our expert will guide your tour, in-person or virtual
Need more information?
Text or call (888) 486-2818
Financials
Estimated monthly payment
Let us help you find your dream home
How many bedrooms are you looking for?
Similar homes nearby
Recently added communities in this area
Nearby communities in St. Cloud
New homes in nearby cities
More New Homes in St. Cloud, FL
CAMBRIDGE REALTY OF CENTRAL FL, MLS L4956467
Based on information submitted to the MLS GRID as of 10/21/2024 2:31 PM CDT. All data is obtained from various sources and may not have been verified by broker or MLS GRID. Supplied Open House Information is subject to change without notice. All information should be independently reviewed and verified for accuracy. Properties may or may not be listed by the office/agent presenting the information. Some IDX listings have been excluded from this website. Properties displayed may be listed or sold by various participants in the MLS. IDX information is provided exclusively for personal, non-commercial use, and may not be used for any purpose other than to identify prospective properties consumers may be interested in purchasing. Information is deemed reliable but not guaranteed. Use of the MLS GRID Data may be subject to an end user license agreement prescribed by the Member Participant’s applicable MLS if any and as amended from time to time. The Digital Millennium Copyright Act of 1998, 17 U.S.C. § 512 (the “DMCA”) provides recourse for copyright owners who believe that material appearing on the Internet infringes their rights under U.S. copyright law. If you believe in good faith that any content or material made available in connection with our website or services infringes your copyright, you (or your agent) may send us a notice requesting that the content or material be removed, or access to it blocked. Notices must be sent in writing by email to DMCAnotice@MLSGrid.com. The DMCA requires that your notice of alleged copyright infringement include the following information: (1) description of the copyrighted work that is the subject of claimed infringement; (2) description of the alleged infringing content and information sufficient to permit us to locate the content; (3) contact information for you, including your address, telephone number and email address; (4) a statement by you that you have a good faith belief that the content in the manner complained of is not authorized by the copyright owner, or its agent, or by the operation of any law; (5) a statement by you, signed under penalty of perjury, that the information in the notification is accurate and that you have the authority to enforce the copyrights that are claimed to be infringed; and (6) a physical or electronic signature of the copyright owner or a person authorized to act on the copyright owner’s behalf. Failure to include all of the above information may result in the delay of the processing of your complaint. Listing Information presented by local MLS brokerage: NewHomesMate LLC, DBA Jome (888) 486-2818
Read moreLast checked Jan 16, 3:10 am
- Jome
- New homes search
- Florida
- Greater Orlando Area
- Osceola County
- St. Cloud
- Bridge Pointe
- 295 Chesapeake Dr, St. Cloud, FL 34771


























