














Book your tour. Save an average of $18,473. We'll handle the rest.
We collect exclusive builder offers, book your tours, and support you from start to housewarming.
- Confirmed tours
- Get matched & compare top deals
- Expert help, no pressure
- No added fees
Estimated value based on Jome data, T&C apply











































































- 3 bd
- 2 ba
- 1,789 sqft
756 Citrus Rd, Venice, FL 34293
Why tour with Jome?
- No pressure toursTour at your own pace with no sales pressure
- Expert guidanceGet insights from our home buying experts
- Exclusive accessSee homes and deals not available elsewhere
Jome is featured in
- Single-Family
- Quick move-in
- $299.05/sqft
- South facing
Home description
Welcome to the Boca at 756 Citrus Road — a beautiful new build by Blue Water Custom Homes that blends timeless design with modern functionality in the heart of South Venice.
The exterior is warm and inviting, finished in soft stucco with a warm white tone and accented by elegant stone. Clean rooflines, large windows, and a charming covered entry create a refined first impression, while the three-car garage enhances both curb appeal and practicality. The overall look is fresh, coastal, and enduring — a design that feels right at home in Florida’s landscape.
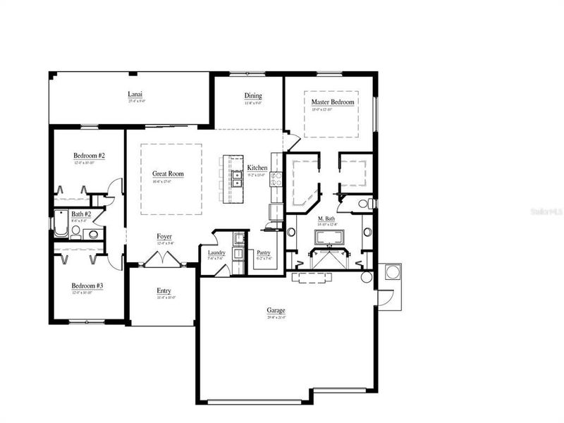
Inside, cathedral ceilings soar over the main living area, filling the home with natural light and volume. The open-concept layout seamlessly connects the great room, dining area, and kitchen — a perfect balance of style and function for everyday living or entertaining.
The kitchen is a true highlight, showcasing slim shaker-style wood cabinetry, a white stone backsplash, and a built-in white range hood for a clean, cohesive look. Black-and-white pendant lights above the island and a coordinating dining fixture add the perfect touch of personality and contrast, striking a balance between trend and timelessness. A generously sized pantry with a pocket door adds both storage and a subtle design flare.
The split floor plan offers both privacy and flow. The primary suite is tucked to one side of the home and features two walk-in closets. A private hall leads to the en-suite bathroom, where a freestanding soaking tub takes center stage, complemented by dual vanities and a walk-in shower with refined tile details. On the opposite side of the home, two additional bedrooms share a full bathroom, designed with the same level of thoughtful finishes.
The laundry room is ideally located between the garage and the main living space, making everyday routines simple and efficient. The three-car garage is a standout feature, offering space not only for vehicles but also for storage, hobbies, or recreational gear.
At the rear, large sliding glass doors open to a covered lanai, extending the living space outdoors. Whether for morning coffee, relaxing evenings, or entertaining friends, this area captures the essence of Florida living.
Set in South Venice, this home offers not just comfort but freedom — with no HOA, no CDD fees, and no flood insurance requirement. Optional membership in the South Venice Civic Association provides exclusive access to a private beach ferry, community boat ramp, and park amenities. Located just minutes from Shamrock Park, the Venetian Waterway Trail, dining, shopping, and Gulf beaches, this home is ideally placed to enjoy everything the area has to offer.
Crafted with care and backed by a 2-10 Home Buyers Warranty, the Boca at 756 Citrus Road is ready to welcome its first owners to enjoy both its thoughtful design and coastal lifestyle.
THE RAY WILLIAMS GROUP LLC, MLS A4641118
Information last verified by Jome: Today at 10:04 AM (March 8, 2026)
Book your tour. Save an average of $18,473. We'll handle the rest.
We collect exclusive builder offers, book your tours, and support you from start to housewarming.
- Confirmed tours
- Get matched & compare top deals
- Expert help, no pressure
- No added fees
Estimated value based on Jome data, T&C apply
Home details
- Property status:
- Move-in ready
- Lot size (acres):
- 0.28
- Size:
- 1,789 sqft
- Stories:
- 1
- Beds:
- 3
- Baths:
- 2
- Garage spaces:
- 3
- Facing direction:
- South
Construction details
- Completion Date:
- July, 2025
- Year Built:
- 2025
- Roof:
- Roof Gutter, Shingle Roofing
Home features & finishes
- Appliances:
- Exhaust FanWater Softener
- Construction Materials:
- BlockStone
- Cooling:
- Ceiling Fan(s)Central Air
- Flooring:
- Vinyl FlooringTile Flooring
- Foundation Details:
- Slab
- Garage/Parking:
- GarageAttached Garage
- Interior Features:
- Ceiling-HighWalk-In ClosetSliding DoorsTray Ceiling
- Kitchen:
- DishwasherMicrowave OvenOvenRefrigeratorWater FilterDisposalBuilt-In OvenFreezerKitchen Range
- Laundry facilities:
- DryerUtility/Laundry Room
- Lighting:
- Exterior Lighting
- Pets:
- Pets Allowed
- Rooms:
- Primary Bedroom On MainOpen Concept FloorplanPrimary Bedroom Downstairs
- Security system:
- Fire Alarm SystemSmoke Detector

Get a consultation with our New Homes Expert
- See how your home builds wealth
- Plan your home-buying roadmap
- Discover hidden gems
Utility information
- Heating:
- Thermostat, Water Heater, Central Heating
- Utilities:
- Electricity Available, Underground Utilities, Cable Available, Water Available
Neighborhood
Home address
Schools in Sarasota County School District
- Grades M-MPublicwellen park high school1.5 mi11830 manasota beach roadna
GreatSchools’ Summary Rating calculation is based on 4 of the school’s themed ratings, including test scores, student/academic progress, college readiness, and equity. This information should only be used as a reference. Jome is not affiliated with GreatSchools and does not endorse or guarantee this information. Please reach out to schools directly to verify all information and enrollment eligibility. Data provided by GreatSchools.org © 2025
Places of interest
Getting around
Air quality
Noise level
A Soundscore™ rating is a number between 50 (very loud) and 100 (very quiet) that tells you how loud a location is due to environmental noise.
Natural hazards risk
Provided by FEMA

Considering this home?
Our expert will guide your tour, in-person or virtual
Need more information?
Text or call (888) 488-9243
Financials
Estimated monthly payment
Let us help you find your dream home
How many bedrooms are you looking for?
Similar homes nearby
Recently added communities in this area
Nearby communities in Venice
New homes in nearby cities
More New Homes in Venice, FL
THE RAY WILLIAMS GROUP LLC, MLS A4641118
Based on information submitted to the MLS GRID as of 10/21/2024 2:31 PM CDT. All data is obtained from various sources and may not have been verified by broker or MLS GRID. Supplied Open House Information is subject to change without notice. All information should be independently reviewed and verified for accuracy. Properties may or may not be listed by the office/agent presenting the information. Some IDX listings have been excluded from this website. Properties displayed may be listed or sold by various participants in the MLS. IDX information is provided exclusively for personal, non-commercial use, and may not be used for any purpose other than to identify prospective properties consumers may be interested in purchasing. Information is deemed reliable but not guaranteed. Use of the MLS GRID Data may be subject to an end user license agreement prescribed by the Member Participant’s applicable MLS if any and as amended from time to time. The Digital Millennium Copyright Act of 1998, 17 U.S.C. § 512 (the “DMCA”) provides recourse for copyright owners who believe that material appearing on the Internet infringes their rights under U.S. copyright law. If you believe in good faith that any content or material made available in connection with our website or services infringes your copyright, you (or your agent) may send us a notice requesting that the content or material be removed, or access to it blocked. Notices must be sent in writing by email to DMCAnotice@MLSGrid.com. The DMCA requires that your notice of alleged copyright infringement include the following information: (1) description of the copyrighted work that is the subject of claimed infringement; (2) description of the alleged infringing content and information sufficient to permit us to locate the content; (3) contact information for you, including your address, telephone number and email address; (4) a statement by you that you have a good faith belief that the content in the manner complained of is not authorized by the copyright owner, or its agent, or by the operation of any law; (5) a statement by you, signed under penalty of perjury, that the information in the notification is accurate and that you have the authority to enforce the copyrights that are claimed to be infringed; and (6) a physical or electronic signature of the copyright owner or a person authorized to act on the copyright owner’s behalf. Failure to include all of the above information may result in the delay of the processing of your complaint. Listing Information presented by local MLS brokerage: NewHomesMate LLC, DBA Jome (888) 488-9243
Read moreLast checked Mar 8, 9:10 am
- Jome
- New homes search
- Florida
- Sarasota County
- Venice
- 756 Citrus Rd, Venice, FL 34293


























