














Book your tour. Save an average of $18,473. We'll handle the rest.
- Confirmed tours
- Get matched & compare top deals
- Expert help, no pressure
- No added fees
Estimated value based on Jome data, T&C apply









- 3 bd
- 3 ba
- 1,853 sqft
57 Camphor Laurel Rd, St. Augustine, FL 32092
Why tour with Jome?
- No pressure toursTour at your own pace with no sales pressure
- Expert guidanceGet insights from our home buying experts
- Exclusive accessSee homes and deals not available elsewhere
Jome is featured in
- Townhouse
- Under construction
- $191.58/sqft
- $250/monthly HOA
Home description
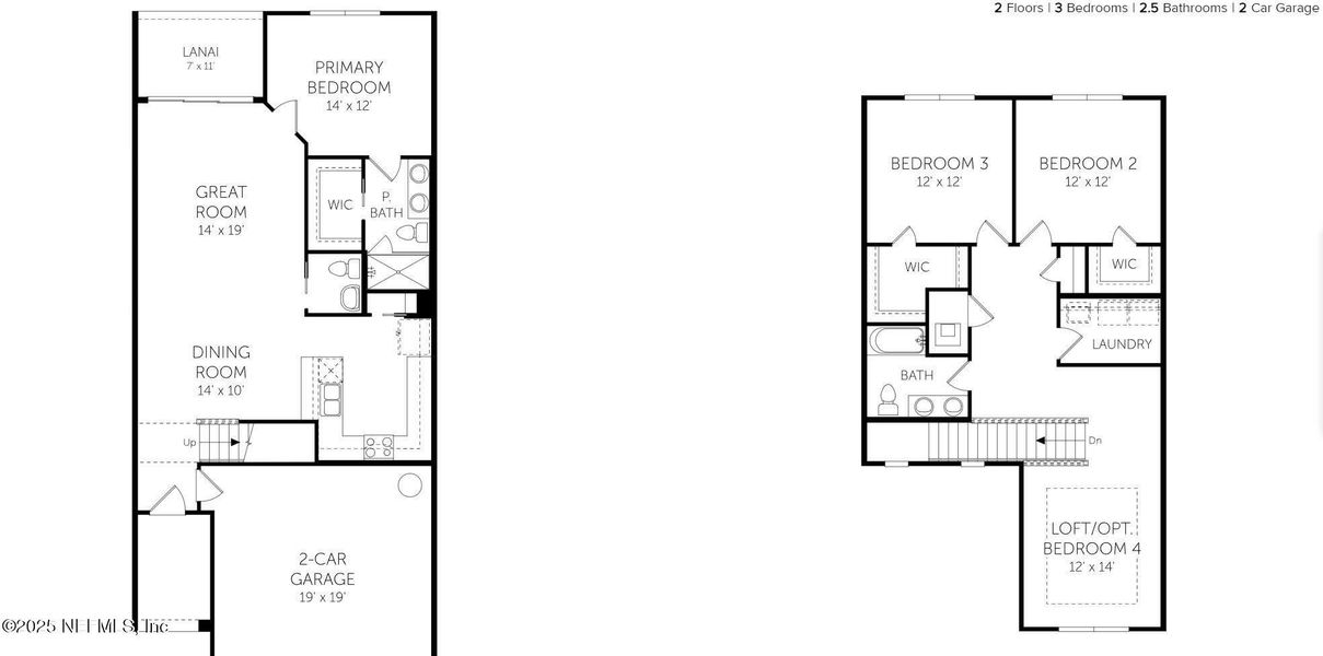
SAMPLE IMAGE!!!The Sago B floor plan is a meticulously designed townhome offering 1,853 square feet of modern living space, .featuring four bedrooms and two and a half bathrooms. The main level boasts an open-concept living area that seamlessly integrates a Great Room, dining area, and kitchen, ideal for entertaining and everyday living. The master suite serves as a serene retreat with an en-suite bathroom and a generous walk-in closet. Upstairs, you will find the three additional bedrooms and a laundry space. This floor plan also includes a 2-car garage, blending functionality with contemporary style to cater to the needs of modern families. Brook Forest is a Dream Finders Homes ONLY gated community with Private Amenities for residents only in addition to all of the Amenities Silverleaf has to offer. Use Preferred lender for special interest rates and closing costs - some conditions do apply.
OLYMPUS EXECUTIVE REALTY, INC, MLS 2093531
May also be listed on the Dream Finders Homes website
Information last verified by Jome: Today at 1:26 AM (December 5, 2025)
Home highlights
Iconic golf course in Ponte Vedra Beach, home to The Players Championship and renowned island green on hole 17.
Book your tour. Save an average of $18,473. We'll handle the rest.
We collect exclusive builder offers, book your tours, and support you from start to housewarming.
- Confirmed tours
- Get matched & compare top deals
- Expert help, no pressure
- No added fees
Estimated value based on Jome data, T&C apply
Home details
- Property status:
- Under construction
- Lot size (acres):
- 0.09
- Lot width (feet):
- 35
- Size:
- 1,853 sqft
- Stories:
- 2
- Beds:
- 3
- Baths:
- 3
- Half baths:
- 1
- Garage spaces:
- 2
- Facing direction:
- Southeast
Construction details
- Builder Name:
- Dream Finders Homes
- Year Built:
- 2025
- Roof:
- Shingle Roofing
Home features & finishes
- Construction Materials:
- CementFrame
- Cooling:
- Central Air
- Garage/Parking:
- Door OpenerGarageAttached Garage
- Home amenities:
- Green Construction
- Interior Features:
- Ceiling-HighWalk-In ClosetFoyerPantryBreakfast BarLoft
- Kitchen:
- DishwasherMicrowave OvenDisposalGas CooktopGas OvenKitchen Range
- Laundry facilities:
- DryerWasherUtility/Laundry Room
- Property amenities:
- Bathtub in primaryLanaiPatioFireplaceSmart Home System
- Rooms:
- Great RoomKitchenPowder RoomDining RoomFamily RoomBreakfast AreaOpen Concept FloorplanPrimary Bedroom Downstairs
- Security system:
- Security SystemSmoke Detector
Utility information
- Heating:
- Water Heater, Central Heating, Tankless water heater
- Utilities:
- Cable Available

Community details
Brook Forest - Villas
by Dream Finders Homes, St. Augustine, FL
- 4 homes
- 4 plans
- 1,454 - 2,125 sqft
View Brook Forest - Villas details
More homes in Brook Forest - Villas
Floor plans in Brook Forest - Villas
About the builder - Dream Finders Homes
Neighborhood
Home address
- City:
- St. Augustine
- County:
- St. Johns
- Zip Code:
- 32092
Schools in St. Johns County School District
- Grades PK-05Privategrowing together behavioral center2.8 mi1808 forest glen wayna
GreatSchools’ Summary Rating calculation is based on 4 of the school’s themed ratings, including test scores, student/academic progress, college readiness, and equity. This information should only be used as a reference. Jome is not affiliated with GreatSchools and does not endorse or guarantee this information. Please reach out to schools directly to verify all information and enrollment eligibility. Data provided by GreatSchools.org © 2025
Places of interest
Getting around
Natural hazards risk
Climate hazards can impact homes and communities, with risks varying by location. These scores reflect the potential impact of natural disasters and climate-related risks on St. Johns County
Provided by FEMA

Considering this home?
Our expert will guide your tour, in-person or virtual
Need more information?
Text or call (888) 486-2818
Financials
Estimated monthly payment
Similar homes nearby
Recently added communities in this area
Nearby communities in St. Augustine
New homes in nearby cities
More New Homes in St. Augustine, FL
OLYMPUS EXECUTIVE REALTY, INC, MLS 2093531
IDX information is provided exclusively for personal, non-commercial use, and may not be used for any purpose other than to identify prospective properties consumers may be interested in purchasing. Data is deemed reliable but is not guaranteed accurate by NEFMLS. © 2025 Northeast Florida Multiple Listing Service, Inc. All rights reserved.
Read moreLast checked Dec 5, 5:00 pm
- Home
- New homes
- Florida
- Jacksonville Metropolitan Area
- St. Johns County
- St. Augustine
- Brook Forest - Villas
- 57 Camphor Laurel Rd, St. Augustine, FL 32092






























