














Book your tour. Save an average of $18,473. We'll handle the rest.
- Confirmed tours
- Get matched & compare top deals
- Expert help, no pressure
- No added fees
Estimated value based on Jome data, T&C apply










































- 4 bd
- 4.5 ba
- 4,495 sqft
9004 Santorini Dr, Orlando, FL 32827
Why tour with Jome?
- No pressure toursTour at your own pace with no sales pressure
- Expert guidanceGet insights from our home buying experts
- Exclusive accessSee homes and deals not available elsewhere
Jome is featured in
- Single-Family
- Quick move-in
- $389.32/sqft
- $253/monthly HOA
Home description
Discover contemporary living in Laurel Pointe at Lake Nona, a gated community within one of Orlando’s most dynamic and well-planned areas. Built in 2023 and situated on a corner lot, this thoughtfully designed residence offers a refined balance of style, comfort, and functionality with convenient access to all that defines the Lake Nona area, including Medical City, major research and health institutions, the U.S. Tennis Association National Campus, schools, dining, and business hubs.
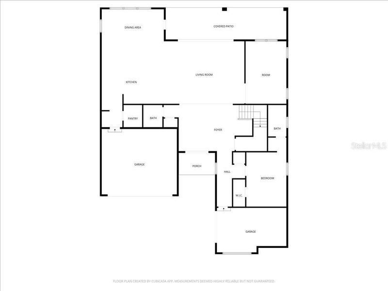
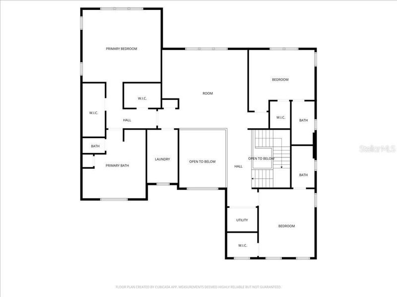
The home features 4 bedrooms with en-suite bathrooms, 4.5 baths, and a dedicated study/home office, ideal for today’s flexible lifestyle. The open kitchen serves as a central gathering space and includes premium appliances, quartz countertops, a center island, walk-in pantry, and ample storage. The primary suite provides a private retreat with a spa-style bath, freestanding tub, rainfall shower, and dual walk-in closets.
High ceilings, abundant natural light, and clean architectural lines enhance the living areas throughout. The spacious backyard, located on a corner lot, offers excellent potential for outdoor living, entertaining, or the future addition of a pool or custom outdoor space. Additional highlights include a 3-car garage, integrated sound system, and a practical layout designed for everyday living.
Residents of Laurel Pointe enjoy community amenities such as a pool, fitness center, parks, and an extensive network of walking and biking trails. Conveniently located just minutes from Orlando International Airport, this property presents an opportunity to enjoy modern living within the growing Lake Nona area.
NAIM REAL ESTATE LLC, MLS S5134007
Information last verified by Jome: Yesterday at 10:04 AM (January 21, 2026)
Home highlights
Nature preserve in Kissimmee with boardwalks, paddling trails, and historic sites near family-friendly neighborhoods.
Book your tour. Save an average of $18,473. We'll handle the rest.
We collect exclusive builder offers, book your tours, and support you from start to housewarming.
- Confirmed tours
- Get matched & compare top deals
- Expert help, no pressure
- No added fees
Estimated value based on Jome data, T&C apply
Home details
- Property status:
- Move-in ready
- Neighborhood:
- City Of Orlando-Goaa
- Lot size (acres):
- 0.24
- Size:
- 4,495 sqft
- Stories:
- 2
- Beds:
- 4
- Baths:
- 4.5
- Garage spaces:
- 3
- Facing direction:
- Northwest
Construction details
- Roof:
- Roof Gutter, Shingle Roofing
Home features & finishes
- Appliances:
- Sprinkler System
- Construction Materials:
- StuccoWood FrameBlockStone
- Cooling:
- Central Air
- Flooring:
- Vinyl FlooringCarpet FlooringTile Flooring
- Foundation Details:
- Slab
- Garage/Parking:
- Door OpenerGarageAttached Garage
- Interior Features:
- Ceiling-HighWindow TreatmentsWalk-In ClosetCoffered CeilingSliding DoorsTray CeilingFrench Doors
- Kitchen:
- DishwasherMicrowave OvenRefrigeratorKitchen Range
- Laundry facilities:
- DryerWasherUtility/Laundry Room
- Lighting:
- Exterior Lighting
- Pets:
- Pets AllowedPets Allowed with Weight Restrictions
- Property amenities:
- SidewalkCabinetsElectric FireplaceFireplace
- Rooms:
- KitchenDen RoomOffice/StudyDining RoomFamily RoomLiving RoomOpen Concept Floorplan

Get a consultation with our New Homes Expert
- See how your home builds wealth
- Plan your home-buying roadmap
- Discover hidden gems
Utility information
- Heating:
- Thermostat, Water Heater, Central Heating, Tankless water heater
Community amenities
- Fitness Center/Exercise Area
- Gated Community
- Community Pool
- Park Nearby
- Sidewalks Available
Neighborhood
Home address
- Neighborhood:
- City Of Orlando-Goaa
- City:
- Orlando
Schools in Orange County School District
GreatSchools’ Summary Rating calculation is based on 4 of the school’s themed ratings, including test scores, student/academic progress, college readiness, and equity. This information should only be used as a reference. Jome is not affiliated with GreatSchools and does not endorse or guarantee this information. Please reach out to schools directly to verify all information and enrollment eligibility. Data provided by GreatSchools.org © 2025
Places of interest
Getting around
1 nearby routes: 1 bus, 0 rail, 0 otherAir quality
Natural hazards risk
Provided by FEMA

Considering this home?
Our expert will guide your tour, in-person or virtual
Need more information?
Text or call (888) 486-2818
Financials
Estimated monthly payment
Let us help you find your dream home
How many bedrooms are you looking for?
Similar homes nearby
Recently added communities in this area
Nearby communities in Orlando
New homes in nearby cities
More New Homes in Orlando, FL
NAIM REAL ESTATE LLC, MLS S5134007
Based on information submitted to the MLS GRID as of 10/21/2024 2:31 PM CDT. All data is obtained from various sources and may not have been verified by broker or MLS GRID. Supplied Open House Information is subject to change without notice. All information should be independently reviewed and verified for accuracy. Properties may or may not be listed by the office/agent presenting the information. Some IDX listings have been excluded from this website. Properties displayed may be listed or sold by various participants in the MLS. IDX information is provided exclusively for personal, non-commercial use, and may not be used for any purpose other than to identify prospective properties consumers may be interested in purchasing. Information is deemed reliable but not guaranteed. Use of the MLS GRID Data may be subject to an end user license agreement prescribed by the Member Participant’s applicable MLS if any and as amended from time to time. The Digital Millennium Copyright Act of 1998, 17 U.S.C. § 512 (the “DMCA”) provides recourse for copyright owners who believe that material appearing on the Internet infringes their rights under U.S. copyright law. If you believe in good faith that any content or material made available in connection with our website or services infringes your copyright, you (or your agent) may send us a notice requesting that the content or material be removed, or access to it blocked. Notices must be sent in writing by email to DMCAnotice@MLSGrid.com. The DMCA requires that your notice of alleged copyright infringement include the following information: (1) description of the copyrighted work that is the subject of claimed infringement; (2) description of the alleged infringing content and information sufficient to permit us to locate the content; (3) contact information for you, including your address, telephone number and email address; (4) a statement by you that you have a good faith belief that the content in the manner complained of is not authorized by the copyright owner, or its agent, or by the operation of any law; (5) a statement by you, signed under penalty of perjury, that the information in the notification is accurate and that you have the authority to enforce the copyrights that are claimed to be infringed; and (6) a physical or electronic signature of the copyright owner or a person authorized to act on the copyright owner’s behalf. Failure to include all of the above information may result in the delay of the processing of your complaint. Listing Information presented by local MLS brokerage: NewHomesMate LLC, DBA Jome (888) 486-2818
Read moreLast checked Jan 22, 3:10 am
- Jome
- New homes search
- Florida
- Greater Orlando Area
- Orange County
- Orlando
- 9004 Santorini Dr, Orlando, FL 32827























