














Book your tour. Save an average of $18,473. We'll handle the rest.
- Confirmed tours
- Get matched & compare top deals
- Expert help, no pressure
- No added fees
Estimated value based on Jome data, T&C apply























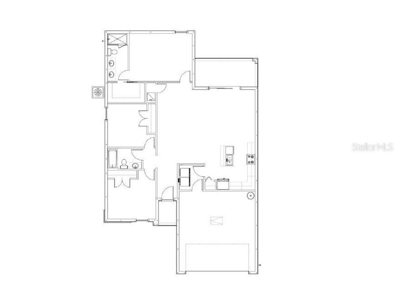
- 3 bd
- 2 ba
- 1,419 sqft
7104 N Maltese Dr, Citrus Springs, FL 34433
Why tour with Jome?
- No pressure toursTour at your own pace with no sales pressure
- Expert guidanceGet insights from our home buying experts
- Exclusive accessSee homes and deals not available elsewhere
Jome is featured in
- Single-Family
- $176.11/sqft
- East facing
- 0.23-acre lot
Home description
NEW HOME | MOVE-IN READY | 10-Year Home Warranty
This IS NOT a budget construction.
Soaring ceilings, solid-core doors, premium finishes, and a spacious modern layout designed for comfort and style.
Welcome to this impressive new construction home, perfectly blending quality craftsmanship and thoughtful design in the sought-after community of Citrus Springs.
Set on a spacious 0.23-acre lot along a charming street of newly built properties, this residence offers details rarely found in this price range.
EV Charger Ready: Convenient electric vehicle charging outlet in the garage — future-proof your home and enjoy effortless charging at home.
Interior Highlights:
•9’4” high ceilings creating a bright, open feel.
•High-quality vinyl plank flooring rated for heavy traffic — beautiful and durable.
•Solid-core interior doors providing superior sound insulation and elegance.
•Designer kitchen with sleek grey cabinetry, stainless steel appliances, a central island with pendant lighting, and abundant storage.
•Large open-concept living area that flows seamlessly to the covered lanai.
•Primary suite with walk-in closet and a spa-inspired bathroom featuring dual vanities and a spacious walk-in shower.
•Bathrooms with floor-to-ceiling tile and stylish matte black fixtures.
•Step outside to your covered lanai, ready to become your outdoor retreat — perfect for a summer kitchen or screen enclosure to enjoy peaceful mornings or evenings surrounded by nature.
Additional Features:
•10-year builder’s warranty for complete peace of mind.
•2-car garage with modern finishes.
•This is more than a house — it’s a thoughtfully designed home that proves you don’t have to compromise quality and style to stay within budget.
Don’t miss this opportunity. Schedule your private showing today!
SELECTA REALTY LLC, MLS O6309029
Information last verified by Jome: Yesterday at 10:01 AM (December 7, 2025)
Home highlights
Crystal-clear spring park in Dunnellon with swimming, tubing, and lush gardens in Florida’s Nature Coast region.
Book your tour. Save an average of $18,473. We'll handle the rest.
We collect exclusive builder offers, book your tours, and support you from start to housewarming.
- Confirmed tours
- Get matched & compare top deals
- Expert help, no pressure
- No added fees
Estimated value based on Jome data, T&C apply
Home details
- Property status:
- Pending/Under contract
- Lot size (acres):
- 0.23
- Size:
- 1,419 sqft
- Stories:
- 1
- Beds:
- 3
- Baths:
- 2
- Garage spaces:
- 2
- Facing direction:
- East
Construction details
- Year Built:
- 2025
- Roof:
- Shingle Roofing
Home features & finishes
- Construction Materials:
- Block
- Cooling:
- Central Air
- Flooring:
- Ceramic FlooringVinyl FlooringTile Flooring
- Foundation Details:
- Slab
- Garage/Parking:
- GarageAttached Garage
- Interior Features:
- Walk-In ClosetSliding Doors
- Kitchen:
- DishwasherMicrowave OvenDisposalKitchen Range
- Laundry facilities:
- Utility/Laundry Room
- Rooms:
- Primary Bedroom On MainKitchenPrimary Bedroom Downstairs
Utility information
- Heating:
- Thermostat, Central Heating
- Utilities:
- Phone Available, Cable Available, Sewer Available, Water Available
Neighborhood
Home address
- City:
- Citrus Springs
- County:
- Citrus
- Zip Code:
- 34433
Schools in Citrus County School District
GreatSchools’ Summary Rating calculation is based on 4 of the school’s themed ratings, including test scores, student/academic progress, college readiness, and equity. This information should only be used as a reference. Jome is not affiliated with GreatSchools and does not endorse or guarantee this information. Please reach out to schools directly to verify all information and enrollment eligibility. Data provided by GreatSchools.org © 2025
Places of interest
Air quality
Natural hazards risk
Climate hazards can impact homes and communities, with risks varying by location. These scores reflect the potential impact of natural disasters and climate-related risks on Citrus County
Provided by FEMA

Considering this home?
Our expert will guide your tour, in-person or virtual
Need more information?
Text or call (888) 486-2818
Financials
Similar homes nearby
Recently added communities in this area
Nearby communities in Citrus Springs
New homes in nearby cities
More New Homes in Citrus Springs, FL
SELECTA REALTY LLC, MLS O6309029
Based on information submitted to the MLS GRID as of 10/21/2024 2:31 PM CDT. All data is obtained from various sources and may not have been verified by broker or MLS GRID. Supplied Open House Information is subject to change without notice. All information should be independently reviewed and verified for accuracy. Properties may or may not be listed by the office/agent presenting the information. Some IDX listings have been excluded from this website. Properties displayed may be listed or sold by various participants in the MLS. IDX information is provided exclusively for personal, non-commercial use, and may not be used for any purpose other than to identify prospective properties consumers may be interested in purchasing. Information is deemed reliable but not guaranteed. Use of the MLS GRID Data may be subject to an end user license agreement prescribed by the Member Participant’s applicable MLS if any and as amended from time to time. The Digital Millennium Copyright Act of 1998, 17 U.S.C. § 512 (the “DMCA”) provides recourse for copyright owners who believe that material appearing on the Internet infringes their rights under U.S. copyright law. If you believe in good faith that any content or material made available in connection with our website or services infringes your copyright, you (or your agent) may send us a notice requesting that the content or material be removed, or access to it blocked. Notices must be sent in writing by email to DMCAnotice@MLSGrid.com. The DMCA requires that your notice of alleged copyright infringement include the following information: (1) description of the copyrighted work that is the subject of claimed infringement; (2) description of the alleged infringing content and information sufficient to permit us to locate the content; (3) contact information for you, including your address, telephone number and email address; (4) a statement by you that you have a good faith belief that the content in the manner complained of is not authorized by the copyright owner, or its agent, or by the operation of any law; (5) a statement by you, signed under penalty of perjury, that the information in the notification is accurate and that you have the authority to enforce the copyrights that are claimed to be infringed; and (6) a physical or electronic signature of the copyright owner or a person authorized to act on the copyright owner’s behalf. Failure to include all of the above information may result in the delay of the processing of your complaint. Listing Information presented by local MLS brokerage: NewHomesMate LLC, DBA Jome (888) 486-2818
Read moreLast checked Dec 8, 3:10 am
- Home
- New homes
- Florida
- Gainesville-Ocala Area
- Citrus County
- Citrus Springs
- 7104 N Maltese Dr, Citrus Springs, FL 34433




























