














Book your tour. Save an average of $18,473. We'll handle the rest.
- Confirmed tours
- Get matched & compare top deals
- Expert help, no pressure
- No added fees
Estimated value based on Jome data, T&C apply





















Why tour with Jome?
- No pressure toursTour at your own pace with no sales pressure
- Expert guidanceGet insights from our home buying experts
- Exclusive accessSee homes and deals not available elsewhere
Jome is featured in
- Single-Family
- Quick move-in
- $200.72/sqft
- $1,000/annual HOA
Home description
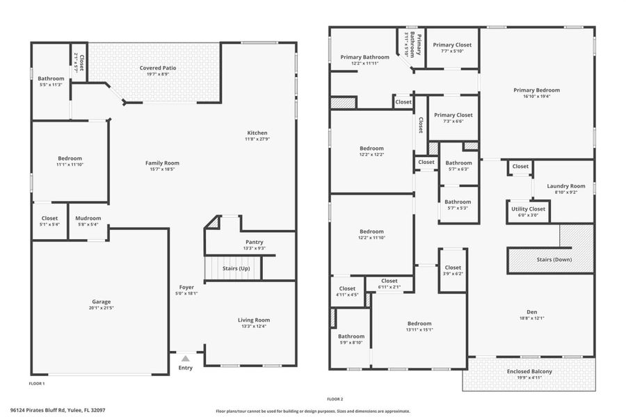
Welcome to 96124 Pirates Bluff Rd in Yulee, FL. This Fernandina plan offers 5 bedrooms, 4 baths, and a spacious loft across 3,338 square feet. The two-story layout includes a formal dining room and an open floorplan ideal for both relaxation and entertaining. The kitchen features 42" cabinets, a large island with quartz countertops, a tile backsplash, a 36" cooktop with stainless steel vent hood, and a wall oven/microwave combo. Located in Pirates Bluff, this home is close to top-rated schools, shopping, and just a short drive to Amelia Island beaches.
Berkshire Hathaway HomeService Heymann Williams Re, MLS F10518097
May also be listed on the Dream Finders Homes website
Information last verified by Jome: Yesterday at 10:34 AM (December 4, 2025)
Home highlights
Expansive coastal preserve in Jacksonville blending salt marshes, historic sites, and peaceful hiking trails.
Book your tour. Save an average of $18,473. We'll handle the rest.
We collect exclusive builder offers, book your tours, and support you from start to housewarming.
- Confirmed tours
- Get matched & compare top deals
- Expert help, no pressure
- No added fees
Estimated value based on Jome data, T&C apply
Home details
- Property status:
- Move-in ready
- Lot size (acres):
- 0.22
- Size:
- 3,338 sqft
- Stories:
- 2
- Beds:
- 5
- Baths:
- 4
- Garage spaces:
- 2
- Facing direction:
- North
Construction details
- Builder Name:
- Dream Finders Homes
- Year Built:
- 2025
- Roof:
- Composition Roofing, Shingle Roofing
Home features & finishes
- Construction Materials:
- CementWood Siding
- Cooling:
- Central Air
- Flooring:
- Carpet FlooringTile Flooring
- Garage/Parking:
- Door OpenerGarageAttached Garage
- Interior Features:
- Walk-In ClosetFoyerPantry
- Kitchen:
- DishwasherMicrowave OvenDisposalElectric CooktopKitchen RangeElectric Oven
- Property amenities:
- BalconyPorch
- Rooms:
- Open Concept FloorplanPrimary Bedroom Upstairs
- Security system:
- Security SystemSmoke DetectorCarbon Monoxide Detector
Utility information
- Heating:
- Thermostat, Central Heating
- Utilities:
- Electricity Available, Cable Available, Water Available

Community details
Pirates Bluff
by Dream Finders Homes, Yulee, FL
- 8 homes
- 5 plans
- 2,681 - 3,644 sqft
View Pirates Bluff details
More homes in Pirates Bluff
Floor plans in Pirates Bluff
About the builder - Dream Finders Homes
Neighborhood
Home address
Schools in Nassau County School District
- Grades KG-12Privatethe ogburn school inc.4.4 mi1411 s 14th stna
GreatSchools’ Summary Rating calculation is based on 4 of the school’s themed ratings, including test scores, student/academic progress, college readiness, and equity. This information should only be used as a reference. Jome is not affiliated with GreatSchools and does not endorse or guarantee this information. Please reach out to schools directly to verify all information and enrollment eligibility. Data provided by GreatSchools.org © 2025
Places of interest
Getting around
Noise level
A Soundscore™ rating is a number between 50 (very loud) and 100 (very quiet) that tells you how loud a location is due to environmental noise.
Natural hazards risk
Climate hazards can impact homes and communities, with risks varying by location. These scores reflect the potential impact of natural disasters and climate-related risks on Nassau County
Provided by FEMA

Considering this home?
Our expert will guide your tour, in-person or virtual
Need more information?
Text or call (888) 486-2818
Financials
Estimated monthly payment
Similar homes nearby
Recently added communities in this area
Nearby communities in Yulee
New homes in nearby cities
More New Homes in Yulee, FL
Berkshire Hathaway HomeService Heymann Williams Re, MLS F10518097
All listings featuring the BMLS logo are provided by BeachesMLS, Inc. This information is not verified for authenticity or accuracy and is not guaranteed. Information is provided exclusively for consumers’ personal, non-commercial use and may not be used for any purpose other than to identify prospective properties consumers may be interested in purchasing. Copyright © 2025 BeachesMLS, Inc.
Read moreLast checked Dec 5, 6:00 am
- Home
- New homes
- Florida
- Jacksonville Metropolitan Area
- Nassau County
- Yulee
- Pirates Bluff
- 96124 Pirates Bluff Rd, Yulee, FL 32097





































