




- 3 bd
- 2 ba
- 1,286 sqft
7230 Hawkes Bend St, Jacksonville, FL 32219
- Single-Family
- $209.95/sqft
- $138.5/quarterly HOA
- 343 days on Jome
New Homes for Sale Near 7230 Hawkes Bend St, Jacksonville, FL 32219
About this Home
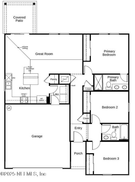
This stunning, single-story home showcases a covered entry, farmhouse accents and professional landscaping for extra curb appeal. Inside, discover an open floor plan with volume ceilings and a spacious great room. The modern kitchen boasts white Woodmont® 42-in. upper cabinets, an island and Whirlpool® stainless steel appliances. Relax in the primary bath that offers quartz countertops, a dual-sink vanity and tub/shower combination. Other highlights include a dedicated laundry room, ENERGY STAR® certified lighting, Moen® faucets and Kohler® sinks. Enjoy the outdoors on the covered back patio.
ROUND TABLE REALTY, MLS 2107357
May also be listed on the KB Home website
Information last verified by Jome: Today at 1:25 AM (April 1, 2026)
Home details
- Property status:
- Sold
- Neighborhood:
- Cisco Gardens
- Size:
- 1,286 sqft
- Stories:
- 1
- Beds:
- 3
- Baths:
- 2
- Garage spaces:
- 2
Construction details
- Builder Name:
- KB Home
- Year Built:
- 2025
- Roof:
- Shingle Roofing
Home features & finishes
- Construction Materials:
- CementFrame
- Cooling:
- Central Air
- Flooring:
- Carpet FlooringTile Flooring
- Garage/Parking:
- GarageAttached Garage
- Home amenities:
- ENERGY STAR Certified
- Interior Features:
- Walk-In ClosetShower and Tub in Primary BathPantry
- Kitchen:
- DishwasherMicrowave OvenRefrigeratorDisposalKitchen IslandKitchen RangeElectric Oven
- Laundry facilities:
- Utility/Laundry Room
- Property amenities:
- PatioPorch
- Rooms:
- Primary Bedroom On MainKitchenFamily RoomOpen Concept FloorplanPrimary Bedroom Downstairs
Utility information
- Heating:
- Thermostat, Water Heater, Central Heating
- Utilities:
- Electricity Available, Cable Available, Sewer Available

Community details
Hawkes Meadow
by KB Home, Jacksonville, FL
- 2 homes
- 8 plans
- 1,286 - 2,766 sqft
View Hawkes Meadow details
More homes in Hawkes Meadow
- Home at address 8279 Hawkes Meadow Dr, Jacksonville, FL 32219

$289,990
Under construction- 3 bd
- 2 ba
- 1,286 sqft
8279 Hawkes Meadow Dr, Jacksonville, FL 32219
- Home at address 8273 Hawkes Meadow Dr, Jacksonville, FL 32219

$334,990
Move-in ready- 4 bd
- 2 ba
- 2,003 sqft
8273 Hawkes Meadow Dr, Jacksonville, FL 32219
Floor plans in Hawkes Meadow
About the builder - KB Home
Neighborhood
Home address
- Neighborhood:
- Cisco Gardens
- City:
- Jacksonville
Schools in Duval County School District
GreatSchools’ Summary Rating calculation is based on 4 of the school’s themed ratings, including test scores, student/academic progress, college readiness, and equity. This information should only be used as a reference. Jome is not affiliated with GreatSchools and does not endorse or guarantee this information. Please reach out to schools directly to verify all information and enrollment eligibility. Data provided by GreatSchools.org © 2025
Places of interest
Getting around
Air quality
Noise level
A Soundscore™ rating is a number between 50 (very loud) and 100 (very quiet) that tells you how loud a location is due to environmental noise.
Financials
Nearby communities in Jacksonville
Homes in Jacksonville Neighborhoods
- Forest Trails
- Cisco Gardens
- Biltmore
- Dinsmore
- Highlands
- Pumpkin Hill
- Jacksonville North Estate
- Hillcrest
- Chimney Lakes
- Pecan Park
- Lincoln Villas
- Normandy Estate
- Marietta
- Southside
- Jacksonville Heights South
- Arlingwood
- Sans Pareil
- Cedar Hills
- Oceanway
- Southpoint
- Jacksonville Farms-Terrace
- Mcgirts Creek
- Jacksonville Heights
- Gilmore
- Mid-Westside
- Beach Haven
- Oak Hill
- Moncrief Park
- Sunbeam
- Riverview
- Rolling Hills
- Kilarney Shores
- Isle Of Palms
- Springfield
- Golden Glades - The Woods
- Mandarin Station - Losco
- Alderman Park
- Riverside
- Brentwood
- Larsen
- Robinson's Addition
- Royal Terrace
- College Park
- Woodstock
- Jacksonville Heights West
- Tallulah - North Shore
- Grand Park
- Southwood
- Garden City
- Lackawanna
- Picketville
- Herlong
- Goodby's Creek
- Edgewood Manor
- Panama Park
- Holiday Hill
- Woodland Acres
- Ribault
- Miramar
- Craven
- Tiger Hole-Secret Woods
- Fort George Island
- 45Th And Moncrief
- Deerwood
- Allendale
- The Cape
- Settlers Landing
- Magnolia Gardens
- Edgewood
- Deercreek
- Jacksonville Naval Air Station
- Brown Island
- Girvin
- Lakeshore
- Duval
- Beauclerc
- Black Hammock Island
- Ortega Hills
- Duclay Forest
- 29Th And Chase
- East Jacksonville
- Murray Hill
- San Marco
- Del Rio
- Mixon Town
- Wesconnett
- Fairfield
Homes in Jacksonville by KB Home
Recently added communities in this area
Other Builders in Jacksonville, FL
Nearby sold homes
New homes in nearby cities
More New Homes in Jacksonville, FL
ROUND TABLE REALTY, MLS 2107357
IDX information is provided exclusively for personal, non-commercial use, and may not be used for any purpose other than to identify prospective properties consumers may be interested in purchasing. Data is deemed reliable but is not guaranteed accurate by NEFMLS. © 2025 Northeast Florida Multiple Listing Service, Inc. All rights reserved.
Read moreLast checked Apr 1, 1:00 am
- Jome
- New homes search
- Florida
- Jacksonville Metropolitan Area
- Duval County
- Jacksonville
- Hawkes Meadow
- 7230 Hawkes Bend St, Jacksonville, FL 32219



































































