














Book your tour. Save an average of $18,473. We'll handle the rest.
- Confirmed tours
- Get matched & compare top deals
- Expert help, no pressure
- No added fees
Estimated value based on Jome data, T&C apply




























Why tour with Jome?
- No pressure toursTour at your own pace with no sales pressure
- Expert guidanceGet insights from our home buying experts
- Exclusive accessSee homes and deals not available elsewhere
Jome is featured in
- Single-Family
- Quick move-in
- $200.42/sqft
- $56/monthly HOA
Home description
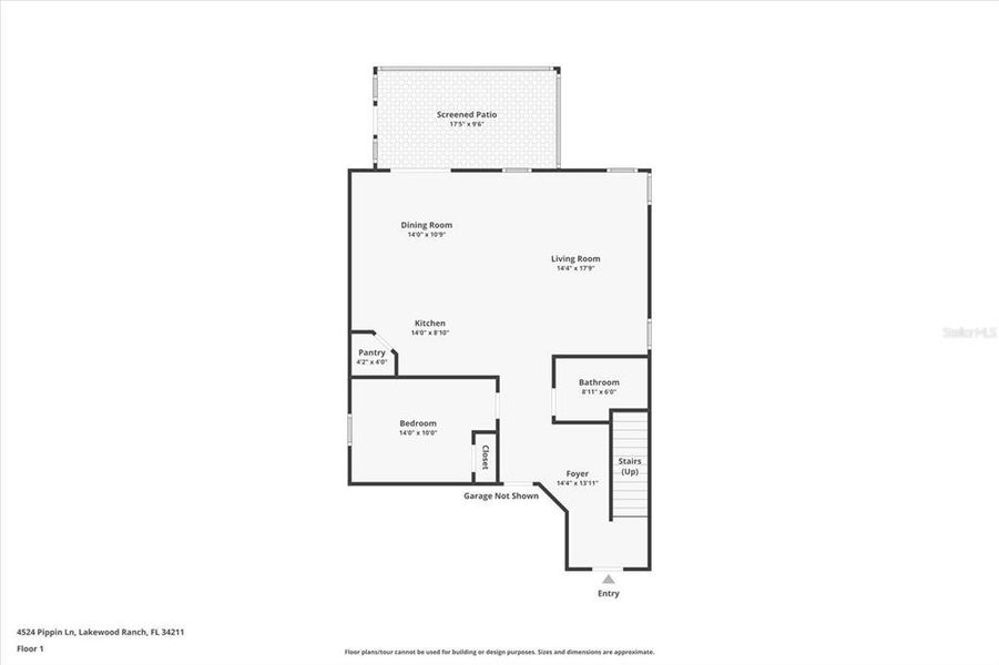
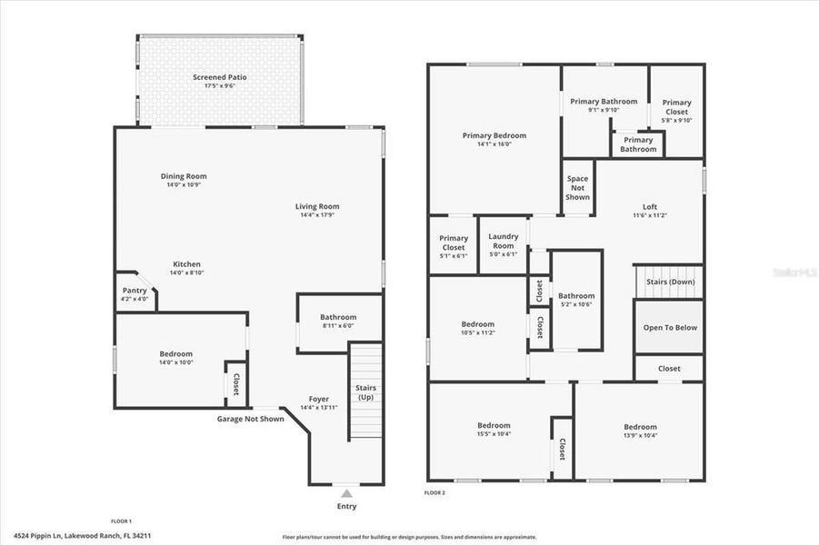
Welcome to Avalon Woods, where luxury and comfort combine to create your dream home! Step into the exquisite, brand-new Windemere model by Ryan Homes, filled with high-end upgrades and waiting for you to call it home. As you walk through the spacious foyer, you'll be captivated by the expansive living area, complete with stunning lake views that will take your breath away. For those who love to cook, the kitchen is a chef's dream, showcasing quartz countertops, a chic tile backsplash, an oversized island with under-cabinet lighting, and ample cabinet space, plus a generous pantry designed for both style and functionality. Envision yourself unwinding in your peaceful lanai, where panoramic screens allow you to enjoy the serene sights of a tranquil pond and a picturesque nature preserve. With the added convenience of a first-floor bedroom and a full bath—featuring elegant quartz countertops, ceramic tile, and a luxurious walk-in shower—this home is designed for your comfort and convenience. Ascend to the second floor to find a versatile loft space that can be tailored to fit your lifestyle—transform it into a game room or a cozy second living area. The owner's retreat is a true sanctuary, complete with double closets and a lavish ensuite bath that offers dual sinks, quartz countertops, ceramic tile, and a spacious walk-in shower. Additionally, with three more well-appointed bedrooms upstairs and a third full bath with double sinks and a tub/shower combination, there’s ample room for family and guests. You’ll also appreciate the attached two-car garage, featuring a new epoxy floor backed by an impressive 20-year warranty! Experience the joy of a new home without the burden of unexpected costs or long waiting periods. Is this the dream home you’ve been searching for? Schedule your showing today and make it yours before it’s gone!
HOUSE MATCH, MLS A4653888
May also be listed on the Ryan Homes website
Information last verified by Jome: Today at 9:56 AM (January 9, 2026)
Home highlights
MacDill AFB offers secure housing, top-rated schools, and abundant amenities in vibrant South Tampa.
Book your tour. Save an average of $18,473. We'll handle the rest.
We collect exclusive builder offers, book your tours, and support you from start to housewarming.
- Confirmed tours
- Get matched & compare top deals
- Expert help, no pressure
- No added fees
Estimated value based on Jome data, T&C apply
Home details
- Property status:
- Move-in ready
- Lot size (acres):
- 0.10
- Size:
- 2,370 sqft
- Stories:
- 2
- Beds:
- 5
- Baths:
- 3
- Garage spaces:
- 2
- Facing direction:
- East
Construction details
- Builder Name:
- Ryan Homes
- Completion Date:
- January, 2025
- Year Built:
- 2025
- Roof:
- Shingle Roofing
Home features & finishes
- Appliances:
- Sprinkler System
- Construction Materials:
- StuccoWood FrameBlock
- Cooling:
- Ceiling Fan(s)Central Air
- Flooring:
- Ceramic FlooringConcrete FlooringVinyl FlooringCarpet FlooringTile Flooring
- Foundation Details:
- Slab
- Garage/Parking:
- Door OpenerGarageAttached Garage
- Home amenities:
- Green Construction
- Interior Features:
- Ceiling-HighWindow TreatmentsWalk-In ClosetShuttersBlindsLoft
- Kitchen:
- DishwasherMicrowave OvenOvenRefrigeratorDisposalBuilt-In OvenCook TopKitchen Range
- Laundry facilities:
- Laundry Facilities On Upper LevelDryerWasherUtility/Laundry Room
- Lighting:
- LightingStreet Lights
- Property amenities:
- SidewalkPatioPorch
- Rooms:
- KitchenDining RoomLiving RoomOpen Concept FloorplanPrimary Bedroom Upstairs
- Security system:
- Smoke Detector

Get a consultation with our New Homes Expert
- See how your home builds wealth
- Plan your home-buying roadmap
- Discover hidden gems
Utility information
- Heating:
- Thermostat, Water Heater, Central Heating
- Utilities:
- Electricity Available, HVAC, Cable Available

Community details
Avalon Woods at Lakewood Ranch
by Ryan Homes, Lakewood Ranch, FL
- 5 homes
- 4 plans
- 1,501 - 2,370 sqft
View Avalon Woods details
Community amenities
- Dog Park
- Playground
- Park Nearby
More homes in Avalon Woods
- Home at address 4641 Spire Run, Lakewood Ranch, FL 34211

Home
$454,990
- 5 bd
- 3 ba
- 2,370 sqft
4641 Spire Run, Lakewood Ranch, FL 34211
Floor plans in Avalon Woods
About the builder - Ryan Homes
Neighborhood
Home address
- City:
- Lakewood Ranch
- County:
- Manatee
- Zip Code:
- 34211
Schools in Manatee County School District
GreatSchools’ Summary Rating calculation is based on 4 of the school’s themed ratings, including test scores, student/academic progress, college readiness, and equity. This information should only be used as a reference. Jome is not affiliated with GreatSchools and does not endorse or guarantee this information. Please reach out to schools directly to verify all information and enrollment eligibility. Data provided by GreatSchools.org © 2025
Places of interest
Getting around
Air quality
Noise level
A Soundscore™ rating is a number between 50 (very loud) and 100 (very quiet) that tells you how loud a location is due to environmental noise.

Considering this home?
Our expert will guide your tour, in-person or virtual
Need more information?
Text or call (888) 486-2818
Financials
Estimated monthly payment
Let us help you find your dream home
How many bedrooms are you looking for?
Similar homes nearby
Recently added communities in this area
Nearby communities in Lakewood Ranch
New homes in nearby cities
More New Homes in Lakewood Ranch, FL
HOUSE MATCH, MLS A4653888
Based on information submitted to the MLS GRID as of 10/21/2024 2:31 PM CDT. All data is obtained from various sources and may not have been verified by broker or MLS GRID. Supplied Open House Information is subject to change without notice. All information should be independently reviewed and verified for accuracy. Properties may or may not be listed by the office/agent presenting the information. Some IDX listings have been excluded from this website. Properties displayed may be listed or sold by various participants in the MLS. IDX information is provided exclusively for personal, non-commercial use, and may not be used for any purpose other than to identify prospective properties consumers may be interested in purchasing. Information is deemed reliable but not guaranteed. Use of the MLS GRID Data may be subject to an end user license agreement prescribed by the Member Participant’s applicable MLS if any and as amended from time to time. The Digital Millennium Copyright Act of 1998, 17 U.S.C. § 512 (the “DMCA”) provides recourse for copyright owners who believe that material appearing on the Internet infringes their rights under U.S. copyright law. If you believe in good faith that any content or material made available in connection with our website or services infringes your copyright, you (or your agent) may send us a notice requesting that the content or material be removed, or access to it blocked. Notices must be sent in writing by email to DMCAnotice@MLSGrid.com. The DMCA requires that your notice of alleged copyright infringement include the following information: (1) description of the copyrighted work that is the subject of claimed infringement; (2) description of the alleged infringing content and information sufficient to permit us to locate the content; (3) contact information for you, including your address, telephone number and email address; (4) a statement by you that you have a good faith belief that the content in the manner complained of is not authorized by the copyright owner, or its agent, or by the operation of any law; (5) a statement by you, signed under penalty of perjury, that the information in the notification is accurate and that you have the authority to enforce the copyrights that are claimed to be infringed; and (6) a physical or electronic signature of the copyright owner or a person authorized to act on the copyright owner’s behalf. Failure to include all of the above information may result in the delay of the processing of your complaint. Listing Information presented by local MLS brokerage: NewHomesMate LLC, DBA Jome (888) 486-2818
Read moreLast checked Jan 9, 3:10 pm
- Jome
- New homes search
- Florida
- Tampa Bay Area
- Manatee County
- Lakewood Ranch
- Avalon Woods
- 4524 Pippin Ln, Lakewood Ranch, FL 34211

































