


















































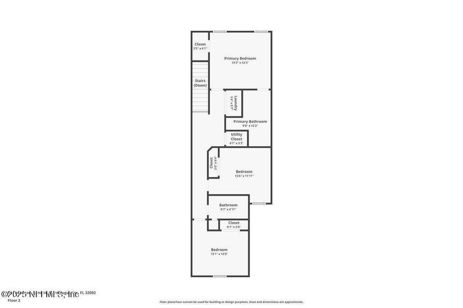
- 3 bd
- 3 ba
- 1,445 sqft
39 Thurnham Ln, St. Augustine, FL 32092
- Townhouse
- $217.99/sqft
- $245/monthly HOA
- 0.05-acre lot
New Homes for Sale Near 39 Thurnham Ln, St. Augustine, FL 32092
About this Home
Payment under $1800 in St Johns County!! Loaded with upgrades, this move-in ready townhome in Silverleaf features wood-look tile flooring, a screened patio, and built-in security system (upgrades not included in similar units). The open-concept kitchen offers modern finishes and a breakfast bar—perfect for entertaining. Best of all, the 2.99% interest rate is assumable, fixed at 4.99% from years 3-30!
Only 5 months old, this 3-bed, 2.5-bath home gives you all the perks of new construction without the wait. Located in North St. Johns County, enjoy resort-style amenities including pools, parks, and trails, plus top-rated schools—with no CDD fees.
A large Publix grocery store, a Baptist Health medical campus, and a new K-8 school are on the way making this area even more desirable! Priced to Move - Schedule your showing today!
COMPASS FLORIDA LLC, MLS 2092823
May also be listed on the Dream Finders Homes website
Information last verified by Jome: Today at 1:27 AM (December 16, 2025)
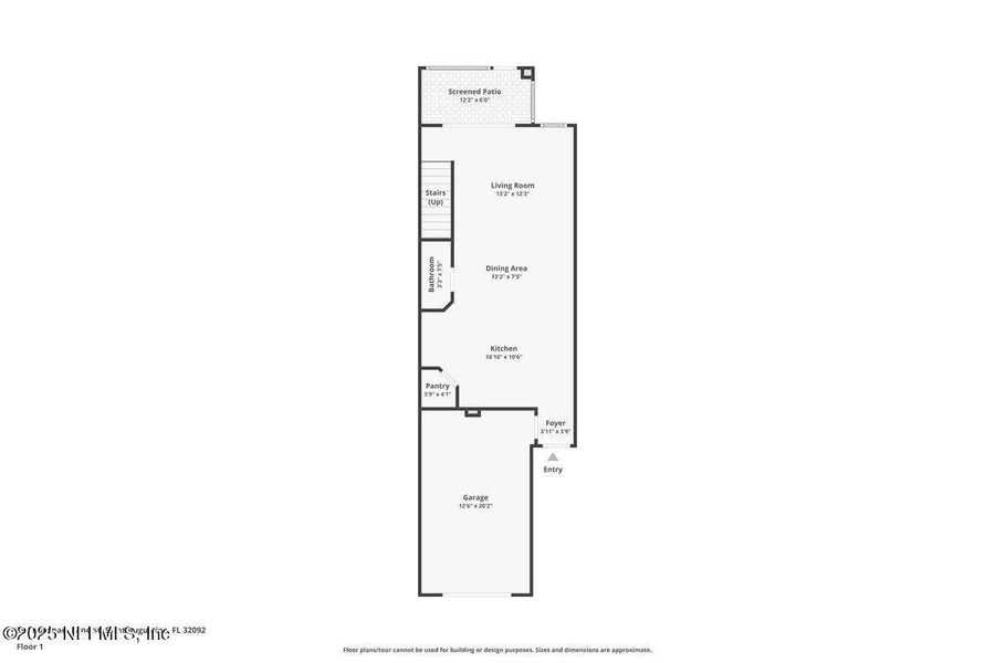
Home details
- Property status:
- Sold
- Lot size (acres):
- 0.05
- Size:
- 1,445 sqft
- Stories:
- 2
- Beds:
- 3
- Baths:
- 3
- Garage spaces:
- 1
Construction details
- Builder Name:
- Dream Finders Homes
- Year Built:
- 2024
- Roof:
- Wood Shingle Roofing, Shingle Roofing
Home features & finishes
- Appliances:
- Ice MakerSprinkler System
- Construction Materials:
- CementFrame
- Cooling:
- Ceiling Fan(s)Central Air
- Flooring:
- Carpet FlooringTile Flooring
- Garage/Parking:
- Door OpenerAssigned parkingGarageCovered Garage/ParkingAttached Garage
- Home amenities:
- Green Construction
- Interior Features:
- Walk-In ClosetPantry
- Kitchen:
- DishwasherMicrowave OvenRefrigeratorDisposalGas CooktopKitchen IslandGas OvenKitchen Range
- Laundry facilities:
- DryerWasher
- Property amenities:
- Porch
- Rooms:
- KitchenOpen Concept Floorplan
- Security system:
- Security SystemSmoke Detector
Utility information
- Heating:
- Thermostat, Water Heater, Central Heating, Tankless water heater
- Utilities:
- Electricity Available, Natural Gas Available, Cable Available, Sewer Available, Water Available

Community details
Brandon Lakes at Silver Landing
by Dream Finders Homes, St. Augustine, FL
- 1 home
- 1,396 - 1,396 sqft
View Brandon Lakes at Silver Landing details
More homes in Brandon Lakes at Silver Landing
About the builder - Dream Finders Homes
Neighborhood
Home address
- City:
- St. Augustine
- County:
- St. Johns
- Zip Code:
- 32092
Schools in St. Johns County School District
- Grades PK-05Privategrowing together behavioral center3.1 mi1808 forest glen wayna
- Grades M-MPublick-8 school nn4.9 mi855 timberwolf trailna
GreatSchools’ Summary Rating calculation is based on 4 of the school’s themed ratings, including test scores, student/academic progress, college readiness, and equity. This information should only be used as a reference. Jome is not affiliated with GreatSchools and does not endorse or guarantee this information. Please reach out to schools directly to verify all information and enrollment eligibility. Data provided by GreatSchools.org © 2025
Places of interest
Getting around
Natural hazards risk
Climate hazards can impact homes and communities, with risks varying by location. These scores reflect the potential impact of natural disasters and climate-related risks on St. Johns County
Provided by FEMA
Financials
Nearby communities in St. Augustine
Homes in St. Augustine by Dream Finders Homes
Recently added communities in this area
Other Builders in St. Augustine, FL
Nearby sold homes
New homes in nearby cities
More New Homes in St. Augustine, FL
COMPASS FLORIDA LLC, MLS 2092823
IDX information is provided exclusively for personal, non-commercial use, and may not be used for any purpose other than to identify prospective properties consumers may be interested in purchasing. Data is deemed reliable but is not guaranteed accurate by NEFMLS. © 2025 Northeast Florida Multiple Listing Service, Inc. All rights reserved.
Read moreLast checked Dec 16, 11:00 am
- Jome
- New homes search
- Florida
- Jacksonville Metropolitan Area
- St. Johns County
- St. Augustine
- Brandon Lakes at Silver Landing
- 39 Thurnham Ln, St. Augustine, FL 32092



























































