




Book your tour. Save an average of $18,473. We'll handle the rest.
- Confirmed tours
- Get matched & compare top deals
- Expert help, no pressure
- No added fees
Estimated value based on Jome data, T&C apply
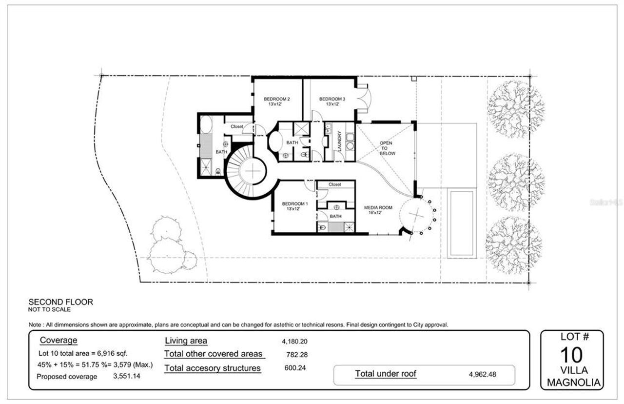
- 4 bd
- 4.5 ba
- 4,227 sqft
100 Jardin Cv, Altamonte Springs, FL 32714
Why tour with Jome?
- No pressure toursTour at your own pace with no sales pressure
- Expert guidanceGet insights from our home buying experts
- Exclusive accessSee homes and deals not available elsewhere
Jome is featured in
- Single-Family
- $370.71/sqft
- $800/quarterly HOA
- East facing
Home description
Brand new subdivision. Located between Maitland and Altamonte Springs. I4 access is just minutes away, with effortless travels to downtown, Winter Park, Cranes Roost, and more. Enjoy a new luxurious subdivision, crafted by award winning architects and developers on a hilly and natural terrain, surrounded by beautiful oaks and multi million dollar homes.
New construction means the latest technology and construction materials. 10 lots available, ranging in different sizes and custom designs, fit just for you. Build the home of your dreams, the home you deserve.
Welcome to Central Florida’s NEW and EXCLUSIVE architectural jewel, Club at Maison Jardin. This unique and charming 10 custom home community will transcend you out of the dated central Florida market, and into an imaginative world of architectural creativity and LUXURY. Designed by the creative minds of award-winning architect-builder, Silver Sea Homes Inc. Club at Maison Jardin is unlike anything you have seen before.
With its SLOPING TOPOGRAPHY and rare HERITAGE OAK TREES, this unique community will feel like you are entering a charming old world Tuscan town, executed with all of today’s latest technology, materials, and amenities. With 10 original floor plans, no two homes are alike. Each has been meticulously designed to perfectly fit their unique and lavish landscape, and topography.
The homes will feature the latest in LUXURY DESIGN. Some of the features include COURTYARD DESIGNS, INDOOR-OUTDOOR LIVING SPACES, HIGH END THERMADOR APPLIANCES, HIGH CEILINGS AND DOUBLE HEIGHT SPACES, SMART HOME TECHNOLOGY, OVERSIZED WINDOWS AND DOORS, CONCRETE BARREL TILE ROOFS, THEATER ROOMS, BARS AND WINE CELLARS, SUMMER KITCHENS, CUSTOM CLOSETS, EXQUISITE CARPENTRY DETAILS, and INNOVATIVE KITCHEN AND BATH DESIGNS, to name a few. The community will have plumbed natural gas appliances, tankless water heaters, oversized ranges, fireplaces, and outdoor grills.
The latest technology and materials will enhance the outdoor and indoor environments to complement their architectural potential and comfortability.
Silver Sea Homes has built over a million square feet of A-Class real estate locally, and in Europe and South America. Their Internationally recognized architectural style is truly unmatched in originality and built quality. Your new dream home will come with a builder-backed warrantee to ensure the peace of mind and security you deserve. . Price includes land
SILVER SEA REALTY, MLS R4907305
Information last verified by Jome: Yesterday at 9:35 AM (January 20, 2026)
Home highlights
Downtown Orlando’s multi‑theater arts venue shaping a walkable live/work/play district for culture seekers.
Book your tour. Save an average of $18,473. We'll handle the rest.
We collect exclusive builder offers, book your tours, and support you from start to housewarming.
- Confirmed tours
- Get matched & compare top deals
- Expert help, no pressure
- No added fees
Estimated value based on Jome data, T&C apply
Home details
- Property status:
- Pending/Under contract
- Lot size (acres):
- 0.15
- Size:
- 4,227 sqft
- Stories:
- 2
- Beds:
- 4
- Baths:
- 4.5
- Garage spaces:
- 2
- Facing direction:
- East
Construction details
- Completion Date:
- November, 2024
- Year Built:
- 2024
- Roof:
- Tile Roofing
Home features & finishes
- Appliances:
- Central VacuumSprinkler System
- Construction Materials:
- StuccoWood FrameBlockConcrete
- Cooling:
- Central Air
- Flooring:
- Ceramic FlooringMarble FlooringTile FlooringHardwood FlooringTravertine Stone Flooring
- Foundation Details:
- SlabBlock
- Garage/Parking:
- GarageAttached Garage
- Interior Features:
- Ceiling-HighWalk-In ClosetCrown MoldingSliding DoorsFrench Doors
- Kitchen:
- DishwasherMicrowave OvenRefrigeratorCook TopKitchen Range
- Laundry facilities:
- Laundry Facilities On Upper LevelUtility/Laundry Room
- Lighting:
- Street Lights
- Pets:
- Pets AllowedCat(s) Only AllowedDog(s) Only Allowed
- Property amenities:
- PoolFireplaceSmart Home System
- Rooms:
- Dining RoomFamily RoomBreakfast AreaOpen Concept FloorplanSeparate Living and DiningPrimary Bedroom Upstairs
- Security system:
- Fire Sprinkler SystemSecurity SystemSmoke Detector

Get a consultation with our New Homes Expert
- See how your home builds wealth
- Plan your home-buying roadmap
- Discover hidden gems
Utility information
- Heating:
- Heat Pump, Water Heater, Central Heating, Tankless water heater
- Utilities:
- Electricity Available, Natural Gas Available, Internet-Fiber, Phone Available, Cable Available, Sewer Available, Water Available
Community amenities
- Outdoor Kitchen
Neighborhood
Home address
- City:
- Altamonte Springs
- County:
- Seminole
- Zip Code:
- 32714
Schools in Seminole County School District
- Grades KG-12Privatecamen academy for the performing arts1.8 mi613 concourse pkwy sna
GreatSchools’ Summary Rating calculation is based on 4 of the school’s themed ratings, including test scores, student/academic progress, college readiness, and equity. This information should only be used as a reference. Jome is not affiliated with GreatSchools and does not endorse or guarantee this information. Please reach out to schools directly to verify all information and enrollment eligibility. Data provided by GreatSchools.org © 2025
Places of interest
Getting around
2 nearby routes: 2 bus, 0 rail, 0 otherNatural hazards risk
Provided by FEMA

Considering this home?
Our expert will guide your tour, in-person or virtual
Need more information?
Text or call (888) 486-2818
Financials
Estimated monthly payment
Let us help you find your dream home
How many bedrooms are you looking for?
Similar homes nearby
Recently added communities in this area
Nearby communities in Altamonte Springs
New homes in nearby cities
More New Homes in Altamonte Springs, FL
SILVER SEA REALTY, MLS R4907305
Based on information submitted to the MLS GRID as of 10/21/2024 2:31 PM CDT. All data is obtained from various sources and may not have been verified by broker or MLS GRID. Supplied Open House Information is subject to change without notice. All information should be independently reviewed and verified for accuracy. Properties may or may not be listed by the office/agent presenting the information. Some IDX listings have been excluded from this website. Properties displayed may be listed or sold by various participants in the MLS. IDX information is provided exclusively for personal, non-commercial use, and may not be used for any purpose other than to identify prospective properties consumers may be interested in purchasing. Information is deemed reliable but not guaranteed. Use of the MLS GRID Data may be subject to an end user license agreement prescribed by the Member Participant’s applicable MLS if any and as amended from time to time. The Digital Millennium Copyright Act of 1998, 17 U.S.C. § 512 (the “DMCA”) provides recourse for copyright owners who believe that material appearing on the Internet infringes their rights under U.S. copyright law. If you believe in good faith that any content or material made available in connection with our website or services infringes your copyright, you (or your agent) may send us a notice requesting that the content or material be removed, or access to it blocked. Notices must be sent in writing by email to DMCAnotice@MLSGrid.com. The DMCA requires that your notice of alleged copyright infringement include the following information: (1) description of the copyrighted work that is the subject of claimed infringement; (2) description of the alleged infringing content and information sufficient to permit us to locate the content; (3) contact information for you, including your address, telephone number and email address; (4) a statement by you that you have a good faith belief that the content in the manner complained of is not authorized by the copyright owner, or its agent, or by the operation of any law; (5) a statement by you, signed under penalty of perjury, that the information in the notification is accurate and that you have the authority to enforce the copyrights that are claimed to be infringed; and (6) a physical or electronic signature of the copyright owner or a person authorized to act on the copyright owner’s behalf. Failure to include all of the above information may result in the delay of the processing of your complaint. Listing Information presented by local MLS brokerage: NewHomesMate LLC, DBA Jome (888) 486-2818
Read moreLast checked Jan 21, 3:10 am
- Jome
- New homes search
- Florida
- Greater Orlando Area
- Seminole County
- Altamonte Springs
- 100 Jardin Cv, Altamonte Springs, FL 32714


























