














Book your tour. Save an average of $18,473. We'll handle the rest.
We collect exclusive builder offers, book your tours, and support you from start to housewarming.
- Confirmed tours
- Get matched & compare top deals
- Expert help, no pressure
- No added fees
Estimated value based on Jome data, T&C apply



































- 5 bd
- 5 ba
- 2,660 sqft
85084 Southern Creek Blvd, Fernandina Beach, FL 32034
Why tour with Jome?
- No pressure toursTour at your own pace with no sales pressure
- Expert guidanceGet insights from our home buying experts
- Exclusive accessSee homes and deals not available elsewhere
Jome is featured in
- Single-Family
- Quick move-in
- $216.69/sqft
- $1,200/annual HOA
Home description
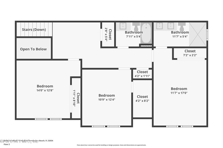
Just off the beaten path is a brand new two-story home on a half-acre homesite in gated Southern Creek, with a protected preserve view and a substantial garage footprint. This 5BR/4.5BA residence offers 2,660 heated sf and a bright, open flow built for real life. The island kitchen with pantry is ready for gatherings, with an appliance package that includes a convection oven and electric cooktop. The first-floor primary suite gives you everyday comfort with a walk-in closet and private bath. Upstairs, generous secondary bedrooms and baths create room for guests, work-from-home, and hobbies. Enjoy Florida mornings on the front porch and relaxed evenings on the patio, plus the ease of features like a smart thermostat. Southern Creek combines big-lot living with a tucked-away feel, yet stays close to Fernandina, shopping, dining, and Amelia Island beaches. Schedule your private tour. Lending specials available for qualified buyers.
COLDWELL BANKER VANGUARD REALTY, MLS 2126789
Information last verified by Jome: Today at 1:25 AM (March 9, 2026)
Book your tour. Save an average of $18,473. We'll handle the rest.
We collect exclusive builder offers, book your tours, and support you from start to housewarming.
- Confirmed tours
- Get matched & compare top deals
- Expert help, no pressure
- No added fees
Estimated value based on Jome data, T&C apply
Home details
- Property status:
- Move-in ready
- Lot size (acres):
- 0.50
- Size:
- 2,660 sqft
- Stories:
- 2
- Beds:
- 5
- Baths:
- 5
- Half baths:
- 1
- Garage spaces:
- 2
- Facing direction:
- West
Construction details
- Year Built:
- 2026
- Roof:
- Wood Shingle Roofing, Shingle Roofing
Home features & finishes
- Construction Materials:
- Cement
- Cooling:
- Central Air
- Garage/Parking:
- Door OpenerGarageOff-Street Garage/Parking
- Interior Features:
- Walk-In ClosetFoyerPantryBreakfast Bar
- Kitchen:
- DishwasherDisposalElectric CooktopConvection OvenSelf Cleaning OvenKitchen Island
- Property amenities:
- PatioPorch
- Rooms:
- Breakfast AreaOpen Concept Floorplan
- Security system:
- Smoke Detector

Get a consultation with our New Homes Expert
- See how your home builds wealth
- Plan your home-buying roadmap
- Discover hidden gems
Utility information
- Heating:
- Heat Pump, Thermostat, Water Heater, Central Heating
- Utilities:
- Electricity Available, Sewer Available, Water Available
Neighborhood
Home address
- City:
- Fernandina Beach
- County:
- Nassau
- Zip Code:
- 32034
Schools in Nassau County School District
GreatSchools’ Summary Rating calculation is based on 4 of the school’s themed ratings, including test scores, student/academic progress, college readiness, and equity. This information should only be used as a reference. Jome is not affiliated with GreatSchools and does not endorse or guarantee this information. Please reach out to schools directly to verify all information and enrollment eligibility. Data provided by GreatSchools.org © 2025
Places of interest
Getting around
Natural hazards risk
Provided by FEMA

Considering this home?
Our expert will guide your tour, in-person or virtual
Need more information?
Text or call (888) 488-9243
Financials
Estimated monthly payment
Let us help you find your dream home
How many bedrooms are you looking for?
Similar homes nearby
Recently added communities in this area
Nearby communities in Fernandina Beach
New homes in nearby cities
More New Homes in Fernandina Beach, FL
COLDWELL BANKER VANGUARD REALTY, MLS 2126789
IDX information is provided exclusively for personal, non-commercial use, and may not be used for any purpose other than to identify prospective properties consumers may be interested in purchasing. Data is deemed reliable but is not guaranteed accurate by NEFMLS. © 2025 Northeast Florida Multiple Listing Service, Inc. All rights reserved.
Read moreLast checked Mar 9, 11:00 am
- Jome
- New homes search
- Florida
- Jacksonville Metropolitan Area
- Nassau County
- Fernandina Beach
- 85084 Southern Creek Blvd, Fernandina Beach, FL 32034























