








Book your tour. Save an average of $18,473. We'll handle the rest.
We collect exclusive builder offers, book your tours, and support you from start to housewarming.
- Confirmed tours
- Get matched & compare top deals
- Expert help, no pressure
- No added fees
Estimated value based on Jome data, T&C apply











- 5 bd
- 4.5 ba
- 4,490 sqft
2536 Bitterroot Pl, Highlands Ranch, CO 80129
Why tour with Jome?
- No pressure toursTour at your own pace with no sales pressure
- Expert guidanceGet insights from our home buying experts
- Exclusive accessSee homes and deals not available elsewhere
Jome is featured in
- Single-Family
- Ready by April 2026
- $282.84/sqft
- $768/annual HOA
Home description
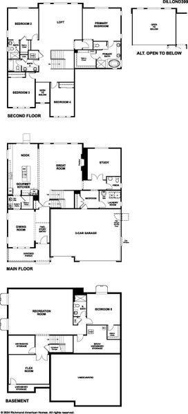
This Dillon II features a dramatic two-story entry with beautiful finishes and smartly designed upgrades throughout. A formal dining room rests at the front of the home and offers a more formal space for meals and conversation. An expansive great room welcomes you to relax with a fireplace. Beyond, the gourmet kitchen features a quartz center island, walk-in pantry and stainless-steel appliances. Off the 3-car garage rests a mud room, laundry room, powder room and study. Retreat upstairs to find three secondary bedrooms, one with a private bath and a shared bath that make perfect accommodations for family or guests. The primary suite is nearby and showcases a private deluxe bath and a walk-in closet. If that wasn't enough, this home includes a finished basement that boasts a wide-open rec room and versatile flex room. A basement bedroom and shared bath completes this home.
May also be listed on the Richmond American Homes website
Information last verified by Jome: Today at 5:00 AM (April 19, 2026)
Book your tour. Save an average of $18,473. We'll handle the rest.
We collect exclusive builder offers, book your tours, and support you from start to housewarming.
- Confirmed tours
- Get matched & compare top deals
- Expert help, no pressure
- No added fees
Estimated value based on Jome data, T&C apply
Home details
- Property status:
- Under construction
- Size:
- 4,490 sqft
- Beds:
- 5
- Baths:
- 4
- Half baths:
- 1
- Garage spaces:
- 3
Construction details
- Builder Name:
- Richmond American Homes
- Completion Date:
- April, 2026
Home features & finishes
- Garage/Parking:
- GarageAttached Garage
- Interior Features:
- Walk-In ClosetWalk-In PantryStaircases
- Kitchen:
- Kitchen Island
- Laundry facilities:
- Utility/Laundry Room
- Property amenities:
- BasementButler's Pantry
- Rooms:
- Flex RoomKitchenRecreational RoomOffice/StudyDining RoomFamily RoomOpen Concept FloorplanPrimary Bedroom Upstairs

Get a consultation with our New Homes Expert
- See how your home builds wealth
- Plan your home-buying roadmap
- Discover hidden gems

Community details
Westridge
by Richmond American Homes, Highlands Ranch, CO
- 5 homes
- 5 plans
- 3,610 - 5,320 sqft
View Westridge details
More homes in Westridge
- Home at address 9227 Gold Lace Pl, Highlands Ranch, CO 80129

Daley
Savings$1,199,950
- 6 bd
- 5.5 ba
- 4,800 sqft
9227 Gold Lace Pl, Highlands Ranch, CO 80129
- Home at address 2596 Bitterroot Pl, Highlands Ranch, CO 80129

Dayton
Savings$1,254,950
- 6 bd
- 5.5 ba
- 5,320 sqft
2596 Bitterroot Pl, Highlands Ranch, CO 80129
- Home at address 9210 Gold Lace Pl, Highlands Ranch, CO 80129

Dayton
Savings$1,274,950
- 6 bd
- 5.5 ba
- 5,320 sqft
9210 Gold Lace Pl, Highlands Ranch, CO 80129
Floor plans in Westridge
About the builder - Richmond American Homes
Neighborhood
Home address
- City:
- Highlands Ranch
- County:
- Douglas
- Zip Code:
- 80129
Schools in Douglas County School District RE-1
GreatSchools’ Summary Rating calculation is based on 4 of the school’s themed ratings, including test scores, student/academic progress, college readiness, and equity. This information should only be used as a reference. Jome is not affiliated with GreatSchools and does not endorse or guarantee this information. Please reach out to schools directly to verify all information and enrollment eligibility. Data provided by GreatSchools.org © 2025
Places of interest
Getting around
Air quality
Noise level
A Soundscore™ rating is a number between 50 (very loud) and 100 (very quiet) that tells you how loud a location is due to environmental noise.

Considering this home?
Our expert will guide your tour, in-person or virtual
Need more information?
Text or call (888) 545-5198
Financials
Estimated monthly payment
Let us help you find your dream home
How many bedrooms are you looking for?
Similar homes nearby
Recently added communities in this area
Nearby communities in Highlands Ranch
New homes in nearby cities
More New Homes in Highlands Ranch, CO
- Jome
- New homes search
- Colorado
- Denver Metropolitan Area
- Douglas County
- Highlands Ranch
- Westridge
- 2536 Bitterroot Pl, Highlands Ranch, CO 80129



























