














Book your tour. Save an average of $18,473. We'll handle the rest.
We collect exclusive builder offers, book your tours, and support you from start to housewarming.
- Confirmed tours
- Get matched & compare top deals
- Expert help, no pressure
- No added fees
Estimated value based on Jome data, T&C apply
























Why tour with Jome?
- No pressure toursTour at your own pace with no sales pressure
- Expert guidanceGet insights from our home buying experts
- Exclusive accessSee homes and deals not available elsewhere
Jome is featured in
- Townhouse
- Quick move-in
- $373.8/sqft
- $4,380/annual HOA
Home description
Fantastic row home like new, in the coveted Lyric at Ridgegate! This home is stylish, open, light, bright and surrounded by parks and trails. The main floor features high ceilings, a great room with electric fireplace, formal dining area, and a designer kitchen with quartz countertops and backsplash, high-end stainless appliances which including the refrigerator, oven with a smooth cooktop, dishwasher, microwave oven, and 42 inch white cabinetry. The home has wide-plank luxury vinyl flooring throughout giving it a modern aesthetic feel. Upstairs the primary suite has tile floors, a walk-in shower with a bench, dual vanities and a walk-in closet. There is another bedroom as well with its own full bath, quartz counters, and walk-in closet. The upstairs laundry is conveniently located here with tile floors. The lower level has a bonus room that can be utilized as an office or second family/rec room. The alley load 2-car garage is accessible from this level as well. This home exemplifies modern living at its finest. Must see!
MB Cohn & Assoc, MLS REC2777580
May also be listed on the Thrive Home Builders website
Information last verified by Jome: Yesterday at 10:11 AM (February 16, 2026)
Home highlights
Secure, family-friendly base with top-rated Aurora schools and easy access to Denver's amenities.
Special attention is paid to environmental friendliness, energy efficiency, water use and materials.
Book your tour. Save an average of $18,473. We'll handle the rest.
We collect exclusive builder offers, book your tours, and support you from start to housewarming.
- Confirmed tours
- Get matched & compare top deals
- Expert help, no pressure
- No added fees
Estimated value based on Jome data, T&C apply
Home details
- Property status:
- Move-in ready
- Lot size (acres):
- 0.03
- Size:
- 1,672 sqft
- Beds:
- 2
- Baths:
- 1
- Half baths:
- 1
- Garage spaces:
- 2
- Facing direction:
- North
Construction details
- Builder Name:
- Thrive Home Builders
- Year Built:
- 2024
- Roof:
- Roof Gutter, Composition Roofing
Home features & finishes
- Construction Materials:
- Wood Siding
- Cooling:
- Ceiling Fan(s)Central Air
- Flooring:
- Laminate FlooringTile Flooring
- Garage/Parking:
- GarageAttached GarageCar Charging Stations
- Interior Features:
- Ceiling-HighWalk-In ClosetPantry
- Kitchen:
- DishwasherMicrowave OvenRefrigeratorDisposalQuartz countertopKitchen IslandCooktopKitchen Range
- Laundry facilities:
- Laundry Facilities In Unit
- Lighting:
- Exterior Lighting
- Property amenities:
- BasementBalconyDeckElectric FireplaceYardPorch
- Rooms:
- KitchenOpen Concept Floorplan
- Security system:
- Radon DetectorSmart Video DoorbellSmoke DetectorCarbon Monoxide Detector

Get a consultation with our New Homes Expert
- See how your home builds wealth
- Plan your home-buying roadmap
- Discover hidden gems
Utility information
- Heating:
- Heat Pump, Forced Air Heating
- Utilities:
- Electricity Available, Internet Cable, Cable Available, High Speed Internet Access

Community details
Lyric at RidgeGate
by Thrive Home Builders, Lone Tree, CO
- 5 homes
- 2 plans
- 1,672 - 1,843 sqft
View Lyric at RidgeGate details
More homes in Lyric at RidgeGate
- Home at address 10842 Lyric St, Lone Tree, CO 80134

Sonata
$601,800
- 2 bd
- 2.5 ba
- 1,672 sqft
10842 Lyric St, Lone Tree, CO 80134
- Home at address 10848 Lyric St, Lone Tree, CO 80134

Thrive Tempo Plan – Modern Colorado Home
$639,500
- 2 bd
- 2.5 ba
- 1,672 sqft
10848 Lyric St, Lone Tree, CO 80134
- Home at address 10844 Lyric St, Lone Tree, CO 80134

Newton
$649,900
- 2 bd
- 2.5 ba
- 1,843 sqft
10844 Lyric St, Lone Tree, CO 80134
- Home at address 10850 Lyric St, Lone Tree, CO 80134

Newton
$659,803
- 3 bd
- 2.5 ba
- 1,843 sqft
10850 Lyric St, Lone Tree, CO 80134
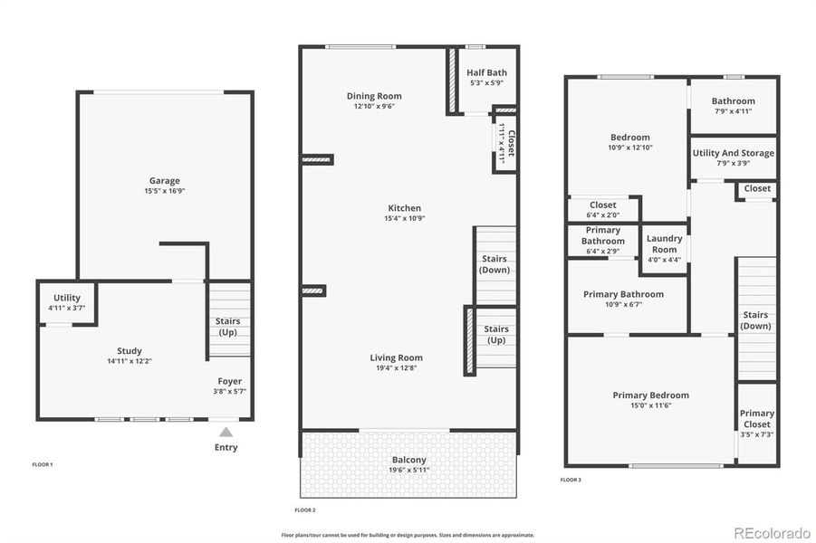
Floor plans in Lyric at RidgeGate
About the builder - Thrive Home Builders
Neighborhood
Home address
Schools in Douglas County School District RE-1
GreatSchools’ Summary Rating calculation is based on 4 of the school’s themed ratings, including test scores, student/academic progress, college readiness, and equity. This information should only be used as a reference. Jome is not affiliated with GreatSchools and does not endorse or guarantee this information. Please reach out to schools directly to verify all information and enrollment eligibility. Data provided by GreatSchools.org © 2025
Places of interest
Getting around
Air quality
Noise level
A Soundscore™ rating is a number between 50 (very loud) and 100 (very quiet) that tells you how loud a location is due to environmental noise.

Considering this home?
Our expert will guide your tour, in-person or virtual
Need more information?
Text or call (888) 488-9243
Financials
Estimated monthly payment
Let us help you find your dream home
How many bedrooms are you looking for?
Similar homes nearby
Recently added communities in this area
Nearby communities in Parker
New homes in nearby cities
More New Homes in Parker, CO
MB Cohn & Assoc, MLS REC2777580
The content relating to real estate for sale in this Web site comes in part from the Internet Data eXchange (“IDX”) program of METROLIST, INC., DBA RECOLORADO® Real estate listings held by brokers other than NewHomesMate LLC, DBA Jome are marked with the IDX Logo. This information is being provided for the consumers’ personal, non-commercial use and may not be used for any other purpose. All information subject to change and should be independently verified. This publication is designed to provide information with regard to the subject matter covered. It is displayed with the understanding that the publisher and authors are not engaged in rendering real estate, legal, accounting, tax, or other professional services and that the publisher and authors are not offering such advice in this publication. If real estate, legal, or other expert assistance is required, the services of a competent, professional person should be sought. The information contained in this publication is subject to change without notice. METROLIST, INC., DBA RECOLORADO MAKES NO WARRANTY OF ANY KIND WITH REGARD TO THIS MATERIAL, INCLUDING, BUT NOT LIMITED TO, THE IMPLIED WARRANTIES OF MERCHANTABILITY AND FITNESS FOR A PARTICULAR PURPOSE. METROLIST, INC., DBA RECOLORADO SHALL NOT BE LIABLE FOR ERRORS CONTAINED HEREIN OR FOR ANY DAMAGES IN CONNECTION WITH THE FURNISHING, PERFORMANCE, OR USE OF THIS MATERIAL. PUBLISHER'S NOTICE: All real estate advertised herein is subject to the Federal Fair Housing Act and the Colorado Fair Housing Act, which Acts make it illegal to make or publish any advertisement that indicates any preference, limitation, or discrimination based on race, color, religion, sex, handicap, familial status, or national origin. METROLIST, INC., DBA RECOLORADO will not knowingly accept any advertising for real estate that is in violation of the law. All persons are hereby informed that all dwellings advertised are available on an equal opportunity basis. © 2025 METROLIST, INC., DBA RECOLORADO® - All Rights Reserved. 6455 S. Yosemite St., Suite 500, Greenwood Village, CO 80111 USA. ALL RIGHTS RESERVED WORLDWIDE. No part of this publication may be reproduced, adapted, translated, stored in a retrieval system or transmitted in any form or by any means, electronic, mechanical, photocopying, recording, or otherwise, without the prior written permission of the publisher. The information contained herein including but not limited to all text, photographs, digital images, virtual tours, may be seeded and monitored for protection and tracking.
Read moreLast checked Feb 16, 10:00 pm
- Jome
- New homes search
- Colorado
- Denver Metropolitan Area
- Douglas County
- Parker
- Lyric at RidgeGate
- 10848 Lyric St, Parker, CO 80134




























