





Book your tour. Save an average of $18,473. We'll handle the rest.
- Confirmed tours
- Get matched & compare top deals
- Expert help, no pressure
- No added fees
Estimated value based on Jome data, T&C apply
- 2 bd
- 2.5 ba
- 1,559 sqft
13323 Lady Bug Ln, Firestone, CO 80504
Why tour with Jome?
- No pressure toursTour at your own pace with no sales pressure
- Expert guidanceGet insights from our home buying experts
- Exclusive accessSee homes and deals not available elsewhere
Jome is featured in
- Single-Family
- Ready by April 2026
- $301.35/sqft
- $1,080/annual HOA
Home description
May also be listed on the Brookfield Residential website
Information last verified by Jome: Today at 7:03 AM (January 31, 2026)
Book your tour. Save an average of $18,473. We'll handle the rest.
We collect exclusive builder offers, book your tours, and support you from start to housewarming.
- Confirmed tours
- Get matched & compare top deals
- Expert help, no pressure
- No added fees
Estimated value based on Jome data, T&C apply
Home details
- Property status:
- Under construction
- Lot size (acres):
- 0.08
- Size:
- 1,559 sqft
- Stories:
- 2
- Beds:
- 2
- Baths:
- 2
- Half baths:
- 1
- Garage spaces:
- 2
Construction details
- Builder Name:
- Brookfield Residential
- Completion Date:
- April, 2026
Home features & finishes
- Garage/Parking:
- GarageAttached Garage
- Interior Features:
- Walk-In ClosetPantryStaircases
- Kitchen:
- Kitchen Island
- Laundry facilities:
- Utility/Laundry Room
- Property amenities:
- Porch
- Rooms:
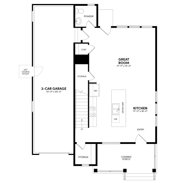
- KitchenPowder RoomFamily RoomOpen Concept FloorplanPrimary Bedroom Upstairs

Get a consultation with our New Homes Expert
- See how your home builds wealth
- Plan your home-buying roadmap
- Discover hidden gems

Community details
Canvas at Barefoot
by Brookfield Residential, Firestone, CO
- 9 homes
- 3 plans
- 1,559 - 1,790 sqft
View Canvas at Barefoot details
More homes in Canvas at Barefoot
- Home at address 13312 Lady Bug Ln, Firestone, CO 80504

Canvas One
$473,606
- 2 bd
- 1.5 ba
- 1,559 sqft
13312 Lady Bug Ln, Firestone, CO 80504
- Home at address 13313 Lady Bug Ln, Firestone, CO 80504

Canvas Two
$508,717
- 3 bd
- 3 ba
- 1,684 sqft
13313 Lady Bug Ln, Firestone, CO 80504
- Home at address 13332 Lady Bug Ln, Firestone, CO 80504

Canvas Two
$511,211
- 3 bd
- 3 ba
- 1,684 sqft
13332 Lady Bug Ln, Firestone, CO 80504
- Home at address 13333 Lady Bug Ln, Firestone, CO 80504

Canvas Two
$512,225
- 3 bd
- 3 ba
- 1,684 sqft
13333 Lady Bug Ln, Firestone, CO 80504
- Home at address 13322 Front Porch Ln, Firestone, CO 80504

Canvas Two
$514,900
- 3 bd
- 3 ba
- 1,684 sqft
13322 Front Porch Ln, Firestone, CO 80504
- Home at address 13322 Lady Bug Ln, Firestone, CO 80504

Canvas Three
$521,314
- 3 bd
- 2.5 ba
- 1,790 sqft
13322 Lady Bug Ln, Firestone, CO 80504
Floor plans in Canvas at Barefoot
About the builder - Brookfield Residential
Neighborhood
Home address
Schools in St. Vrain Valley School District RE 1J
GreatSchools’ Summary Rating calculation is based on 4 of the school’s themed ratings, including test scores, student/academic progress, college readiness, and equity. This information should only be used as a reference. Jome is not affiliated with GreatSchools and does not endorse or guarantee this information. Please reach out to schools directly to verify all information and enrollment eligibility. Data provided by GreatSchools.org © 2025
Places of interest
Getting around
Air quality
Noise level
A Soundscore™ rating is a number between 50 (very loud) and 100 (very quiet) that tells you how loud a location is due to environmental noise.

Considering this home?
Our expert will guide your tour, in-person or virtual
Need more information?
Text or call (888) 486-2818
Financials
Estimated monthly payment
Let us help you find your dream home
How many bedrooms are you looking for?
Similar homes nearby
Recently added communities in this area
Nearby communities in Firestone
New homes in nearby cities
More New Homes in Firestone, CO
- Jome
- New homes search
- Colorado
- Denver Metropolitan Area
- Weld County
- Firestone
- Canvas at Barefoot
- 13323 Lady Bug Ln, Firestone, CO 80504





























